2023年 エントリー作品

暮らすほどに永く愛着が増していく家

モデルハウス・体感施設

断熱

1,300万円

2023年08月

投票数

38 39

投票受付終了

リノベーション後 After

暮らすほどに永く愛着が増していく家

キッチンの壁と和室を無くし広々としたLDK。

暮らすほどに永く愛着が増していく家

クローゼットの扉と段差、仕切りを無くし見せる収納オープンクローゼット。

暮らすほどに永く愛着が増していく家

玄関横の洋室を無くし、様々な用途でご使用いただけるユーティリティ。

暮らすほどに永く愛着が増していく家

広い土間玄関と廊下。マンションでも土間玄関をつくることができます。

暮らすほどに永く愛着が増していく家

広々と清潔なトイレ

暮らすほどに永く愛着が増していく家

洗面化粧台の下はスッキリと。
モルタル調の洗面カウンターと黒の洗面ボウルが高級感を出します。

リノベーション前 Before

  • 暮らすほどに永く愛着が増していく家

    キッチンからの見通しが悪く、狭く感じるLDK。

  • 暮らすほどに永く愛着が増していく家

    扉や段差があるクローゼット

  • 暮らすほどに永く愛着が増していく家

    玄関横の洋室。

  • 暮らすほどに永く愛着が増していく家

    狭く暗い玄関と廊下。

  • 暮らすほどに永く愛着が増していく家

    トイレ

  • 暮らすほどに永く愛着が増していく家

    洗面脱衣室

リノベーション施工中 Process

  • 暮らすほどに永く愛着が増していく家

    和室を無くしダイニングへ。
    ダイニングのR壁製作中。

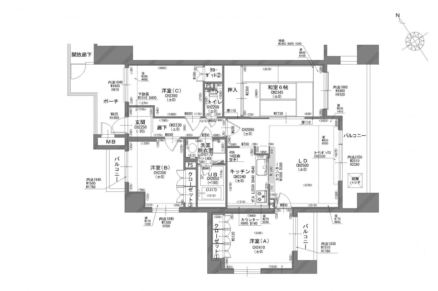
間取り Plan

リノベーション前

  • 暮らすほどに永く愛着が増していく家

    平面図(既存)

リノベーション後

  • 暮らすほどに永く愛着が増していく家

    平面図(プラン)

物件概要

所在地
広島市南区元宇品地区
延床面積
22㎡(6.7坪)
構造
SRC(鉄骨鉄筋コンクリート) 地上14階
既存建築年
1998年(築28年)
改修竣工年月
2023年08月

企業紹介

企業名
山根木材リモデリング株式会社
Webサイト
https://lp.remodeling-yamane.jp/
コメント

様々な物語が詰まったお住まいを活かし、新たな物語を紡ぐリフォーム・リノベーションをご提案いたします。
広島で100年以上の歴史を持つ山根木材。
戸建だけではなくマンション・古民家のリフォームにも対応しています。
木を使ったリフォームアイディアや気遣いのできる暮らしのアイディアをお届けします。

グレードとは

性能向上リノベでは、断熱と耐震のそれぞれの現行基準を3段階に分類し、基準を策定。性能向上リノベーションがされた証として、必要なエビデンス情報を登録し、安心・快適な家であるお墨付きの証として「性能向上登録証」を発行しています。これからの時代に選ばれる、安心・快適な家を可視化します。

断熱

ランク UA値 断熱等級
0.46 6
0.60 5
0.87 4
耐熱の説明

耐震

ランク 上部構造評点 耐震等級
1.5以上 3
1.25~1.5
未満
2
1.0~1.25
未満
1
耐震の説明
  • 建物は、自立循環型モデル住宅(在来工法)を対象に、地域区分は、6・7地域(都心部を中心)に策定しています。
  • UA値(外皮平均熱貫流率)とは住宅の内部から床、外壁、屋根(天井)や開口部などを通過して外部へ逃げる熱量を外皮全体で平均した値。値が小さいほど熱が逃げにくく、省エネルギー性能が高いことを示します。
  • 上部構造とは壁や柱など家の構造物のこと。上部構造評点とは、震度6強の地震で建物が倒壊しないために必要な力を数値で表した必要耐力(Qr)に対する現状の耐力の割合を表します。
  • 既存木造住宅の上部構造評点1.0、1.25、1.5は、品確法においての耐震等級1、2、3レベルに相当します。