2023年 エントリー作品

特別賞

小屋裏からカーポート屋根まで【狭小住宅 空間拡大リノベ】

持ち家リノベーション・リフォーム

耐震+断熱

2,000〜2,500万円

2022年09月

投票数

151 152

投票受付終了

リノベーション後 After

小屋裏からカーポート屋根まで【狭小住宅 空間拡大リノベ】

外壁は全面ガルバリウム鋼板に貼り替え。新しいカーポートは屋根にデッキテラスの付いたものを採用。少し小高い土地に建物があるため、2階テラスからは福井南の街並みが見下ろせます。

小屋裏からカーポート屋根まで【狭小住宅 空間拡大リノベ】

玄関は土間部分を大きく取り、お子様の自転車も家の中にしまうことができます。家族がそろって出かける時も帰宅時も混雑しません。断熱性の高い玄関引戸は袖ガラス付きにしたため、玄関内も明るく保ちます。

小屋裏からカーポート屋根まで【狭小住宅 空間拡大リノベ】

南側、東側の両方から光が差し込む明るいLDK。キッチン部のみ天井を下げ、印象を変えています。柱は加工せず、そのまま現しており、この建物の歩みを感じ取れます。

小屋裏からカーポート屋根まで【狭小住宅 空間拡大リノベ】

LDKから洗面、ファミリークローゼットまで一体化。廊下や扉を無くすことで圧迫感を感じない間取りに。壁の位置を少しずらしているため、ファミリークローゼットが見えてしまうことはありません。

小屋裏からカーポート屋根まで【狭小住宅 空間拡大リノベ】

東向きの窓とカウンター。隣には書棚にもなる収納も。お子様が宿題をしたり、大人たちがブレイクタイムを楽しんだり。多目的に使える空間です。天井上にはご主人様こだわりの間接照明を。

小屋裏からカーポート屋根まで【狭小住宅 空間拡大リノベ】

屋根断熱、壁断熱、気密工事を行ったことで、真夏も快適にすごせる小屋裏部屋となりました。お子様が小さい間は遊び部屋兼家族全員の寝室となる予定です。

リノベーション前 Before

  • 小屋裏からカーポート屋根まで【狭小住宅 空間拡大リノベ】

    前面のみ外壁を貼り換えているものの、それ以外の部分は建築当初からのサイディング張り。チョーキング現象が見られ、メンテナンス時期に達していました。瓦屋根は状態も良かったため、リフォーム後もこのまま使用しています。

  • 小屋裏からカーポート屋根まで【狭小住宅 空間拡大リノベ】

    玄関ホールは狭く、収納も使いづらいため、靴が散らかり、家族で出かける時は渋滞します。

  • 小屋裏からカーポート屋根まで【狭小住宅 空間拡大リノベ】

    家族6人が集まるには狭いダイニングキッチン。造り付けの収納は無いため、食器棚などの家具を置く必要があり、居場所は狭くなるばかり。

  • 小屋裏からカーポート屋根まで【狭小住宅 空間拡大リノベ】

    朝は取り合いになってしまう、北側奥の洗面化粧台。また、大きな窓は単板ガラスのアルミサッシ。大変寒く辛い洗面脱衣室でした。

  • 小屋裏からカーポート屋根まで【狭小住宅 空間拡大リノベ】

    夏は暑くて居られません。だんだん使わなくなり、今では物置状態に。

リノベーション施工中 Process

  • 小屋裏からカーポート屋根まで【狭小住宅 空間拡大リノベ】

    まずは間仕切り壁、外壁、床板、天井板の全てを解体していきます。

  • 小屋裏からカーポート屋根まで【狭小住宅 空間拡大リノベ】

    耐震補強のため、筋交いを増やし、筋交い金物などを取り付けていきます。耐力壁量を増やし、配置を見直すことで、積雪時の地震にも耐えられる強度を確保しました。

  • 小屋裏からカーポート屋根まで【狭小住宅 空間拡大リノベ】

    壁内には85mmの吹付断熱を。

  • 小屋裏からカーポート屋根まで【狭小住宅 空間拡大リノベ】

    屋根下に215mmの吹付断熱を行っています。

間取り Plan

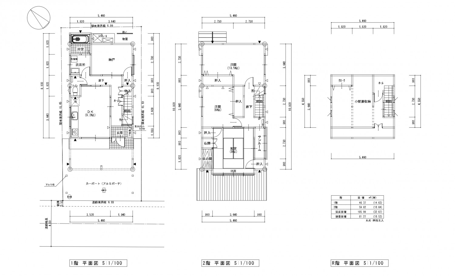
リノベーション前

  • 小屋裏からカーポート屋根まで【狭小住宅 空間拡大リノベ】

    家族6人が集まる1階DKは狭く、暗い位置に。また、各部屋をつなぐ廊下が、狭小住宅を更に狭い空間にしている原因に。家事動線も悪く、収納の少ない状況で、生活しづらいお住まいでした。

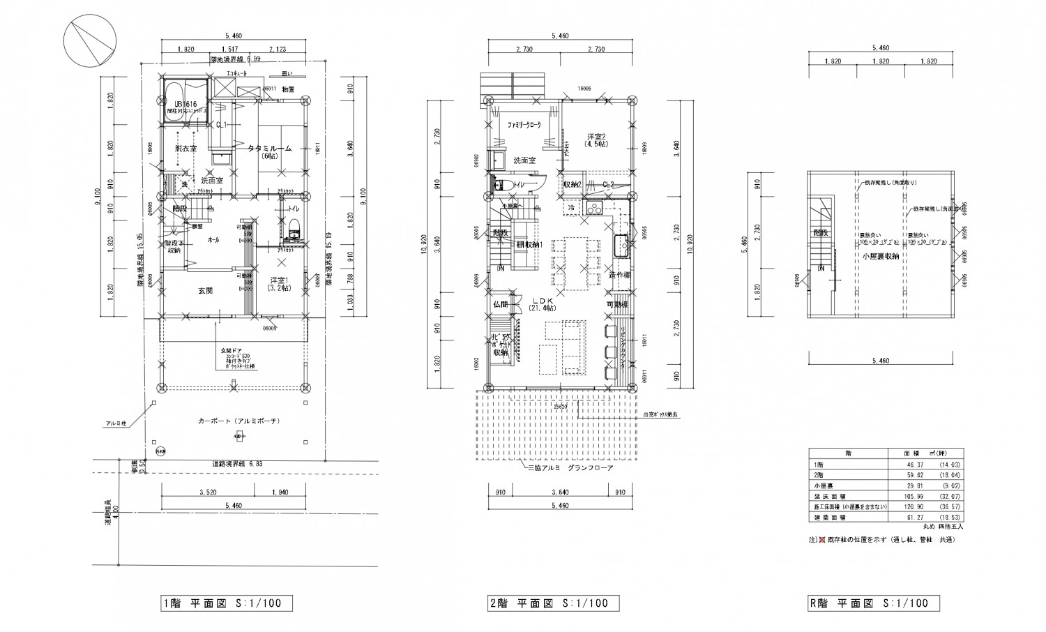
リノベーション後

  • 小屋裏からカーポート屋根まで【狭小住宅 空間拡大リノベ】

    2階にLDKを配したことで1階には大きな玄関土間と憧れだった広いホールが。靴であふれていた現状の改善とご主人様の趣味のキャンプ用品も保管できるように。2階は廊下を無くすことで広いLDKを配置。カーポート上のデッキテラスがよりLDKの広さを演出します。階段室を西側に持っていくことで小屋裏部屋も明るい空間へと変わりました。

物件概要

所在地
福井県福井市
敷地面積
103.41㎡(31.28坪)
延床面積
105.99㎡(32.06坪)
構造
木造在来2階建
既存建築年
1996年(築30年)
改修竣工年月
2022年09月
断熱性能
UA値 改修後0.57w/㎡・K
耐震性能
上部構造評点 改修前0.18 ⇒ 改修後1.0

企業紹介

企業名
株式会社タキナミ
Webサイト
https://takinami-reform.jp/
コメント

タキナミはこの度、創業100年を迎えました。この100年の中で培ってきた技術を最大限に活かし、地域の住まい再生を手掛けていくこと。外見や内装が綺麗になるだけでなく、高い基準の耐震性・断熱性を実現。タキナミのリノベーションでは“本当の意味での再生”にこだわっています。

グレードとは

性能向上リノベでは、断熱と耐震のそれぞれの現行基準を3段階に分類し、基準を策定。性能向上リノベーションがされた証として、必要なエビデンス情報を登録し、安心・快適な家であるお墨付きの証として「性能向上登録証」を発行しています。これからの時代に選ばれる、安心・快適な家を可視化します。

断熱

ランク UA値 断熱等級
0.46 6
0.60 5
0.87 4
耐熱の説明

耐震

ランク 上部構造評点 耐震等級
1.5以上 3
1.25~1.5
未満
2
1.0~1.25
未満
1
耐震の説明
  • 建物は、自立循環型モデル住宅(在来工法)を対象に、地域区分は、6・7地域(都心部を中心)に策定しています。
  • UA値(外皮平均熱貫流率)とは住宅の内部から床、外壁、屋根(天井)や開口部などを通過して外部へ逃げる熱量を外皮全体で平均した値。値が小さいほど熱が逃げにくく、省エネルギー性能が高いことを示します。
  • 上部構造とは壁や柱など家の構造物のこと。上部構造評点とは、震度6強の地震で建物が倒壊しないために必要な力を数値で表した必要耐力(Qr)に対する現状の耐力の割合を表します。
  • 既存木造住宅の上部構造評点1.0、1.25、1.5は、品確法においての耐震等級1、2、3レベルに相当します。