2023年 エントリー作品

特別賞

性能向上リノベーションプロジェクト M様邸

持ち家リノベーション・リフォーム

ゾーン断熱

2,000万円

2023年02月

投票数

107 108

投票受付終了

リノベーション後 After

性能向上リノベーションプロジェクト M様邸

お子様がリビングで勉強できるよう造作棚を設けました。

性能向上リノベーションプロジェクト M様邸

北欧デザインを取り入れ、階段下に秘密基地を作りました。

性能向上リノベーションプロジェクト M様邸

洗面にも北欧デザインを取り入れております。また、気密も高いので洗濯物をここで干して渇きます。

性能向上リノベーションプロジェクト M様邸

洗面で干した洗濯ものは、隣のファミリークローゼットに収納できる動線となっております。

性能向上リノベーションプロジェクト M様邸

広い大空間を実現し、床には無垢材を使用しました。この広い空間でも暖かさを維持できます。

性能向上リノベーションプロジェクト M様邸

お風呂も断熱してますので結露によるカビの心配は一切ありません。

リノベーション前 Before

  • 性能向上リノベーションプロジェクト M様邸

    広い玄関に広い廊下が現代の生活に合わないところがあります。

  • 性能向上リノベーションプロジェクト M様邸

    和室の続き間も物置として利用されています。

  • 性能向上リノベーションプロジェクト M様邸

    廊下と和室に段差がありつまづきます。

  • 性能向上リノベーションプロジェクト M様邸

    廊下と和室を仕切るのは襖になっており温めた空気が逃げてしまいます。

  • 性能向上リノベーションプロジェクト M様邸

    床下は無断熱でした。足元から冷える仕様です。

リノベーション施工中 Process

  • 性能向上リノベーションプロジェクト M様邸

    先ず断熱のため、内部を裸にします。構造部分に傷がつかないよう慎重に解体します。

  • 性能向上リノベーションプロジェクト M様邸

    天井には200mm、壁は80mm、発砲ウレタン断熱(アクアフォーム)を施工しました。

  • 性能向上リノベーションプロジェクト M様邸

    床下は120mm発砲ウレタン断熱(アクアフォーム)を施工しました。

  • 性能向上リノベーションプロジェクト M様邸

    耐震金物も取付ております。

  • 性能向上リノベーションプロジェクト M様邸

    断熱後は、気密を取るために気密シートを張ります。

  • 性能向上リノベーションプロジェクト M様邸

    2重窓にはプラマードを採用しました。性能がしっかりしております。

間取り Plan

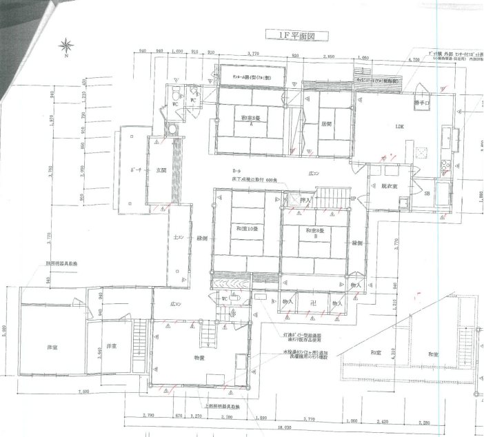
リノベーション前

  • 性能向上リノベーションプロジェクト M様邸

    玄関が広く奥のLDKに向かう廊下も広いです。和室も続いております。お客様を招くための空間に重きを置かれた間取りです。

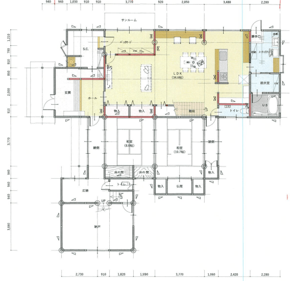
リノベーション後

  • 性能向上リノベーションプロジェクト M様邸

    家族が生活する空間を検討し、ゾーン断熱を選択しました。水廻り動線を重要視し、回遊できる間取りとなりました。

物件概要

所在地
福井県福井市
延床面積
98.68㎡(29.85坪)
構造
木造在来2階建て
既存建築年
1990年(築36年)
改修竣工年月
2023年02月
断熱性能
UA値 改修後0.53w/㎡・K

企業紹介

企業名
株式会社クロダハウス
Webサイト
https://www.kurodahouse-renovation.jp/
コメント

北欧には「親の代で家を建て、子の代でサマーハウス(別荘)を、さらに孫の代ではヨットを。」という言葉があります。
つまり家というものが短期間に消費されず、良質な資産となることで家族がますます豊かになれるということです。
これは北欧における住まいの考え方、暮らしの豊かさの原点というものをとても上手く表現していると思います。
北陸にも世代を超えて住み継ぐ文化を根付かせたい。それこそが私たちクロダハウスが考えるリノベーションの存在意義だと考えています。

グレードとは

性能向上リノベでは、断熱と耐震のそれぞれの現行基準を3段階に分類し、基準を策定。性能向上リノベーションがされた証として、必要なエビデンス情報を登録し、安心・快適な家であるお墨付きの証として「性能向上登録証」を発行しています。これからの時代に選ばれる、安心・快適な家を可視化します。

断熱

ランク UA値 断熱等級
0.46 6
0.60 5
0.87 4
耐熱の説明

耐震

ランク 上部構造評点 耐震等級
1.5以上 3
1.25~1.5
未満
2
1.0~1.25
未満
1
耐震の説明
  • 建物は、自立循環型モデル住宅(在来工法)を対象に、地域区分は、6・7地域(都心部を中心)に策定しています。
  • UA値(外皮平均熱貫流率)とは住宅の内部から床、外壁、屋根(天井)や開口部などを通過して外部へ逃げる熱量を外皮全体で平均した値。値が小さいほど熱が逃げにくく、省エネルギー性能が高いことを示します。
  • 上部構造とは壁や柱など家の構造物のこと。上部構造評点とは、震度6強の地震で建物が倒壊しないために必要な力を数値で表した必要耐力(Qr)に対する現状の耐力の割合を表します。
  • 既存木造住宅の上部構造評点1.0、1.25、1.5は、品確法においての耐震等級1、2、3レベルに相当します。