2023年 エントリー作品

特別賞

5代にわたって受け継がれてきた築110年の歴史ある家

持ち家リノベーション・リフォーム

ゾーン断熱

3,300万円

2023年02月

投票数

14 15

投票受付終了

リノベーション後 After

5代にわたって受け継がれてきた築110年の歴史ある家

ダイニングキッチン、水回り、和室をひとつなぎにし、広々としたLDKに。
タイルの床と板張り天井とが相まって、まるでギャラリーかのような凛とした空間となった。

5代にわたって受け継がれてきた築110年の歴史ある家

日本家屋ならではの中庭は、夜も外とのつながりを感じられるよう、魅力的な照明計画で贅沢な空間に。

5代にわたって受け継がれてきた築110年の歴史ある家

重厚感のある立派な梁。
その美しさをそのままに、落ち着きのある広々とした和モダンな寝室となった。

5代にわたって受け継がれてきた築110年の歴史ある家

漆喰の壁と上品な濃い色の格子戸で、洗練された趣のある土間空間を演出。

5代にわたって受け継がれてきた築110年の歴史ある家

外観はシンプルながら、温かみのあるブラウンの塗り壁でモダンな雰囲気に。

リノベーション前 Before

  • 5代にわたって受け継がれてきた築110年の歴史ある家

    土間から続く、ひんやりと冷たい印象の廊下。

  • 5代にわたって受け継がれてきた築110年の歴史ある家

    天井が低く圧迫感が感じられる居間。

  • 5代にわたって受け継がれてきた築110年の歴史ある家

    壁付けのキッチン。
    冬は足元の冷えが大きなストレスだった。

  • 5代にわたって受け継がれてきた築110年の歴史ある家

    部屋が細かく仕切られていた室内。

リノベーション施工中 Process

  • 5代にわたって受け継がれてきた築110年の歴史ある家

    柱を残しながら、性能を向上させていく。

  • 5代にわたって受け継がれてきた築110年の歴史ある家

    天井は金物補強を行い、生まれ変わらせていく。

  • 5代にわたって受け継がれてきた築110年の歴史ある家

    2階は梁を残し、築110年の重みを感じられるように。

  • 5代にわたって受け継がれてきた築110年の歴史ある家

    外張断熱を隙間なく施工。

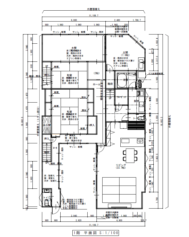
間取り Plan

リノベーション前

  • 5代にわたって受け継がれてきた築110年の歴史ある家

    改修前 1階平面図

  • 5代にわたって受け継がれてきた築110年の歴史ある家

    改修前 1階平面図

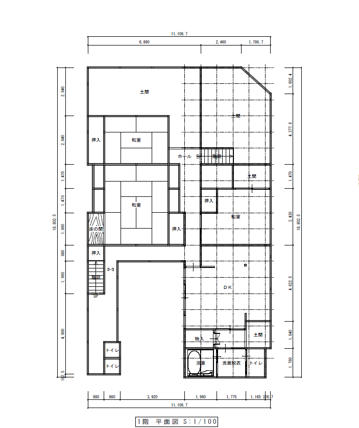
リノベーション後

  • 5代にわたって受け継がれてきた築110年の歴史ある家

    改修後 1階平面図

  • 5代にわたって受け継がれてきた築110年の歴史ある家

    改修後 2階平面図

物件概要

所在地
長崎県諫早市
延床面積
294.53㎡(89.09坪)
構造
木造在来2階建て
既存建築年
1913年(築113年)
改修竣工年月
2023年02月
断熱性能
UA値 改修前3.26w/㎡・K⇒改修後0.55w/㎡・K(改修前の6倍に向上)
設計

宮崎勇次

企業紹介

企業名
株式会社ムラヤマ
Webサイト
https://www.murayama-co.jp/

グレードとは

性能向上リノベでは、断熱と耐震のそれぞれの現行基準を3段階に分類し、基準を策定。性能向上リノベーションがされた証として、必要なエビデンス情報を登録し、安心・快適な家であるお墨付きの証として「性能向上登録証」を発行しています。これからの時代に選ばれる、安心・快適な家を可視化します。

断熱

ランク UA値 断熱等級
0.46 6
0.60 5
0.87 4
耐熱の説明

耐震

ランク 上部構造評点 耐震等級
1.5以上 3
1.25~1.5
未満
2
1.0~1.25
未満
1
耐震の説明
  • 建物は、自立循環型モデル住宅(在来工法)を対象に、地域区分は、6・7地域(都心部を中心)に策定しています。
  • UA値(外皮平均熱貫流率)とは住宅の内部から床、外壁、屋根(天井)や開口部などを通過して外部へ逃げる熱量を外皮全体で平均した値。値が小さいほど熱が逃げにくく、省エネルギー性能が高いことを示します。
  • 上部構造とは壁や柱など家の構造物のこと。上部構造評点とは、震度6強の地震で建物が倒壊しないために必要な力を数値で表した必要耐力(Qr)に対する現状の耐力の割合を表します。
  • 既存木造住宅の上部構造評点1.0、1.25、1.5は、品確法においての耐震等級1、2、3レベルに相当します。