2023年 エントリー作品

特別賞

「キレイな空気が循環する家」

中古物件購入+リノベーション

断熱

2,000万円

2023年02月

投票数

300 301

投票受付終了

リノベーション後 After

「キレイな空気が循環する家」

キッチンはPanasonic ラクシーナを採用しています。

「キレイな空気が循環する家」

キッチンとリビングダイニングがオープンなので
ご家族の気配を感じながらお料理をすることができます。

「キレイな空気が循環する家」

洗面所のクッションフロアはヘリンボーン柄でかわいらしい印象です。

「キレイな空気が循環する家」

2階子供室です。お子様たちの成長に合わせて仕切り壁を増設する予定です。
床下で温めた空気が循環するように計算して設計しているので各部屋に空気が流れるように通気口が設けられています。

「キレイな空気が循環する家」

階段にも通気口を作り空気が部屋中を循環するように空気の流れを計算して設計されています。

「キレイな空気が循環する家」

2階書斎です。
床下で温めた空気が循環するように計算して設計しているので各部屋に空気が流れるように通気口が設けられています。

リノベーション前 Before

  • 「キレイな空気が循環する家」

    リノベーション前の外観です。

  • 「キレイな空気が循環する家」

    リノベーション前のキッチンです。

  • 「キレイな空気が循環する家」

    リノベーション前のリビングです。

  • 「キレイな空気が循環する家」

    リノベーション前の2階個室です。

  • 「キレイな空気が循環する家」

    リノベーション前の1階和室です。

  • 「キレイな空気が循環する家」

    リノベーション前の玄関です。

リノベーション施工中 Process

  • 「キレイな空気が循環する家」

    基礎まで解体中です。使える木材は再利用します。

  • 「キレイな空気が循環する家」

    基礎断熱工事です。

  • 「キレイな空気が循環する家」

    床下のパイピングです。このパイピングを床下に張り巡らせ、温めた空気が家中を循環します。
    徹底した技術力により高気密+第2種換気システム+エコブレスが家全体をあたたかくすることを実現します。

  • 「キレイな空気が循環する家」

    高性能ウレタン断熱パネル「ヒートコアパネル」を施工することで建物の寿命を締める壁の内部結露を抑えることができます。高断熱、高耐震、高耐久のヒートコアパネルはLIXILが35年無結露保障を実現しています。

  • 「キレイな空気が循環する家」

    エコブレスの為の通気口です。この開口部に床ガラリを設置します。

  • 「キレイな空気が循環する家」

    気密シートと気密テープでしっかり隙間を塞いでいます。

間取り Plan

リノベーション前

  • 「キレイな空気が循環する家」

    リノベーション前の1階間取り図

  • 「キレイな空気が循環する家」

    リノベーション前の2階間取り図

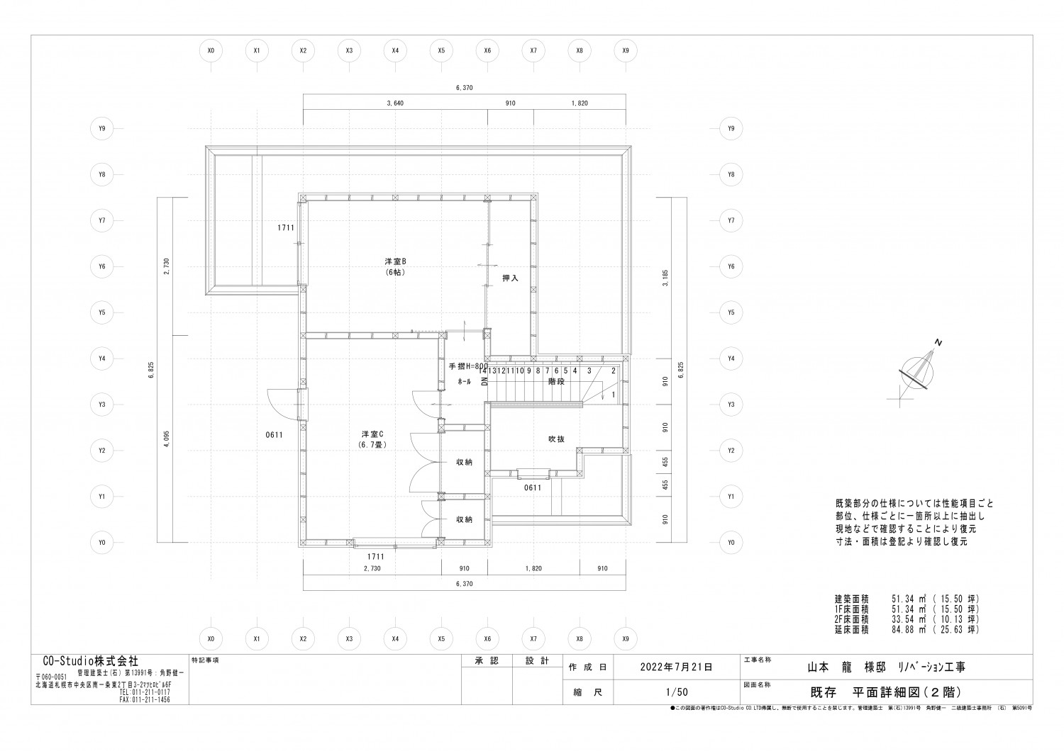
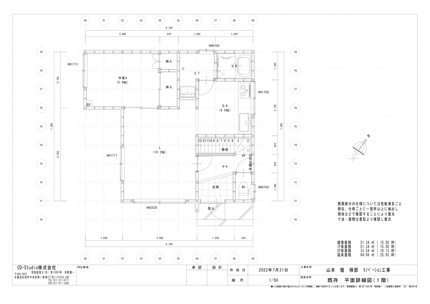
リノベーション後

  • 「キレイな空気が循環する家」

    リノベーション後の1階の間取り図です

  • 「キレイな空気が循環する家」

    リノベーション後の2階の間取り図です

物件概要

所在地
札幌市西区
敷地面積
135.06㎡(40.77坪)
延床面積
97.71㎡(29.50坪)
構造
木造在来2階建
既存建築年
47年(築1979年)
改修竣工年月
2023年02月
断熱性能
UA値 改修後0.27w/㎡・K
設計

CO‐Studio株式会社

企業紹介

企業名
株式会社 建築舎
Webサイト
https://kenchikusha.net/
コメント

建築舎の強みである住宅の経験、技術を活かし、再生可能な木材の再利用、また健康を考えたパッシブ設計による換気システムとデザインを導入し、健康な住まいづくり、そして未来に価値ある住宅を提供していきます。

グレードとは

性能向上リノベでは、断熱と耐震のそれぞれの現行基準を3段階に分類し、基準を策定。性能向上リノベーションがされた証として、必要なエビデンス情報を登録し、安心・快適な家であるお墨付きの証として「性能向上登録証」を発行しています。これからの時代に選ばれる、安心・快適な家を可視化します。

断熱

ランク UA値 断熱等級
0.46 6
0.60 5
0.87 4
耐熱の説明

耐震

ランク 上部構造評点 耐震等級
1.5以上 3
1.25~1.5
未満
2
1.0~1.25
未満
1
耐震の説明
  • 建物は、自立循環型モデル住宅(在来工法)を対象に、地域区分は、6・7地域(都心部を中心)に策定しています。
  • UA値(外皮平均熱貫流率)とは住宅の内部から床、外壁、屋根(天井)や開口部などを通過して外部へ逃げる熱量を外皮全体で平均した値。値が小さいほど熱が逃げにくく、省エネルギー性能が高いことを示します。
  • 上部構造とは壁や柱など家の構造物のこと。上部構造評点とは、震度6強の地震で建物が倒壊しないために必要な力を数値で表した必要耐力(Qr)に対する現状の耐力の割合を表します。
  • 既存木造住宅の上部構造評点1.0、1.25、1.5は、品確法においての耐震等級1、2、3レベルに相当します。