2023年 エントリー作品

特別賞

二戸の住戸を一つにつなぐ。ニコイチ暮らし始めました。

持ち家リノベーション・リフォーム

断熱

1,870万円

2019年09月

投票数

75 76

投票受付終了

リノベーション後 After

二戸の住戸を一つにつなぐ。ニコイチ暮らし始めました。

メインリビングとなる”招くリビング”はニコイチだからこそ実現できる24畳の広々空間。空調効率を考え、トイレ以外はドアで仕切られていないので一台のエアコン(4kw)でも全体が同じ温度に保たれ快適な空間となった。

二戸の住戸を一つにつなぐ。ニコイチ暮らし始めました。

セカンドリビングは”くつろぐリビング”としてテレビを見ながら洗濯物を畳んだり、子供たちの友人が遊びに来た際に活躍するスペースとなっている。

二戸の住戸を一つにつなぐ。ニコイチ暮らし始めました。

メインリビングの横にはスタディスペースを設置。リビング全体を見渡せるので家族と一体感のある空間で宿題や在宅ワークに最適な場所となっていたが、最近では奥様のお風呂上がりのスキンケアスペースとしても活躍。

二戸の住戸を一つにつなぐ。ニコイチ暮らし始めました。

広々とした洗面脱衣室は洗面カウンターの上にガス乾燥機を設置することで出し入れしやすい高さと、洗濯物の一次置き場としてのスペースとして活躍。

二戸の住戸を一つにつなぐ。ニコイチ暮らし始めました。

外廊下を増築で遮るり、内廊下として利用することで二戸の住戸を一つにつなぐ”ニコイチ暮らし”を手に入れた。

二戸の住戸を一つにつなぐ。ニコイチ暮らし始めました。

玄関を開けるとアーチがお目見え。正面には絵画を飾り、左右どちらからも部屋にアクセスできるようになっている。

リノベーション前 Before

  • 二戸の住戸を一つにつなぐ。ニコイチ暮らし始めました。

    ありふれたマンションの内装。

  • 二戸の住戸を一つにつなぐ。ニコイチ暮らし始めました。

    建物の日当たりは悪くないが、日が当たる部屋と日が当たらない部屋との温度差を感じていた。

  • 二戸の住戸を一つにつなぐ。ニコイチ暮らし始めました。

    建物の日当たりは悪くないが、日が当たる部屋と日が当たらない部屋との温度差を感じていた。

リノベーション施工中 Process

  • 二戸の住戸を一つにつなぐ。ニコイチ暮らし始めました。

    ネオマフォームを充填し気密シートで密閉。この後天井の気密シートとも連結。

  • 二戸の住戸を一つにつなぐ。ニコイチ暮らし始めました。

    ネオマフォームを充填し気密シートで密閉。この後天井の気密シートとも連結。

  • 二戸の住戸を一つにつなぐ。ニコイチ暮らし始めました。

    ネオマフォームを充填し気密シートで密閉。この後壁の気密シートとも連結。

  • 二戸の住戸を一つにつなぐ。ニコイチ暮らし始めました。

    ネオマフォームを充填し気密シートで密閉。この後壁の気密シートとも連結。

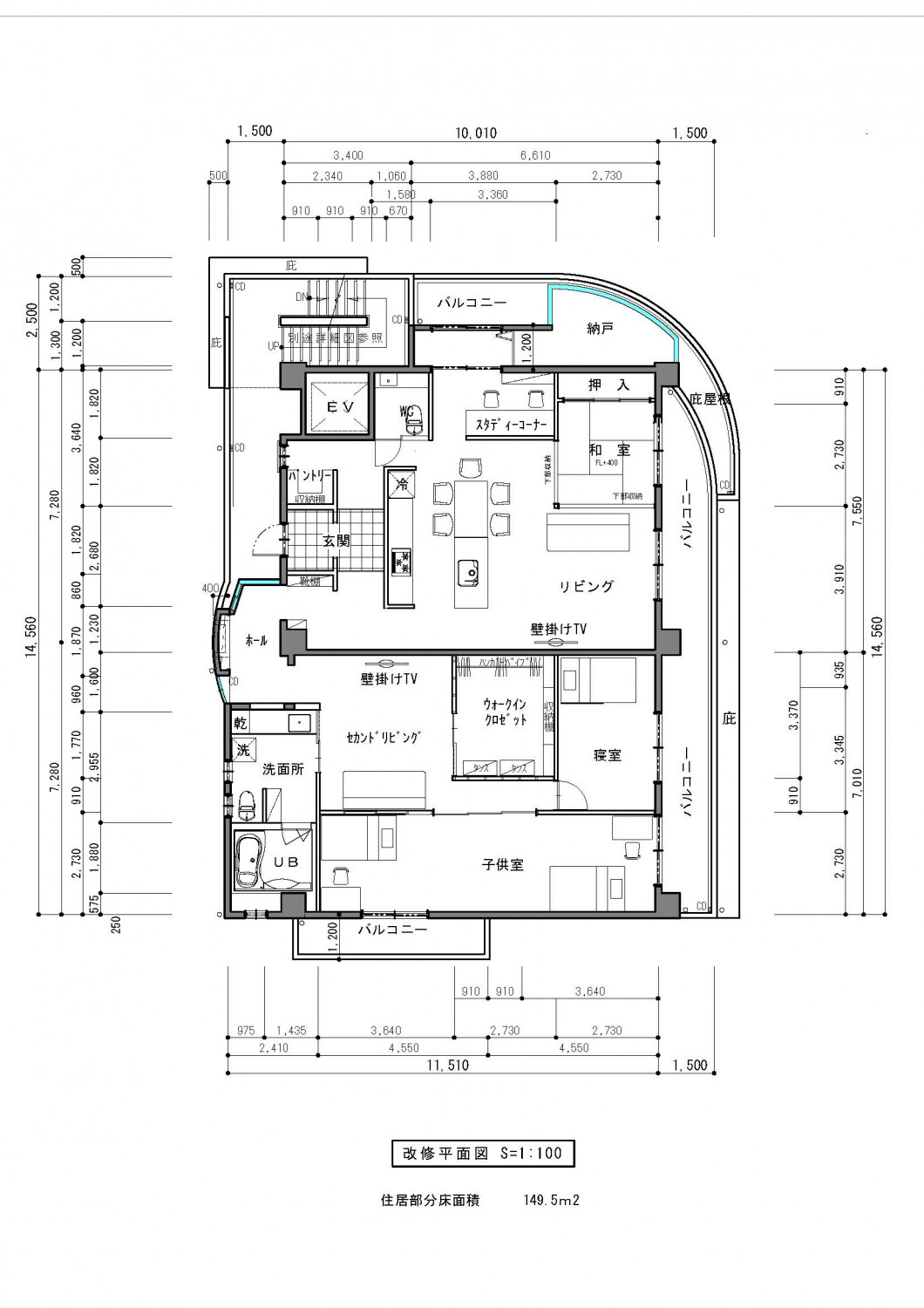
間取り Plan

リノベーション前

  • 二戸の住戸を一つにつなぐ。ニコイチ暮らし始めました。

    ワンフロアに2LDKが二戸のマンション。
    一戸あたりの面積は70m2ほどで、築浅物件だが無断熱の物件だった。

リノベーション後

  • 二戸の住戸を一つにつなぐ。ニコイチ暮らし始めました。

    外廊下を住戸に取り込むプチ増築を行うことで二戸の住戸を一つにつなぐ「ニコイチ暮らし」を手に入れた

物件概要

所在地
鹿児島市
延床面積
149.5㎡(45坪)
構造
RC造3階建て
既存建築年
2005年(築21年)
改修竣工年月
2019年09月
断熱性能
UA値 改修後0.39w/㎡・K
設計

大城 仁

企業紹介

企業名
株式会社 大城

グレードとは

性能向上リノベでは、断熱と耐震のそれぞれの現行基準を3段階に分類し、基準を策定。性能向上リノベーションがされた証として、必要なエビデンス情報を登録し、安心・快適な家であるお墨付きの証として「性能向上登録証」を発行しています。これからの時代に選ばれる、安心・快適な家を可視化します。

断熱

ランク UA値 断熱等級
0.46 6
0.60 5
0.87 4
耐熱の説明

耐震

ランク 上部構造評点 耐震等級
1.5以上 3
1.25~1.5
未満
2
1.0~1.25
未満
1
耐震の説明
  • 建物は、自立循環型モデル住宅(在来工法)を対象に、地域区分は、6・7地域(都心部を中心)に策定しています。
  • UA値(外皮平均熱貫流率)とは住宅の内部から床、外壁、屋根(天井)や開口部などを通過して外部へ逃げる熱量を外皮全体で平均した値。値が小さいほど熱が逃げにくく、省エネルギー性能が高いことを示します。
  • 上部構造とは壁や柱など家の構造物のこと。上部構造評点とは、震度6強の地震で建物が倒壊しないために必要な力を数値で表した必要耐力(Qr)に対する現状の耐力の割合を表します。
  • 既存木造住宅の上部構造評点1.0、1.25、1.5は、品確法においての耐震等級1、2、3レベルに相当します。