2023年 エントリー作品

コンパクトな3階建の都市型リノベーション住宅

持ち家リノベーション・リフォーム

断熱

3,000万円

2023年01月

投票数

22 23

投票受付終了

リノベーション後 After

コンパクトな3階建の都市型リノベーション住宅

温かみのある塗り壁にブラウンの窓枠で、やわらかい印象の外観。

コンパクトな3階建の都市型リノベーション住宅

日当たりが悪く暗くなりがちな2階は、吹き抜けをつくり、明るく開放感あふれる空間に。

コンパクトな3階建の都市型リノベーション住宅

温かみのある心地よいLDK。気持ちよく暮らすことを第一に、ご家族の想いが詰まった上質な住まいの完成。

コンパクトな3階建の都市型リノベーション住宅

暗くなりがちな階段は、縦ラインの間接照明でスタイリッシュな明るい空間に。

コンパクトな3階建の都市型リノベーション住宅

吹き抜け空間を照らすことで、部屋全体が柔らかな印象となった。

リノベーション前 Before

  • コンパクトな3階建の都市型リノベーション住宅

    築50年、鉄骨3階建ての外観。

  • コンパクトな3階建の都市型リノベーション住宅

    2階は全て畳の部屋だった。

  • コンパクトな3階建の都市型リノベーション住宅

    北向きのキッチンは隣家の影となり、暗くて少し寂しい感じがしていた。

  • コンパクトな3階建の都市型リノベーション住宅

    踏み面は足が出てしまうほど狭く、手摺がないと登れないほど急な階段だった。

リノベーション施工中 Process

  • コンパクトな3階建の都市型リノベーション住宅

    潔く舵をきったフルスケルトンのリノベーション。

  • コンパクトな3階建の都市型リノベーション住宅

    無断熱の状態だった壁。

  • コンパクトな3階建の都市型リノベーション住宅

    コンクリートブロックに取り付けられたアルミサッシ。

  • コンパクトな3階建の都市型リノベーション住宅

    屋根には吹付断熱材をしっかり施工。

  • コンパクトな3階建の都市型リノベーション住宅

    隙間なく施工してくださる大工さんの腕はさすが。

間取り Plan

リノベーション前

  • コンパクトな3階建の都市型リノベーション住宅

    改修前 1階平面図

  • コンパクトな3階建の都市型リノベーション住宅

    改修前 2階平面図

  • コンパクトな3階建の都市型リノベーション住宅

    改修前 3階平面図

リノベーション後

  • コンパクトな3階建の都市型リノベーション住宅

    改修後 1階平面図

  • コンパクトな3階建の都市型リノベーション住宅

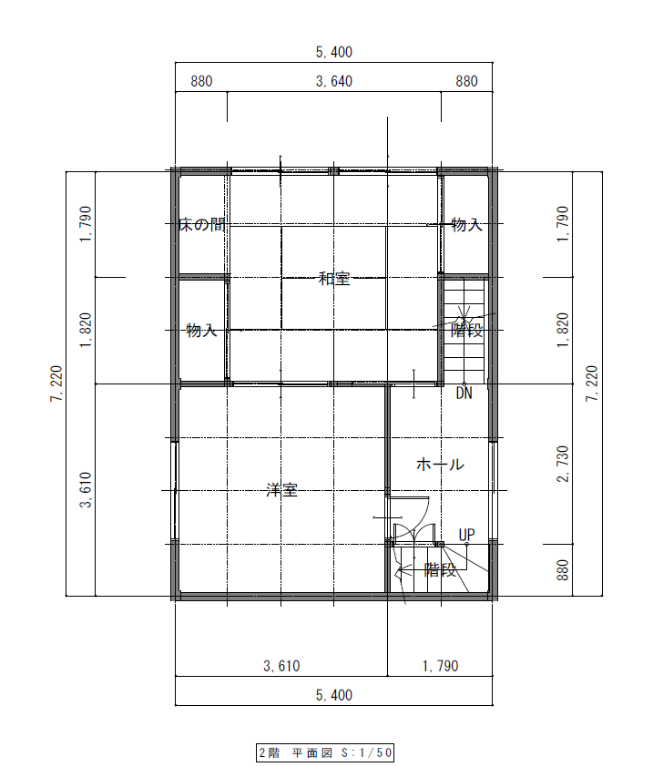
    改修後 2階平面図

  • コンパクトな3階建の都市型リノベーション住宅

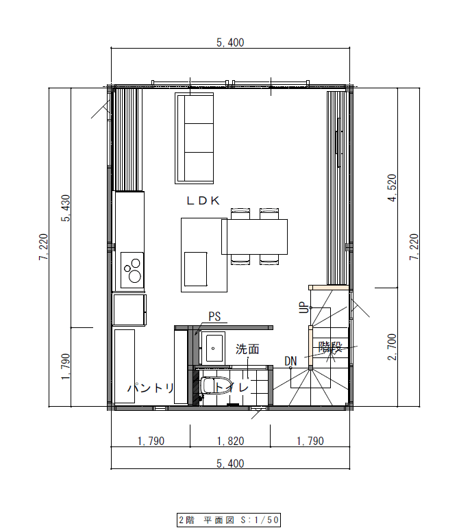
    改修後 3階平面図

物件概要

所在地
長崎県長崎市
敷地面積
64.74㎡(19.6坪)
延床面積
104.47㎡(31.6坪)
構造
鉄骨造(S造)3階建
既存建築年
1973年(築53年)
改修竣工年月
2023年01月
断熱性能
UA値 改修前3.26w/㎡・K⇒改修後0.41w/㎡・K(改修前の8倍に向上)
設計

宮崎勇次

企業紹介

企業名
株式会社ムラヤマ
Webサイト
https://www.murayama-co.jp/

グレードとは

性能向上リノベでは、断熱と耐震のそれぞれの現行基準を3段階に分類し、基準を策定。性能向上リノベーションがされた証として、必要なエビデンス情報を登録し、安心・快適な家であるお墨付きの証として「性能向上登録証」を発行しています。これからの時代に選ばれる、安心・快適な家を可視化します。

断熱

ランク UA値 断熱等級
0.46 6
0.60 5
0.87 4
耐熱の説明

耐震

ランク 上部構造評点 耐震等級
1.5以上 3
1.25~1.5
未満
2
1.0~1.25
未満
1
耐震の説明
  • 建物は、自立循環型モデル住宅(在来工法)を対象に、地域区分は、6・7地域(都心部を中心)に策定しています。
  • UA値(外皮平均熱貫流率)とは住宅の内部から床、外壁、屋根(天井)や開口部などを通過して外部へ逃げる熱量を外皮全体で平均した値。値が小さいほど熱が逃げにくく、省エネルギー性能が高いことを示します。
  • 上部構造とは壁や柱など家の構造物のこと。上部構造評点とは、震度6強の地震で建物が倒壊しないために必要な力を数値で表した必要耐力(Qr)に対する現状の耐力の割合を表します。
  • 既存木造住宅の上部構造評点1.0、1.25、1.5は、品確法においての耐震等級1、2、3レベルに相当します。