2023年 エントリー作品

選考委員賞

東佐賀 準防火地域内平屋耐震断熱改修

中古物件購入+リノベーション

耐震+断熱

2,000〜2,500万円

2023年10月

投票数

306 307

投票受付終了

リノベーション後 After

東佐賀 準防火地域内平屋耐震断熱改修

LDKに入るとキッチンでお出迎え♡カウンターキッチンでおしゃれにカフェでもいかがですか?

東佐賀 準防火地域内平屋耐震断熱改修

リビングは勾配天井にし明るく、広い空間へ変更。奥に見えるネイビーの子供部屋の建具もアクセントに。

東佐賀 準防火地域内平屋耐震断熱改修

床はオーク、カウンター等は修正カウンター等積極的に木質化。

東佐賀 準防火地域内平屋耐震断熱改修

家具や照明もこの空間のアクセントに。ライティングレールをいれて好みの照明でイメージチェンジも可!

東佐賀 準防火地域内平屋耐震断熱改修

子ども部屋も将来間仕切りができるようにオープンに。室内グランピングもかわいいです。

東佐賀 準防火地域内平屋耐震断熱改修

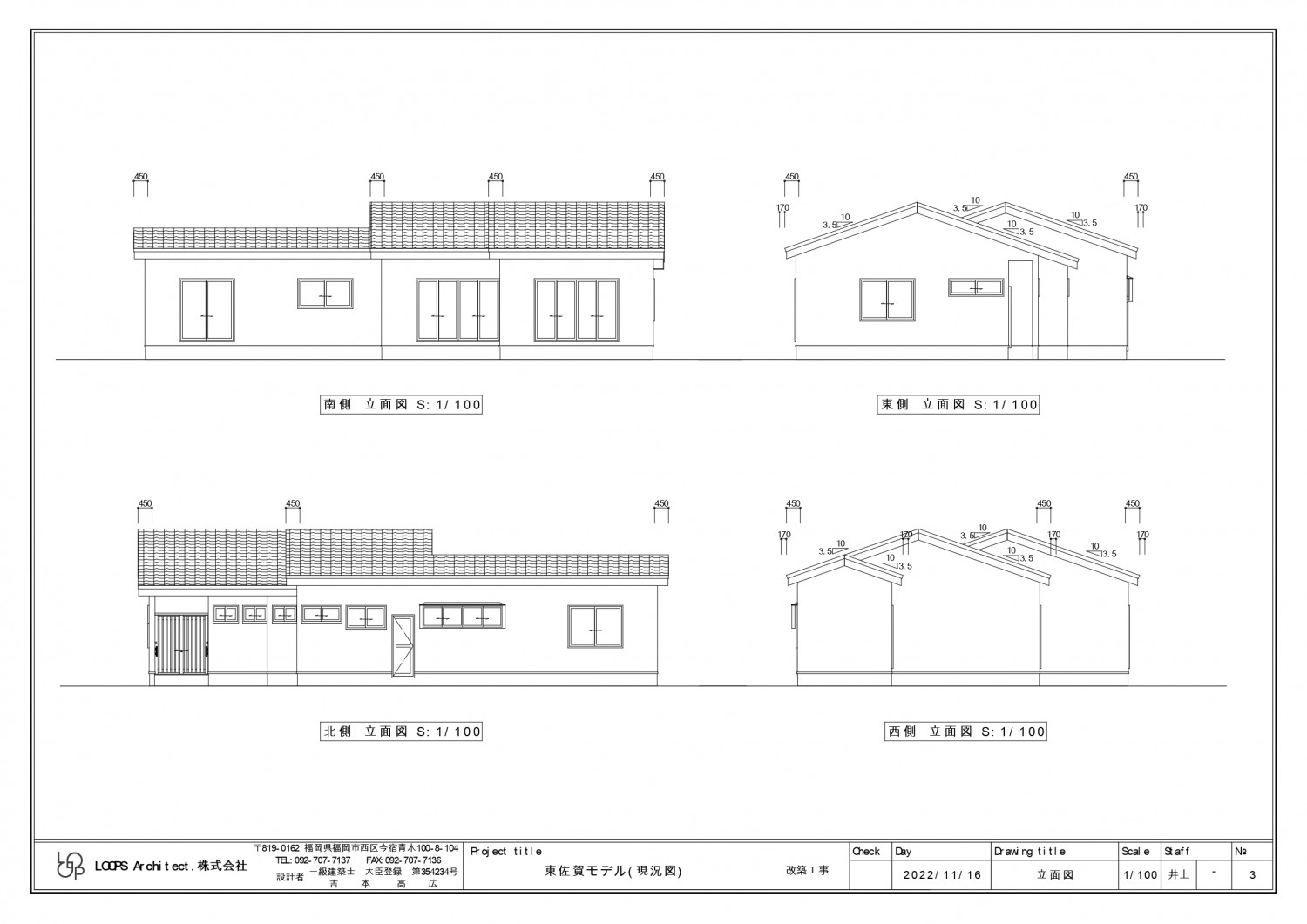
軒天も木質化。
斜め壁の壁で軒の出を深くし、夏場の直射日光を塞ぎ、冬場には積極的に日光が入るパッシブ設計。

リノベーション前 Before

  • 東佐賀 準防火地域内平屋耐震断熱改修

    雨漏れと畳の腐れがひどい内装

  • 東佐賀 準防火地域内平屋耐震断熱改修

    奥の和室。畳はぶよぶよ。

  • 東佐賀 準防火地域内平屋耐震断熱改修

    植栽ぼさぼさ。
    隣りに水路。手前には橋があり、共有利用申請必要。

  • 東佐賀 準防火地域内平屋耐震断熱改修

    キッチンの床は歩くことにも不安がある劣化具合。

  • 東佐賀 準防火地域内平屋耐震断熱改修

    基礎も無筋、ひび割れ有り。

  • 東佐賀 準防火地域内平屋耐震断熱改修

    昔の左官風呂。

リノベーション施工中 Process

  • 東佐賀 準防火地域内平屋耐震断熱改修

    木摺り。布基礎。ブロック基礎。

  • 東佐賀 準防火地域内平屋耐震断熱改修

    野地板腐れ有り。

  • 東佐賀 準防火地域内平屋耐震断熱改修

    断熱化途中。

  • 東佐賀 準防火地域内平屋耐震断熱改修

    屋根の補修と梁補強、柱の追加。

  • 東佐賀 準防火地域内平屋耐震断熱改修

    N値計算後に適宜に金物を取付。

  • 東佐賀 準防火地域内平屋耐震断熱改修

    勾配天井にすることに決定。
    明るく、広く見えるようにイメージしながら工事が進みます。

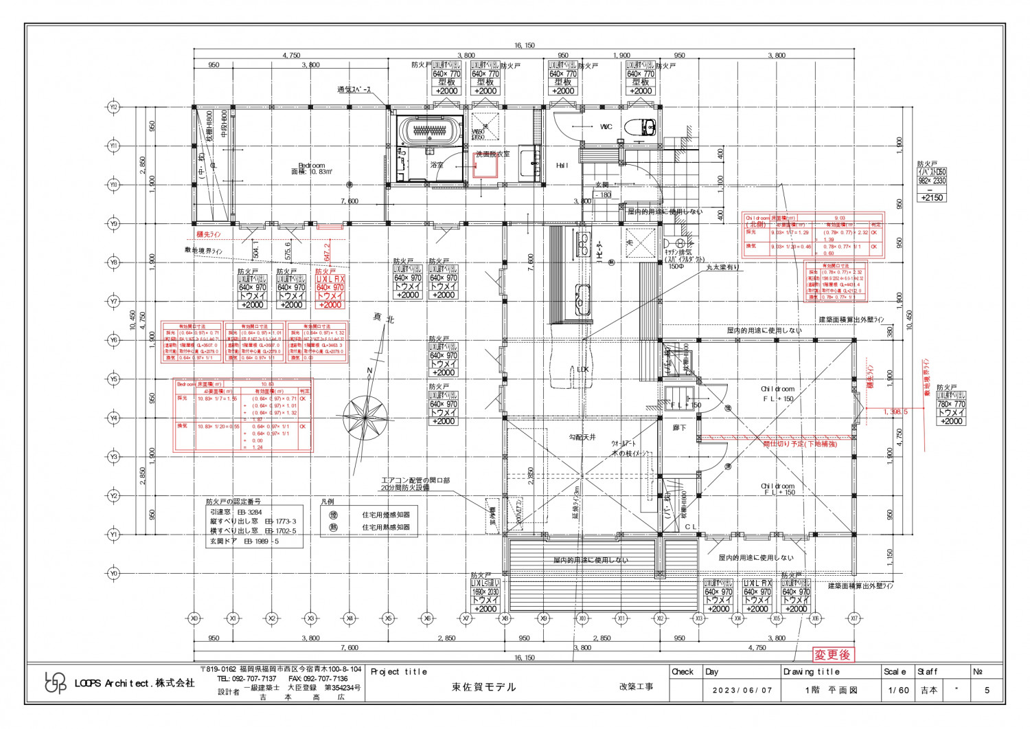
間取り Plan

リノベーション前

  • 東佐賀 準防火地域内平屋耐震断熱改修

    変形地の中で和室3室にDKという旧耐震時代のオーソドックスな間取り。

  • 東佐賀 準防火地域内平屋耐震断熱改修

    複雑な切妻の屋根。雨漏れの原因になっていたところをGOOGLEMAPで確認した。

リノベーション後

  • 東佐賀 準防火地域内平屋耐震断熱改修

    駐車場がとれるように減築。
    敷地は再測量し、越境部分を明確にした。

  • 東佐賀 準防火地域内平屋耐震断熱改修

    3LDKの間取りに変更。
    構造には逆らわないように間取り変更。構造はなるべく利用する気持ちがコストダウンにつながる。

  • 東佐賀 準防火地域内平屋耐震断熱改修

    屋根下地が悪くなっているところを取り替え屋根形状し、外観はモダンに変更。

物件概要

所在地
佐賀県佐賀市東佐賀
敷地面積
248.81㎡(75.27坪)
延床面積
82.12㎡(24.84坪)
構造
木造在来軸組 平屋建て
既存建築年
1976年(築50年)
改修竣工年月
2023年10月
断熱性能
UA値 改修前1.87w/㎡・K⇒改修後0.41w/㎡・K(改修前の4.5倍に向上)
耐震性能
上部構造評点 改修前0.32 ⇒ 改修後1.54

企業紹介

企業名
ループスアーキテクト一級建築士事務所
Webサイト
https://loops-a.com/
コメント

経営理念

「人と暮らしの輪をつなぎ、幸せの和を紡ぎます。
私たちは、ご縁のある皆様の夢の実現に貢献する企業です。」

VISION

日本の設計技術で、世界中に笑顏を
世界は「縁」でできている

先 義 後 利

正しい人の道を先にして、利益の追求は後にするという意味で、LOOPS Architect.,incの企業の在り方となっております。

グレードとは

性能向上リノベでは、断熱と耐震のそれぞれの現行基準を3段階に分類し、基準を策定。性能向上リノベーションがされた証として、必要なエビデンス情報を登録し、安心・快適な家であるお墨付きの証として「性能向上登録証」を発行しています。これからの時代に選ばれる、安心・快適な家を可視化します。

断熱

ランク UA値 断熱等級
0.46 6
0.60 5
0.87 4
耐熱の説明

耐震

ランク 上部構造評点 耐震等級
1.5以上 3
1.25~1.5
未満
2
1.0~1.25
未満
1
耐震の説明
  • 建物は、自立循環型モデル住宅(在来工法)を対象に、地域区分は、6・7地域(都心部を中心)に策定しています。
  • UA値(外皮平均熱貫流率)とは住宅の内部から床、外壁、屋根(天井)や開口部などを通過して外部へ逃げる熱量を外皮全体で平均した値。値が小さいほど熱が逃げにくく、省エネルギー性能が高いことを示します。
  • 上部構造とは壁や柱など家の構造物のこと。上部構造評点とは、震度6強の地震で建物が倒壊しないために必要な力を数値で表した必要耐力(Qr)に対する現状の耐力の割合を表します。
  • 既存木造住宅の上部構造評点1.0、1.25、1.5は、品確法においての耐震等級1、2、3レベルに相当します。