2023年 エントリー作品

最多一般得票賞

性能向上リノベ-広川の家

持ち家リノベーション・リフォーム

断熱

2,900〜3,080万円

2023年11月

投票数

1552 1553

投票受付終了

リノベーション後 After

性能向上リノベ-広川の家

キッチン側よりリビングを見る

性能向上リノベ-広川の家

回遊動線・家事ラク動線

性能向上リノベ-広川の家

リビング

性能向上リノベ-広川の家

外観(南東面)

性能向上リノベ-広川の家

造作洗面

性能向上リノベ-広川の家

ご家族様

リノベーション前 Before

  • 性能向上リノベ-広川の家

    南東側

  • 性能向上リノベ-広川の家

    北東側

  • 性能向上リノベ-広川の家

    天井裏(無断熱)

  • 性能向上リノベ-広川の家

    天井裏(無断熱)

  • 性能向上リノベ-広川の家

    室内から南東面を見る

リノベーション施工中 Process

  • 性能向上リノベ-広川の家

    土間下断熱

  • 性能向上リノベ-広川の家

    床下コンクリート打設

  • 性能向上リノベ-広川の家

    躯体

  • 性能向上リノベ-広川の家

    グラスウール+調湿気密シート

  • 性能向上リノベ-広川の家

    ネオマフォームt50+透湿防水シート

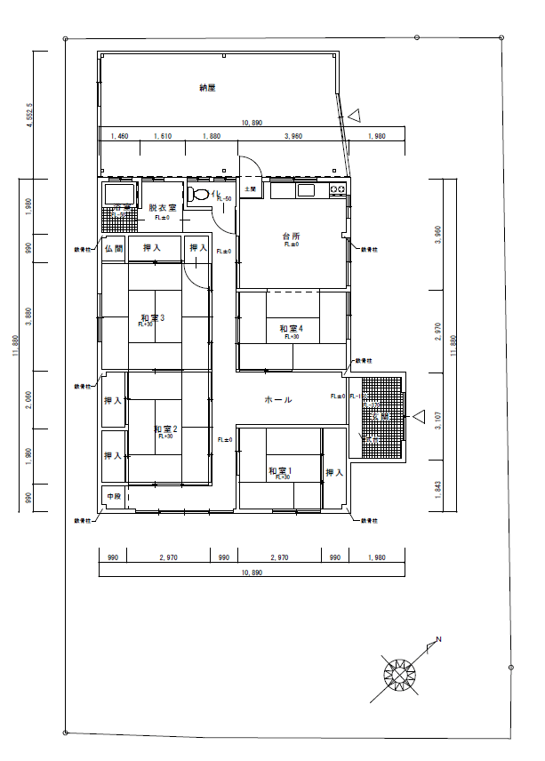
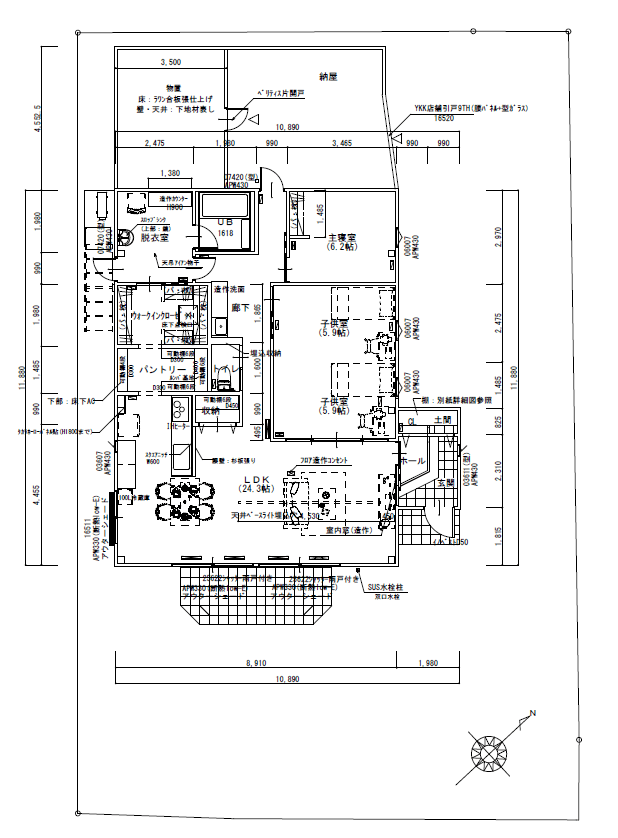
間取り Plan

リノベーション前

  • 性能向上リノベ-広川の家

    細かく間仕切られた間取りでした。

リノベーション後

  • 性能向上リノベ-広川の家

    家事動線を短く回遊できる動線としました。子供室は将来間仕切り予定です。

物件概要

所在地
和歌山県有田郡広川町
敷地面積
360㎡(108坪)
延床面積
110.97㎡(33.5坪)
構造
鉄骨造
既存建築年
1978年(築47年)
改修竣工年月
2023年11月
断熱性能
UA値 改修前1.8w/㎡・K⇒改修後0.39w/㎡・K(改修前の4.5倍に向上)

企業紹介

企業名
エイト建築設計事務所((株)永岡建設)
Webサイト
https://www.eight-sekkei.com/
コメント

「家を建てたい!」その気持ちは、
ご家族ごとに数えきれないほどの想いがあります。
その気持ちに寄り添い、お客様の想い描く生活を
カタチにしながら、一棟の家を創りあげていく。
さらにお客様のご家族が「毎日を楽しむ」ための家をつくること。それらはエイト建築設計事務所が何より大切にしていることです。

グレードとは

性能向上リノベでは、断熱と耐震のそれぞれの現行基準を3段階に分類し、基準を策定。性能向上リノベーションがされた証として、必要なエビデンス情報を登録し、安心・快適な家であるお墨付きの証として「性能向上登録証」を発行しています。これからの時代に選ばれる、安心・快適な家を可視化します。

断熱

ランク UA値 断熱等級
0.46 6
0.60 5
0.87 4
耐熱の説明

耐震

ランク 上部構造評点 耐震等級
1.5以上 3
1.25~1.5
未満
2
1.0~1.25
未満
1
耐震の説明
  • 建物は、自立循環型モデル住宅(在来工法)を対象に、地域区分は、6・7地域(都心部を中心)に策定しています。
  • UA値(外皮平均熱貫流率)とは住宅の内部から床、外壁、屋根(天井)や開口部などを通過して外部へ逃げる熱量を外皮全体で平均した値。値が小さいほど熱が逃げにくく、省エネルギー性能が高いことを示します。
  • 上部構造とは壁や柱など家の構造物のこと。上部構造評点とは、震度6強の地震で建物が倒壊しないために必要な力を数値で表した必要耐力(Qr)に対する現状の耐力の割合を表します。
  • 既存木造住宅の上部構造評点1.0、1.25、1.5は、品確法においての耐震等級1、2、3レベルに相当します。