2023年 エントリー作品

東灘の家

持ち家リノベーション・リフォーム

ゾーン断熱

1,500〜1,600万円

2023年12月

投票数

2 3

投票受付終了

リノベーション後 After

東灘の家

門扉やポストを新しくして明るい雰囲気になりました。

東灘の家

キッチンを遮っていた収納を撤去して、オープンなキッチンになりました。

東灘の家

リビングの壁際に造作のベンチ収納を設置、ベンチに座ってテレビを見れるように。

東灘の家

旧和室を洋室に変更し、リビングにつながるようにしました。窓の一部を壁にすることで、耐震にも考慮。

東灘の家

テレビボードの上部を間接照明にすることで、テレビコーナーを演出。

東灘の家

小屋裏には、熱伝導率0.040の吹き付けウレタンフォームを施工。屋根裏が快適空間になりました。

リノベーション前 Before

  • 東灘の家

    小屋裏は断熱がなく冬寒く、夏熱い原因となっていました。

  • 東灘の家

    外構も建築当時のままで、門扉やポストも老朽化していました。

  • 東灘の家

    1階の和室は、一部雨漏りがあり、ほとんど使っていない状態でした。

  • 東灘の家

    区切られたリビングは暗く、使いにくい空間でした。

  • 東灘の家

    キッチンの収納が、キッチンを分離するような配置になっていました。

  • 東灘の家

    リビング。キッチンと分断されていて暗い雰囲気。

リノベーション施工中 Process

  • 東灘の家

    外壁は残しつつ、内壁はすべて撤去。

  • 東灘の家

    壁の断熱は、熱伝導率0.026の吹き付けの硬質ウレタンフォーム厚み72㎜

  • 東灘の家

    1階の窓は、すべて入れ替えとし、高断熱のアルミルミ樹脂複合サッシ

  • 東灘の家

    床の断熱は、熱伝導率0.028のスタイロフォームⅡ厚み65㎜

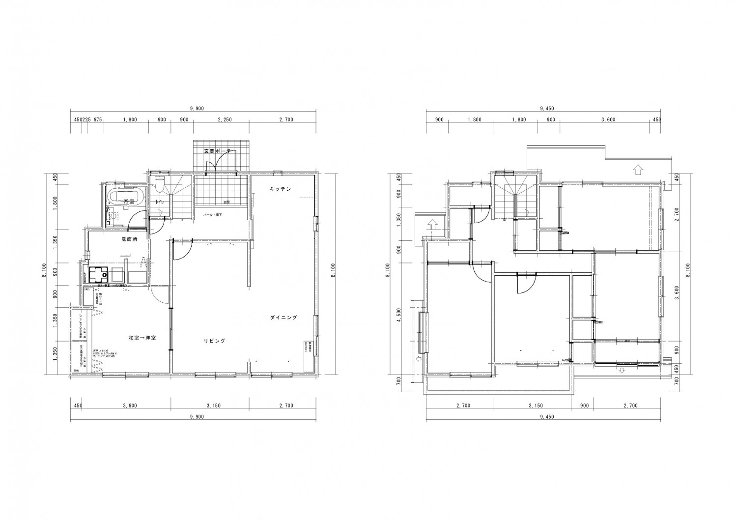
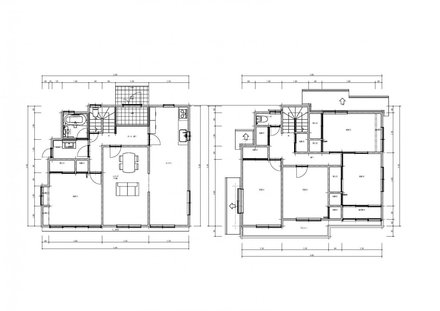
間取り Plan

リノベーション前

  • 東灘の家

    改修前

リノベーション後

  • 東灘の家

    改修後

物件概要

所在地
兵庫県神戸市東灘区
敷地面積
110㎡(32.2坪)
延床面積
142.66㎡(43.1坪)
構造
木造在来2階建て
既存建築年
36年(築1989年)
改修竣工年月
2023年12月
断熱性能
UA値 改修前1.23w/㎡・K⇒改修後0.68w/㎡・K(改修前の1.8倍に向上)

企業紹介

企業名
株式会社あんじゅホーム
Webサイト
https://www.sumai-jp.com/
コメント

神戸市灘区の工務店。高気密高断熱の新築で培ったノウハウをリノベーションに活かした家づくり。健康で長生きできる住まいづくりのお手伝いを行います。

グレードとは

性能向上リノベでは、断熱と耐震のそれぞれの現行基準を3段階に分類し、基準を策定。性能向上リノベーションがされた証として、必要なエビデンス情報を登録し、安心・快適な家であるお墨付きの証として「性能向上登録証」を発行しています。これからの時代に選ばれる、安心・快適な家を可視化します。

断熱

ランク UA値 断熱等級
0.46 6
0.60 5
0.87 4
耐熱の説明

耐震

ランク 上部構造評点 耐震等級
1.5以上 3
1.25~1.5
未満
2
1.0~1.25
未満
1
耐震の説明
  • 建物は、自立循環型モデル住宅(在来工法)を対象に、地域区分は、6・7地域(都心部を中心)に策定しています。
  • UA値(外皮平均熱貫流率)とは住宅の内部から床、外壁、屋根(天井)や開口部などを通過して外部へ逃げる熱量を外皮全体で平均した値。値が小さいほど熱が逃げにくく、省エネルギー性能が高いことを示します。
  • 上部構造とは壁や柱など家の構造物のこと。上部構造評点とは、震度6強の地震で建物が倒壊しないために必要な力を数値で表した必要耐力(Qr)に対する現状の耐力の割合を表します。
  • 既存木造住宅の上部構造評点1.0、1.25、1.5は、品確法においての耐震等級1、2、3レベルに相当します。