2023年 エントリー作品

特別賞

みなべ町の家 リノベーション

持ち家リノベーション・リフォーム

ゾーン断熱

3,500万円

2023年09月

投票数

326 327

投票受付終了

リノベーション後 After

みなべ町の家 リノベーション

玄関引戸と一部の窓を入れ替え、そこに絡む外壁を既存部分と違和感のないように仕上げた。

みなべ町の家 リノベーション

キッチンまわりは、生活感が極力でないようにキッチン前に腰壁を設けた。
子供さんの描いた絵や写真を飾れるように、腰壁にニッチを計画。
キッチン横には子供さんの為のスタディスペースを設置し、ランドセル等も置けるようにした。

みなべ町の家 リノベーション

ご要望により大きな壁掛テレビや上部にスクリーンを仕込み、ホームシアターとしても使えるLDKとした。
以前より居心地の良いDKとなり、家族団欒で過ごせるスペースとなった。

みなべ町の家 リノベーション

構造については、主要な柱や差し鴨井は残し、元の建物のバランスを崩さないようにしている。

みなべ町の家 リノベーション

2階の部屋は、和室から洋室とし旦那さんの趣味の部屋や、子供さんの部屋とした。

みなべ町の家 リノベーション

新しくできたランドリールーム。
すぐ横にはファミリークロークがあり、家事動線を考慮した間取りとなった。

リノベーション前 Before

  • みなべ町の家 リノベーション

    築34年、約90坪。大きな損傷もなくとても立派なお家でした。

  • みなべ町の家 リノベーション

    格天井の広い玄関。
    奥へと続く縁側がすてきでした。

  • みなべ町の家 リノベーション

    一度リフォームされたというリビング。
    見た目は広くて快適そうですが、キッチンとは廊下や部屋をはさんでいる事もあり、ここではほぼ過ごしていなかったという。

  • みなべ町の家 リノベーション

    北東にあるリビングダイニング。
    ここでほとんどの時間を過ごしていたが、日もあまり入らず、廊下も含め無断熱の床からの冷えがすごく伝わってきていました。

  • みなべ町の家 リノベーション

    低い位置に窓があったり、差し鴨井が入っていたりと計画を悩ませました。

リノベーション施工中 Process

  • みなべ町の家 リノベーション

    床や壁を解体したところ。
    筋交いも部分的に入っていたので、
    金物で補強をしました。

  • みなべ町の家 リノベーション

    床からの湿気を抑えるために防水シートを敷いて砂利敷とした。

  • みなべ町の家 リノベーション

    床には二種類の断熱材を施工し、床からの冷え対策とした。

  • みなべ町の家 リノベーション

    ゾーン分けをした1階和室の上の部屋の床にも断熱材を敷き詰めました。

  • みなべ町の家 リノベーション

    壁には隙間なく断熱材を施工。

  • みなべ町の家 リノベーション

    天井にも断熱材を敷き詰め、気密・防湿シート貼とした。

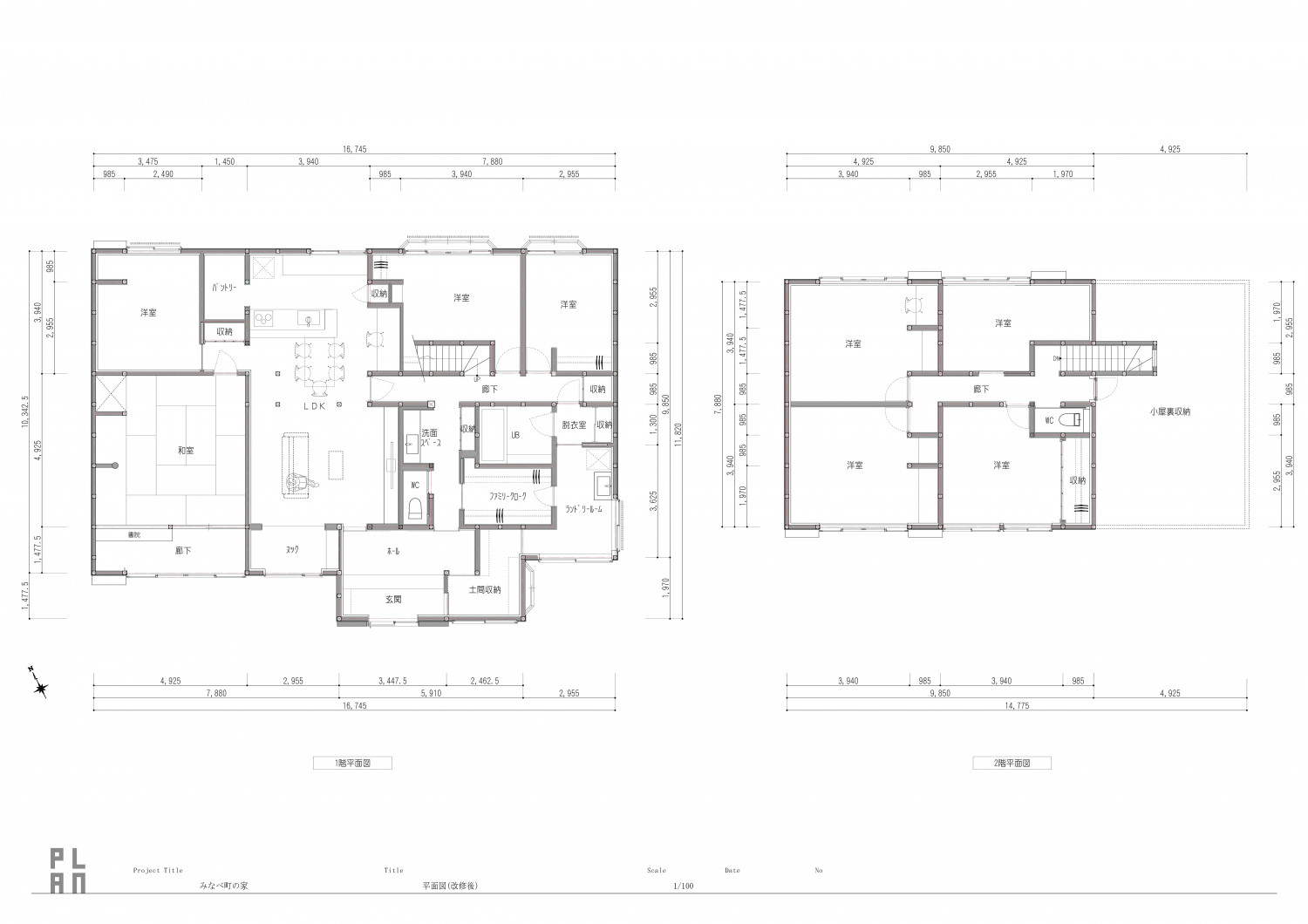
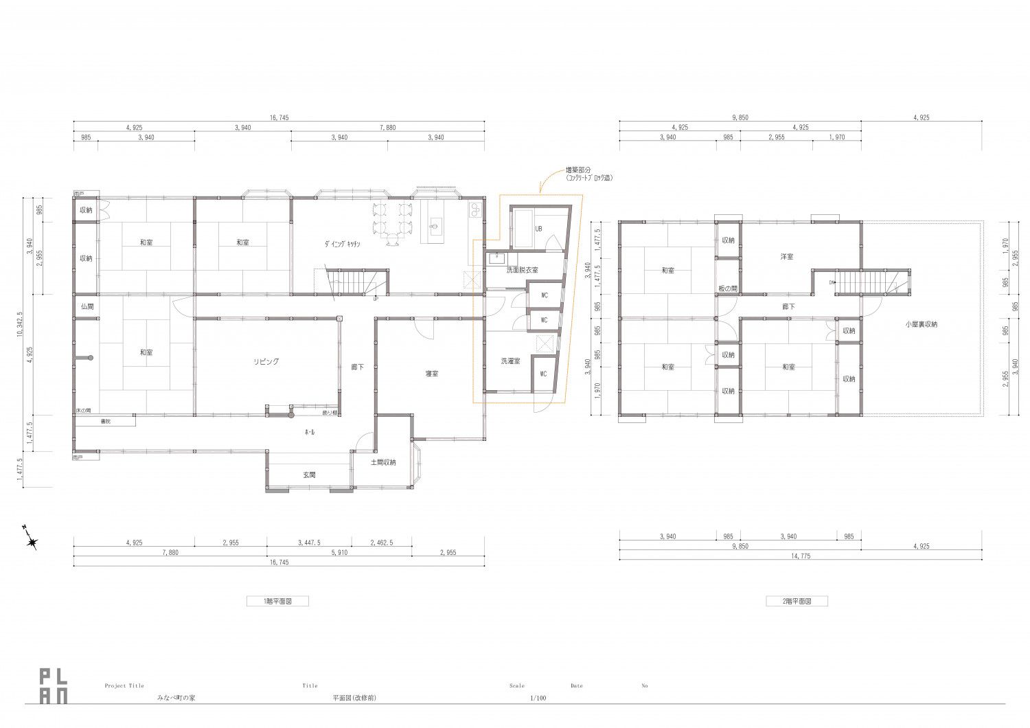
間取り Plan

リノベーション前

  • みなべ町の家 リノベーション

    建物自体は大きく広々としているがそのほとんどが使われていなかった。
    コンクリートブロック造の増築部分にまとめられた水周りがとても寒かったそう。

リノベーション後

  • みなべ町の家 リノベーション

    建物内に水周りを移設し、生活しやすい動線を確保した。
    過ごしやすく広々としたLDKを計画した。

物件概要

延床面積
228.48㎡(69.11坪)
構造
木造在来2階建て
既存建築年
34年(築1992年)
改修竣工年月
2023年09月
断熱性能
UA値 改修前3.26w/㎡・K⇒改修後0.59w/㎡・K(改修前の5.5倍に向上)

企業紹介

企業名
一級建築士事務所 PLAN
Webサイト
https://www.instagram.com/plan_20180201/

グレードとは

性能向上リノベでは、断熱と耐震のそれぞれの現行基準を3段階に分類し、基準を策定。性能向上リノベーションがされた証として、必要なエビデンス情報を登録し、安心・快適な家であるお墨付きの証として「性能向上登録証」を発行しています。これからの時代に選ばれる、安心・快適な家を可視化します。

断熱

ランク UA値 断熱等級
0.46 6
0.60 5
0.87 4
耐熱の説明

耐震

ランク 上部構造評点 耐震等級
1.5以上 3
1.25~1.5
未満
2
1.0~1.25
未満
1
耐震の説明
  • 建物は、自立循環型モデル住宅(在来工法)を対象に、地域区分は、6・7地域(都心部を中心)に策定しています。
  • UA値(外皮平均熱貫流率)とは住宅の内部から床、外壁、屋根(天井)や開口部などを通過して外部へ逃げる熱量を外皮全体で平均した値。値が小さいほど熱が逃げにくく、省エネルギー性能が高いことを示します。
  • 上部構造とは壁や柱など家の構造物のこと。上部構造評点とは、震度6強の地震で建物が倒壊しないために必要な力を数値で表した必要耐力(Qr)に対する現状の耐力の割合を表します。
  • 既存木造住宅の上部構造評点1.0、1.25、1.5は、品確法においての耐震等級1、2、3レベルに相当します。