2023年 エントリー作品

特別賞

築25年のエコハウス化リノベ

持ち家リノベーション・リフォーム

ゾーン断熱+耐震

2,200万円

2022年09月

投票数

35 36

投票受付終了

リノベーション後 After

築25年のエコハウス化リノベ

間仕切を出来るだけ作らず、開放感のあるLDK。温熱環境を均一化する効果も。

築25年のエコハウス化リノベ

室内の建具は最小限。エリアごと柔らかく区切られているため、拡がりのある空間に。

築25年のエコハウス化リノベ

リビングに隣接した畳コーナー。
畳表は大分県産の七島い畳。
南側サッシは冬季の日差しを最大限取り込む。

築25年のエコハウス化リノベ

駐車場へのアプローチと室内動線を考慮し北側に移設された玄関。欅の敷台は既存を再利用。断熱性能を考慮し、通常室内土間とされる部分も床下に断熱材を設置し、堅木の床仕様になっている。玄関戸は高性能木製ドア。

築25年のエコハウス化リノベ

二間続きの和室にあった欄間はWICと居室の壁へ取り付けられ換気の役割も担っている

築25年のエコハウス化リノベ

南側にあった玄関は北側へ移動された。
解体した1階外壁は無塗装サイディングにコテ塗りの塗装仕上げ。春には借景の桜並木が部屋から愉しめる。

リノベーション前 Before

  • 築25年のエコハウス化リノベ

    南面に玄関アプローチ。庭も広いが、リフォーム後はもっとプライベート感が確保できるように間取りも変更。

  • 築25年のエコハウス化リノベ

    北面に新たに玄関アプローチを計画。
    これによりリビングを広く確保でき、動線尾工場も狙う。

  • 築25年のエコハウス化リノベ

    既存リビング。痛みは少なく良好。収納が無い為壁際に家具が並びやすい。

  • 築25年のエコハウス化リノベ

    本家の家には多く残る、和室二間続き。
    細工の美しい欄間は再利用。

  • 築25年のエコハウス化リノベ

    格式の有る広いホールを持つ玄関だが、日当たりの良い南側を大きく占めている既存玄関。

リノベーション施工中 Process

  • 築25年のエコハウス化リノベ

    解体直後の様子。間取り変更に伴い、柱、補強梁を追加し構造を組み替える。簡単に補強や取替がしにくい基礎が健全であることが重要と考えている。

  • 築25年のエコハウス化リノベ

    外壁面材にて耐震補強を行う。
    1階部分のみ耐震等級2相当まで向上。

  • 築25年のエコハウス化リノベ

    外壁側の断熱は30㎜の付加断熱。
    壁内部には105㎜のグラスウール。
    この後通気胴縁18㎜を施工後無塗装サイディング張り。

  • 築25年のエコハウス化リノベ

    1階のみの断熱・気密施工を行うため、天井気密シートの処理が非常に難しく、性能に直結する部分となる。

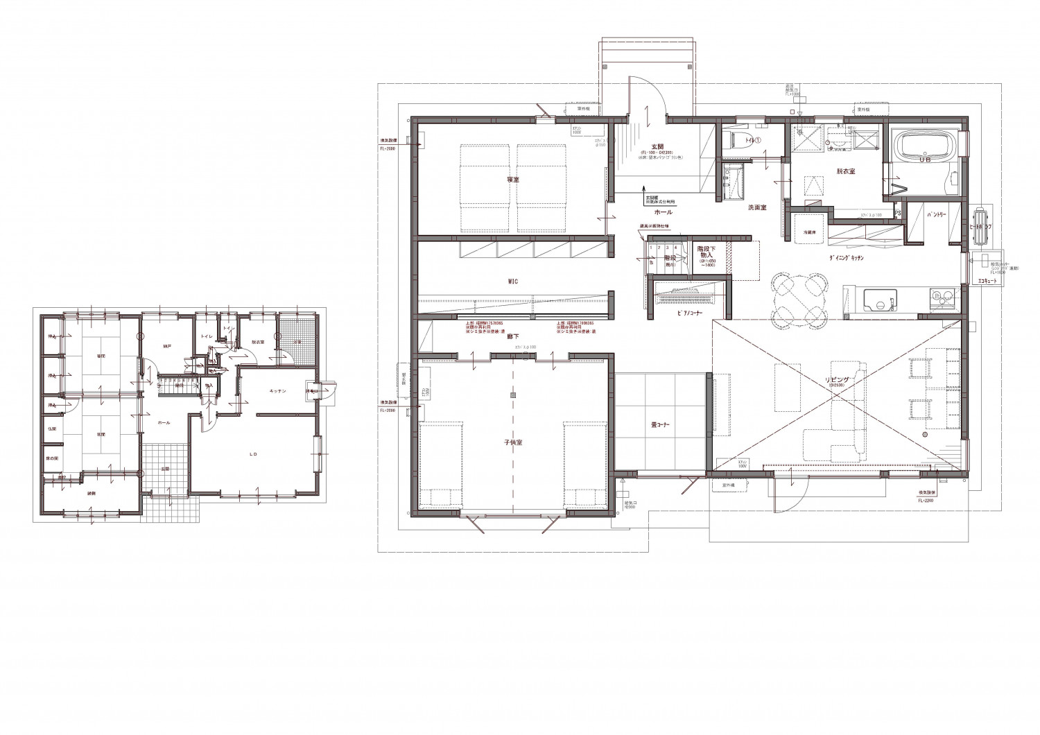
間取り Plan

リノベーション後

  • 築25年のエコハウス化リノベ

    2階を工事範囲外としたことで階段室は既存位置のまま。階段を囲み回遊できる動線となった。また、断熱・気密性能向上に伴い、エアパスファンと熱交換を利用し、簡易な全館空調も試みている。

物件概要

所在地
大分市
敷地面積
712.62㎡(215坪)
延床面積
119.57㎡(36.17坪)
構造
木造在来軸組構法2階建て
既存建築年
1998年(築28年)
改修竣工年月
2022年09月
断熱性能
UA値 改修後0.44w/㎡・K
耐震性能
上部構造評点 改修前0.82 ⇒ 改修後1.45

企業紹介

企業名
日本ハウジング株式会社
Webサイト
https://www.nihonhousing.co.jp/
コメント

日本ハウジングが考える5つのポリシーをふんだんに取り入れ、今すでにある建物をライフスタイルに合った間取り、性能に変える完全オーダーメイド住宅です。これまで古民家やお寺をはじめ、昭和以降に建てられた現代建築まで幅広く対応してきました。

この素材、デザインへのこだわりと取り組みが評価され、リフォーム部門が新設された2年前から豊の国木造建築賞を連続受賞しています。長い時間を経て作られた味わいと現代のデザインを融合させ、新築では出せない上質な暮らしを提供します。

グレードとは

性能向上リノベでは、断熱と耐震のそれぞれの現行基準を3段階に分類し、基準を策定。性能向上リノベーションがされた証として、必要なエビデンス情報を登録し、安心・快適な家であるお墨付きの証として「性能向上登録証」を発行しています。これからの時代に選ばれる、安心・快適な家を可視化します。

断熱

ランク UA値 断熱等級
0.46 6
0.60 5
0.87 4
耐熱の説明

耐震

ランク 上部構造評点 耐震等級
1.5以上 3
1.25~1.5
未満
2
1.0~1.25
未満
1
耐震の説明
  • 建物は、自立循環型モデル住宅(在来工法)を対象に、地域区分は、6・7地域(都心部を中心)に策定しています。
  • UA値(外皮平均熱貫流率)とは住宅の内部から床、外壁、屋根(天井)や開口部などを通過して外部へ逃げる熱量を外皮全体で平均した値。値が小さいほど熱が逃げにくく、省エネルギー性能が高いことを示します。
  • 上部構造とは壁や柱など家の構造物のこと。上部構造評点とは、震度6強の地震で建物が倒壊しないために必要な力を数値で表した必要耐力(Qr)に対する現状の耐力の割合を表します。
  • 既存木造住宅の上部構造評点1.0、1.25、1.5は、品確法においての耐震等級1、2、3レベルに相当します。