2023年 エントリー作品

性能向上リノベーションプロジェクト S様邸

中古物件購入+リノベーション

ゾーン断熱

1,000万円

2023年03月

投票数

202 203

投票受付終了

リノベーション後 After

性能向上リノベーションプロジェクト S様邸

天井高さ2500㎜となりました。奥にあるハイドア(2400㎜)より高さが確保でき、広い空間を実現。

性能向上リノベーションプロジェクト S様邸

洗面台はスッキリとオシャレなものをチョイス。ここに洗濯物をかけると翌朝渇いている機能性の高い空間になりました。

性能向上リノベーションプロジェクト S様邸

見せる筋交いがアクセントとなっております。玄関の前に断熱ドアを設けました。

性能向上リノベーションプロジェクト S様邸

タンクレストイレのチョイスもオシャレです。

性能向上リノベーションプロジェクト S様邸

玄関ドアを断熱仕様にするには費用がかさみます。限られた予算で収めるため、玄関の内に断熱ドアを設けました。

リノベーション前 Before

  • 性能向上リノベーションプロジェクト S様邸

    和室が続いており無駄なスペースが存在しています。

  • 性能向上リノベーションプロジェクト S様邸

    玄関に入ると大きな廊下が存在しています。

  • 性能向上リノベーションプロジェクト S様邸

    襖や障子の高さが1800㎜なので低く感じます。

  • 性能向上リノベーションプロジェクト S様邸

    LDKは少し手を加えてある感じです。しかし、壁の中は無断熱でした。

  • 性能向上リノベーションプロジェクト S様邸

    洗面所の中に通し柱があります。増築あるあるですね。

リノベーション施工中 Process

  • 性能向上リノベーションプロジェクト S様邸

    先ず広いLDKを創るため外壁は残し、室内を裸にしました。

  • 性能向上リノベーションプロジェクト S様邸

    断熱は発砲ウレタン(アクアフォーム)を採用。隙間ができない施工を目指しました。

  • 性能向上リノベーションプロジェクト S様邸

    気密シートの施工です。階段部分の断熱・気密に苦労しました。

  • 性能向上リノベーションプロジェクト S様邸

    床下も発砲ウレタン(アクアフォーム)を採用。

  • 性能向上リノベーションプロジェクト S様邸

    仕上げの床材は無垢材を採用。暖かく感じる体感が大きく変わります。

  • 性能向上リノベーションプロジェクト S様邸

    構造上どうしても抜けなかった筋交いは化粧をして見せる筋交いに変身します。

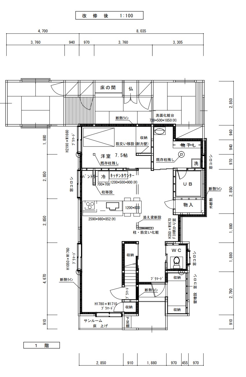
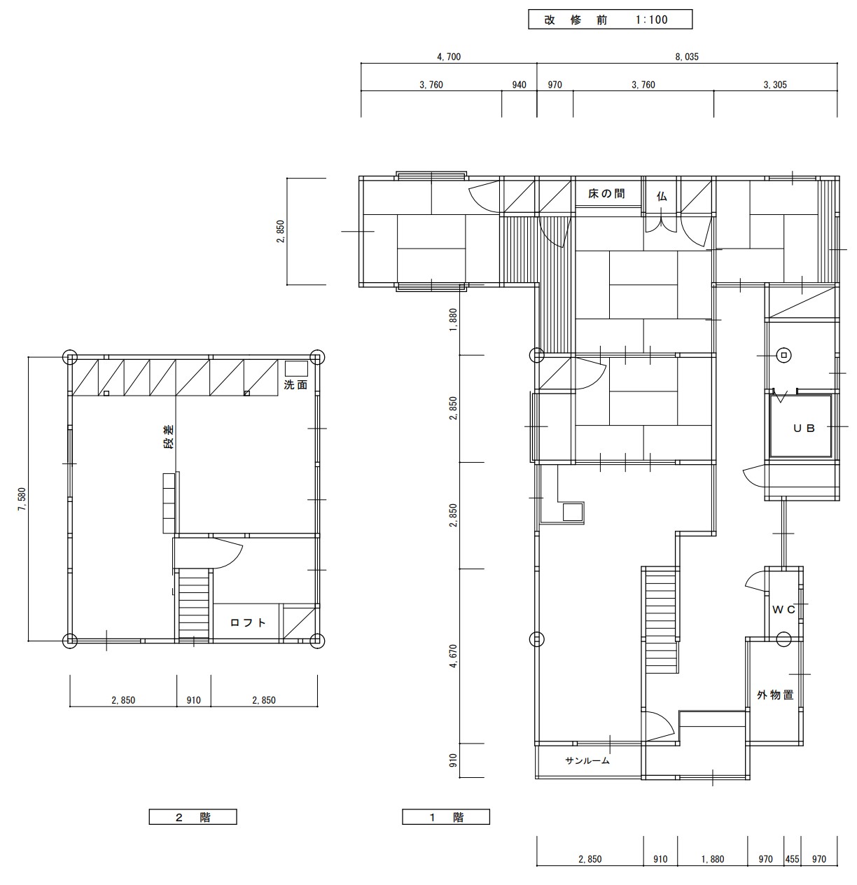
間取り Plan

リノベーション前

  • 性能向上リノベーションプロジェクト S様邸

    築41年、和室が続いている昔の間取りでした。壁には断熱材がなくとても寒い室内です。また家が大きく持て余す部屋も存在しています。

リノベーション後

  • 性能向上リノベーションプロジェクト S様邸

    生活スペースを検討し断熱ラインを決めました。生活空間だけを暖かくするゾーン断熱リノベーションとなります。ゾーン断熱リノベーションではコストコントロールができることも魅力の一つです。

物件概要

所在地
福井県福井市
敷地面積
275.84㎡(385.94坪)
延床面積
81.64㎡
構造
木造在来2階建て
既存建築年
41年(築1985年)
改修竣工年月
2023年03月
断熱性能
UA値 改修前3.47w/㎡・K⇒改修後0.51w/㎡・K(改修前の6.8倍に向上)

企業紹介

企業名
株式会社クロダハウス
Webサイト
https://www.kurodahouse-renovation.jp/
コメント

北欧には「親の代で家を建て、子の代でサマーハウス(別荘)を、さらに孫の代ではヨットを。」という言葉があります。
つまり家というものが短期間に消費されず、良質な資産となることで家族がますます豊かになれるということです。
これは北欧における住まいの考え方、暮らしの豊かさの原点というものをとても上手く表現していると思います。
北陸にも世代を超えて住み継ぐ文化を根付かせたい。それこそが私たちクロダハウスが考えるリノベーションの存在意義だと考えています。

グレードとは

性能向上リノベでは、断熱と耐震のそれぞれの現行基準を3段階に分類し、基準を策定。性能向上リノベーションがされた証として、必要なエビデンス情報を登録し、安心・快適な家であるお墨付きの証として「性能向上登録証」を発行しています。これからの時代に選ばれる、安心・快適な家を可視化します。

断熱

ランク UA値 断熱等級
0.46 6
0.60 5
0.87 4
耐熱の説明

耐震

ランク 上部構造評点 耐震等級
1.5以上 3
1.25~1.5
未満
2
1.0~1.25
未満
1
耐震の説明
  • 建物は、自立循環型モデル住宅(在来工法)を対象に、地域区分は、6・7地域(都心部を中心)に策定しています。
  • UA値(外皮平均熱貫流率)とは住宅の内部から床、外壁、屋根(天井)や開口部などを通過して外部へ逃げる熱量を外皮全体で平均した値。値が小さいほど熱が逃げにくく、省エネルギー性能が高いことを示します。
  • 上部構造とは壁や柱など家の構造物のこと。上部構造評点とは、震度6強の地震で建物が倒壊しないために必要な力を数値で表した必要耐力(Qr)に対する現状の耐力の割合を表します。
  • 既存木造住宅の上部構造評点1.0、1.25、1.5は、品確法においての耐震等級1、2、3レベルに相当します。