2023年 エントリー作品

特別賞

ホテルライクな快適リノベの家

持ち家リノベーション・リフォーム

耐震+断熱

2,000万円

2023年10月

投票数

51 52

投票受付終了

リノベーション後 After

ホテルライクな快適リノベの家

キッチン

ホテルライクな快適リノベの家

お風呂

ホテルライクな快適リノベの家

トイレ

ホテルライクな快適リノベの家

リビング

ホテルライクな快適リノベの家

ホール

ホテルライクな快適リノベの家

主寝室

リノベーション前 Before

  • ホテルライクな快適リノベの家

    外観

  • ホテルライクな快適リノベの家

    お風呂

  • ホテルライクな快適リノベの家

    キッチン

  • ホテルライクな快適リノベの家

    トイレ

  • ホテルライクな快適リノベの家

    リビング

  • ホテルライクな快適リノベの家

    主寝室

リノベーション施工中 Process

  • ホテルライクな快適リノベの家

    外断熱施工

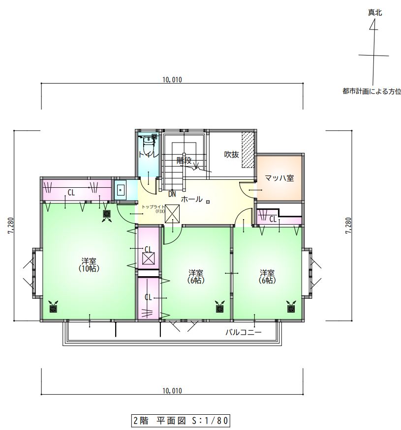
間取り Plan

リノベーション前

  • ホテルライクな快適リノベの家

    1階平面図

  • ホテルライクな快適リノベの家

    2階平面図

リノベーション後

  • ホテルライクな快適リノベの家

    1階平面図

  • ホテルライクな快適リノベの家

    2階平面図

物件概要

所在地
宮城県仙台市
敷地面積
218.92㎡(66.22坪)
延床面積
130.83㎡(39.57坪)
構造
木造在来
既存建築年
1993年(築33年)
改修竣工年月
2023年10月
断熱性能
UA値 改修前0.91w/㎡・K⇒改修後0.36w/㎡・K(改修前の2.5倍に向上)
耐震性能
上部構造評点 改修前1.0 ⇒ 改修後1.03

企業紹介

企業名
株式会社メープルホームズ仙台
Webサイト
https://www.maplesendai.co.jp/
コメント

メープルプラスがお届けするリノベーションは、
性能安心感をプラスしたリフォームの提案です。
■断熱性能、耐震性能リノベーション
①自社で気密測定を実施し明確な改修計画を提案します。
②自社で断熱性能測定・検証し安心した改修計画を提案します。
③自社でサーモグラフィーカメラによる構造体の確認、漏水などのチェックを実施でき非破壊でのご提案が可能です。
■デザインリノベーション
①様式デザインを手掛けてきた得意分野をいかしてデザインリフォームを提案します。
②カラーコーディネートを重視したお洒落なリノベーションを提案します。

グレードとは

性能向上リノベでは、断熱と耐震のそれぞれの現行基準を3段階に分類し、基準を策定。性能向上リノベーションがされた証として、必要なエビデンス情報を登録し、安心・快適な家であるお墨付きの証として「性能向上登録証」を発行しています。これからの時代に選ばれる、安心・快適な家を可視化します。

断熱

ランク UA値 断熱等級
0.46 6
0.60 5
0.87 4
耐熱の説明

耐震

ランク 上部構造評点 耐震等級
1.5以上 3
1.25~1.5
未満
2
1.0~1.25
未満
1
耐震の説明
  • 建物は、自立循環型モデル住宅(在来工法)を対象に、地域区分は、6・7地域(都心部を中心)に策定しています。
  • UA値(外皮平均熱貫流率)とは住宅の内部から床、外壁、屋根(天井)や開口部などを通過して外部へ逃げる熱量を外皮全体で平均した値。値が小さいほど熱が逃げにくく、省エネルギー性能が高いことを示します。
  • 上部構造とは壁や柱など家の構造物のこと。上部構造評点とは、震度6強の地震で建物が倒壊しないために必要な力を数値で表した必要耐力(Qr)に対する現状の耐力の割合を表します。
  • 既存木造住宅の上部構造評点1.0、1.25、1.5は、品確法においての耐震等級1、2、3レベルに相当します。