2023年 エントリー作品

選考委員賞

あるがままを活かした近未来の快適な住まい

持ち家リノベーション・リフォーム

耐震+断熱

1,000万円

2023年04月

投票数

20 21

投票受付終了

リノベーション後 After

あるがままを活かした近未来の快適な住まい

庭の栗、胡桃、榎、紅葉、梅などを枝打ちしてはチップにして敷き詰める犬走り。
地域材で作った簓子下見板の外壁は、セルフリノベならではの贅沢。
和室の窓はLow-Eペアガラスを内と外の二重に使い、さらに中空ポリカの障子と合わせて6層構造。
夏は南西の広葉樹が日差しを遮り、冬は落葉して日が差込む。

あるがままを活かした近未来の快適な住まい

妻と娘三人が揃っても楽々動き回れる機能的なキッチンは、LDから離したので気兼ねなくワイワイ、ガチャガチャ。
食材を美味しく見せるよう調色した多灯照明、電源コードが見えない調理家電、作業台はタカラの浴室ホーローパネルをリメイク。
クオーツストーンのワークトップは290cmとワイドながら、ワークトライアングルは490cmと最短にレイアウト。

あるがままを活かした近未来の快適な住まい

騒音源となるキッチンと一体化した流行りのLDKとは異なり、静寂に包まれた落ち着けるリビングダイニング。
夏は庭の緑、冬は冠雪した中央アルプスを望む空間に無駄なものは置かない。
窓の外は氷点下の寒さでも全館空調で心地よいが、長時間座っていると冷えを感じることがあるから足元限定で人感作動の床暖房。

あるがままを活かした近未来の快適な住まい

カラマツの壁、漆喰の壁で温かみがある洗面脱衣は、勝手口の続きで動線は最短。
木挽き製材の吊り棚は大容量の収納力。
全館空調で裸になっても温かく、広い三枚引き戸でバリアフリー。

あるがままを活かした近未来の快適な住まい

水回りは、セルフリノベだから許される妥協のない作り込みでボットン便所だった面影は皆無。
漆喰の壁・天井と、栗の腰壁、カウンターはハリギリと桑、窓枠はホウノキなど地域材を使った適度な木視率でリラックス。
人感の省エネ便器で使い勝手が大幅に向上しただけでなく、全館空調でお尻を出しても暖かい。

あるがままを活かした近未来の快適な住まい

空を眺める温泉旅館の大浴場をイメージした浴室は、滑らない床、脱衣場との温度差がなく安全。
鏡やリモコンなどを壁面に固定せず備品はマグネット式で出入り口脇に集約。
入浴中は換気の音がなく静寂に包まれ、独自設計でカビが生えない浴室内は掃除がとても楽です。

リノベーション前 Before

  • あるがままを活かした近未来の快適な住まい

    水道管は屋外露出で、冬期は凍結防止ヒーターの電気代が高額。
    トイレ、浴室、台所などの水回りの窓はアルミサッシと単板ガラスで、朝は蛇口が凍結してお湯をかけて融かしていました。

  • あるがままを活かした近未来の快適な住まい

    4間幅の欄間つき掃き出し窓で耐震性が無く、夏は15km先の中央アルプス山頂まで西日を遮るものがないため猛烈に暑く、冬は寒さが身にしみる家でした。

  • あるがままを活かした近未来の快適な住まい

    狭い、使い勝手が悪い、収納が無い洗面脱衣。
    冬の朝は蛇口が凍って、お湯で融かしてから冷たい水で顔を洗っていた。

  • あるがままを活かした近未来の快適な住まい

    寒い、汚い、ボットン便所。
    「掃除をしても綺麗にならないから嫌」と娘に言われたことをきっかけに、家の大改造が始まりました。

  • あるがままを活かした近未来の快適な住まい

    広すぎて使いにくく、寒さでヒートショック。
    滑りやすい床で危険。
    結露でカビが生える浴室。

  • あるがままを活かした近未来の快適な住まい

    自然通風の床下は換気状態が悪く、結露して木材が腐食したりカビが生えていた。

リノベーション施工中 Process

  • あるがままを活かした近未来の快適な住まい

    結露する出窓、壁の油染み、換気扇からは寒風が吹き込むキッチンを配管や配線などもすべて解体。
    内装は、ホーローのキッチンパネルと漆喰で仕上げる。

  • あるがままを活かした近未来の快適な住まい

    耐震設計に基づいてホールダウン・柱頭・柱脚・筋交い金物と制震ダンパーをDIY施工。
    無筋の布基礎を専門業者に依頼してカーボン補強。

  • あるがままを活かした近未来の快適な住まい

    全館空調を制御するSwitchBot、遠隔操作のセキュリティ、HEMSなど先進のIoT技術を投入するとともに、大災害でネット環境が遮断された時のために手動でも操作できるフェールセーフ設計。

  • あるがままを活かした近未来の快適な住まい

    基礎断熱は身の回りの不要資材を有効利用。
    籾殻を肥料袋に詰めて並べ、ウレタンフォーム75mmに相当する断熱性能。

  • あるがままを活かした近未来の快適な住まい

    基礎断熱で床下の自然通風を止めた代わりにダクト式機械換気。
    床下空間の大きな熱容量で薪ストーブの温度変動を吸収する。

  • あるがままを活かした近未来の快適な住まい

    家の耐震性低下を考慮して、庭の一画に木製架台の野立て太陽光発電をDIY。
    V2Hと組み合わせて昼夜を通じて自家消費電力を100%自給するだけでなく、地域社会にも電力を供給する。

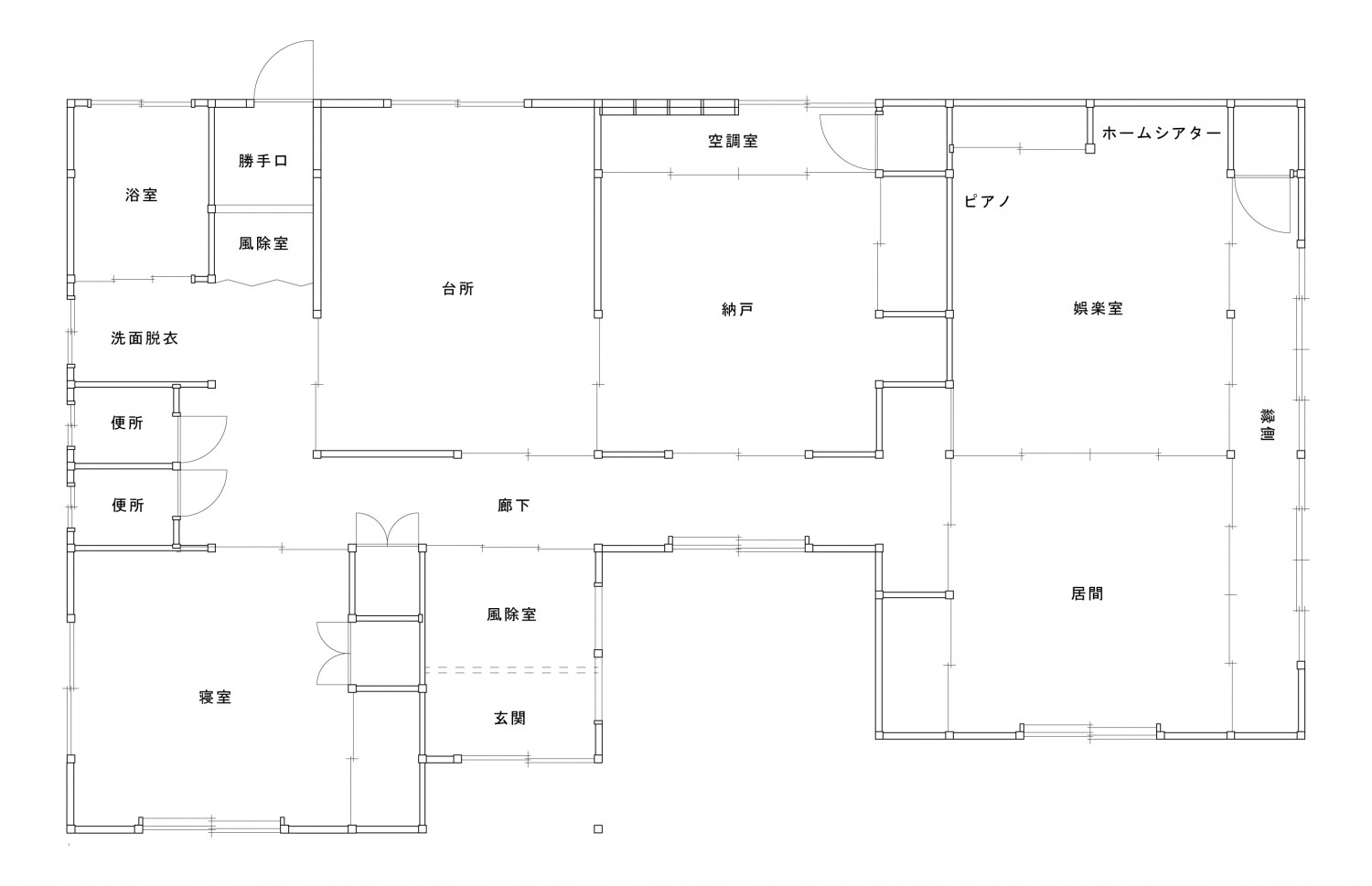
間取り Plan

リノベーション前

  • あるがままを活かした近未来の快適な住まい

    大きな窓と断熱材が無い壁、耐震性能が皆無な昭和の家。
    冬の朝はコップに入れた水が氷るほどの寒さ、北風が吹くとギシギシ揺れる不安。
    閉め切った部屋の個別暖房で入浴時にはヒートショック。

  • あるがままを活かした近未来の快適な住まい

    眼前の中央アルプスまで視界を遮るものがない恵まれたロケーションと豊かな自然環境を、どのようにリノベーションに活かすか。

リノベーション後

  • あるがままを活かした近未来の快適な住まい

    【間取り図】
    ゆりかごから寝たきりまでライフサイクルに応じた変化で安全持続性能を高め、何世代も住み続けられる適応性を念頭にプランニング。
    機能的で使い勝手が良い既存の間取りを活かし、部屋の用途と一部の間仕切りを変更。
    水回りの家事と寝室でくつろぐ妻の生活動線を北側ゾーンにまとめ、洗面脱衣を広く取り、廊下との仕切りを取り払った。

  • あるがままを活かした近未来の快適な住まい

    【居住部の給気、還気、排気】
    独自設計の全館空調は細かく仕切られた間取りでも隅々まで一年中快適。
    機器のメンテナンスは小型の脚立を使うのみで作業性が良く、保温ダクトは小屋裏に這わせただけなので簡単・安価に交換できる。
    小屋裏にはメンテナンス用の簡易なキャットウォークを設けて点検や交換作業が楽。

  • あるがままを活かした近未来の快適な住まい

    【床下換気設備】
    床下全体を満遍なく機械換気するダクティング。
    居室の空気を床下に送り込むことで床面は室温と同じ、水回りの構造材も空調環境下にあり家が長持ち。
    薪ストーブを熱源とする暖房時には床下に温風を給気して、床暖房として機能する。
    各居室に床下への入り口を設けてメンテナンスが容易。

  • あるがままを活かした近未来の快適な住まい

    独自アルゴリズムの全館空調はエアコン一台と換気扇四台で温度・湿度を快適に制御。
    地熱利用の外気熱交換、南面縁側の暖気でパッシブ空調。
    市販のSwitchBotを使った自動制御により薪ストーブを燃やしても室温は一定。

    ・全館空調の年間電力消費量は2200kWh(17kWh/㎡)
    ※断熱改修途中における二年間の実測平均値。
    断熱完了後の試算値は15kWh/㎡

物件概要

所在地
長野県南部
敷地面積
638.73㎡(193坪)
延床面積
127.52㎡(39坪)
構造
木造在来工法
既存建築年
1979年(築47年)
改修竣工年月
2023年04月
断熱性能
UA値 改修前3.66w/㎡・K⇒改修後0.27w/㎡・K(改修前の13倍に向上)
耐震性能
上部構造評点 改修前0.30 ⇒ 改修後1.72
事業主
工房楽木
設計

牧野郁生(建築設備士:前職 三機工業 建築設備事業本部 設計主任)

施工

施主本人

企業紹介

企業名
工房楽木
コメント

新築時を頂点に少しずつ劣化して、やがて価値がないものとして扱われる日本の住宅事情を変えるには施主の意識変革が必要。
できることは自分でやり、出来ないことはプロに任せて、日ごろから少しずつでも住まいの機能を向上させれば、古くなっても自宅の資産価値が上がり、スクラップ&ビルドによる新築信仰が抑制されるようになります。
本プロジェクトが、既存住宅がもつ無限の可能性を活かして性能向上セルフリノベーションしようと行動する機運を高める一助になれば幸いです。

グレードとは

性能向上リノベでは、断熱と耐震のそれぞれの現行基準を3段階に分類し、基準を策定。性能向上リノベーションがされた証として、必要なエビデンス情報を登録し、安心・快適な家であるお墨付きの証として「性能向上登録証」を発行しています。これからの時代に選ばれる、安心・快適な家を可視化します。

断熱

ランク UA値 断熱等級
0.46 6
0.60 5
0.87 4
耐熱の説明

耐震

ランク 上部構造評点 耐震等級
1.5以上 3
1.25~1.5
未満
2
1.0~1.25
未満
1
耐震の説明
  • 建物は、自立循環型モデル住宅(在来工法)を対象に、地域区分は、6・7地域(都心部を中心)に策定しています。
  • UA値(外皮平均熱貫流率)とは住宅の内部から床、外壁、屋根(天井)や開口部などを通過して外部へ逃げる熱量を外皮全体で平均した値。値が小さいほど熱が逃げにくく、省エネルギー性能が高いことを示します。
  • 上部構造とは壁や柱など家の構造物のこと。上部構造評点とは、震度6強の地震で建物が倒壊しないために必要な力を数値で表した必要耐力(Qr)に対する現状の耐力の割合を表します。
  • 既存木造住宅の上部構造評点1.0、1.25、1.5は、品確法においての耐震等級1、2、3レベルに相当します。