2023年 エントリー作品

優秀賞

緑道を望む住まい

中古物件購入+リノベーション

耐震+断熱

2,500〜3,000万円

2023年04月

投票数

176 177

投票受付終了

リノベーション後 After

緑道を望む住まい

5月。北西の緑道側からの景色。
住学(県内の同業他社様)のメンバーが撮影してくれた。

緑道を望む住まい

南西及び北西側面。2階南西側のベランダ開口部をモノアイ(ひとつ目)形状として外観の軸に据えた。町の景観として、周辺環境にフィットする様な優しい佇まいを目指した。空は鉛色でリアルな新潟の秋冬の景色。

緑道を望む住まい

11月上旬AM。キッチンから緑道方向を望む。
床は日光赤杉。水平天井は桧小幅板風羽目板(内部は空調のダクティング空間)

緑道を望む住まい

ダイニングテーブルからの景色。敷地内のモミジが、緑から赤、赤から黄色へ変わっていく。テーブルはケヤキの柾目材で製作。

緑道を望む住まい

3月。緑道のケヤキが芽吹く頃。

緑道を望む住まい

玄関ホール。南東からの陽が照らす。左奥は書斎。
玄関天井は、二階へ暖気を上げるための横格子となっている。

リノベーション前 Before

  • 緑道を望む住まい

    南西側および緑道のある北西側面

  • 緑道を望む住まい

    南東側。軒高が低くシルエットが整っていた。

  • 緑道を望む住まい

    2階南西側からは遠近感のある景色が望めた。近景は敷地内のモミジ。

  • 緑道を望む住まい

    1階南東側の廊下。

  • 緑道を望む住まい

    小屋裏には目立った雨染みは無し。きれいな丸太梁が架かっていた。

  • 緑道を望む住まい

    現地調査は8月。屋根面は60.4℃、2階天井は48.5℃。眩暈がする様な室内環境。

リノベーション施工中 Process

  • 緑道を望む住まい

    北西側の土台上げ、防湿シートを敷設、あと施工アンカーによる一体化、増し基礎用アンカーを設置してコンクリート基礎を打設。

  • 緑道を望む住まい

    調査段階で北西側が雨風が強く、サッシまわりから雨水が侵入していた形跡もあった。外壁杉板の伸び縮みやシーリングの劣化に配慮して 鋼板役物を施工。万が一外壁から雨水が侵入しても、通気層で排出される様に検討した。

  • 緑道を望む住まい

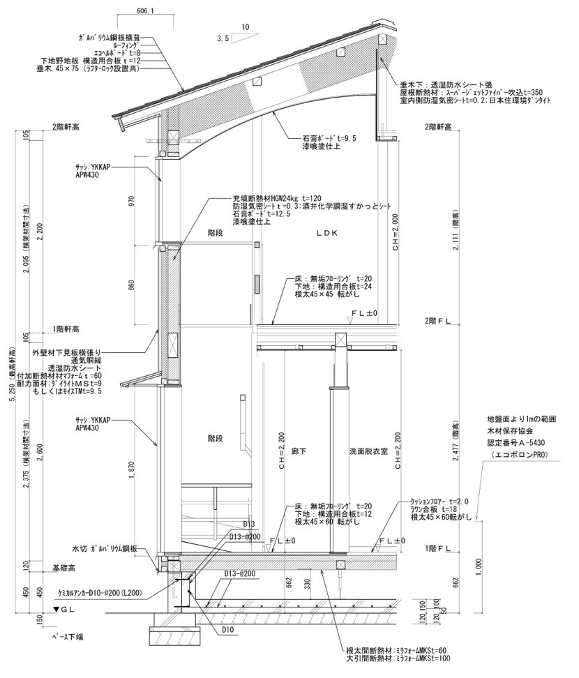
    屋根面は、屋根構面、断熱材厚さ、室内天井高さを考慮して桁を上げて葺き替え。垂木にはラフターロックを設置。

  • 緑道を望む住まい

    玄関ポーチにはフレームⅡを配置。偏心率を向上させた。

  • 緑道を望む住まい

    床断熱は床下湿度と熱橋に配慮し、XPSを大引間t100 根太間t60二層充填。気密テープ処理は大引間と下地合板面で行った。

  • 緑道を望む住まい

    屋根断熱はセルロースファイバーt350、壁断熱はHGWt120及びネオマフォームt60付加。壁面には可変透湿気密シートを使用し夏型結露に配慮。

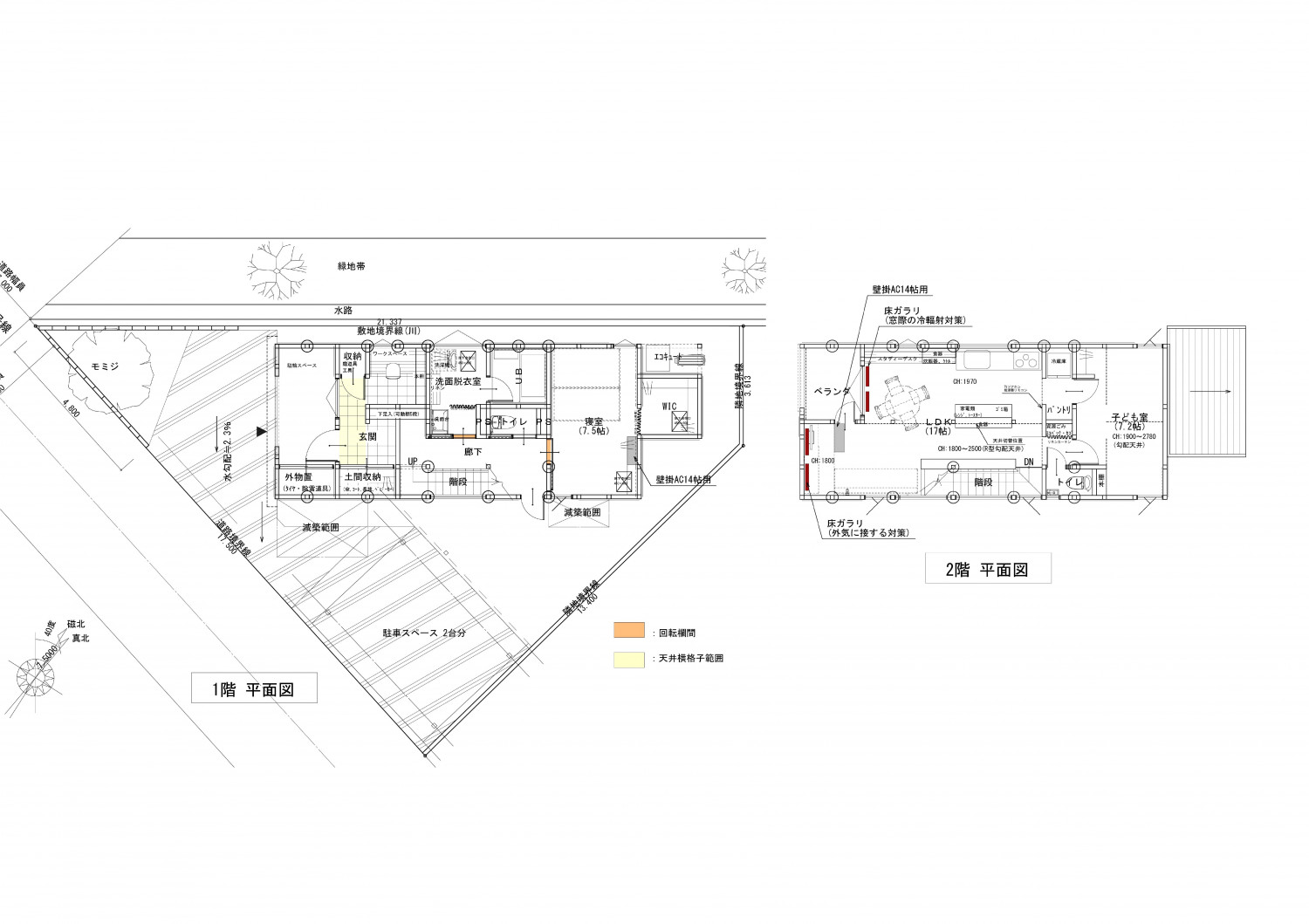
間取り Plan

リノベーション前

  • 緑道を望む住まい

    北西側には市が管理する緑道にも面しており恵まれた周辺環境。3方向に開けた角地で、方位は西へ40度振れているがパッシブ設計ができるポテンシャルがあった。

リノベーション後

  • 緑道を望む住まい

    耐震性、眺望性を考慮し2階リビングプランとした。南東側と南西側のサッシを日射取得型としてパッシブ設計にしている。24H熱交換換気本体は脱衣室天井に設置。(ローヤル電機SE200RS)PSを適所に設けダクティングしている。

  • 緑道を望む住まい

    ■構造面
    2階床は根太45角、転び止め、構造用合板t24 、鋼製火打。
    ■断熱面
    基礎増し打ちに伴い床断熱を選択。長期点検の為、床下点検口を3箇所設置。

  • 緑道を望む住まい

    耐震補強は、まず基礎補強を行い基礎の評点を上げるとともに部分的な不動沈下にベタ基礎の面で抵抗する計画に。
    ・上部構造の補強内容は、既存構造材の梁成補強及び柱位置の修正、追加。現行基準金物による接合部補強、面材による鉛直力補強(内外共)、水平構面の補強、ホウ酸系の防腐防蟻処理 を行っている。

物件概要

所在地
新潟県長岡市
敷地面積
155.68㎡(47.09坪)
延床面積
91.91㎡(27.79坪)
構造
木造在来2階建て
既存建築年
1964年(築61年)
改修竣工年月
2023年04月
断熱性能
UA値 改修前3.09w/㎡・K⇒改修後0.26w/㎡・K(改修前の11.8倍に向上)
耐震性能
上部構造評点 改修前0.35 ⇒ 改修後1.57
設計

目黒 剛志

企業紹介

企業名
株式会社大庄
Webサイト
https://www.sumitsuguie.com/
コメント

衣食住という言葉があるように、住宅はまさに生活の基盤です。
つくる家によって利便性・快適性はもとより、住む人の健康、災害時の安全性、維持管理の労力・費用、地球環境への負荷などが大きく変わります。また、家の間取りやデザインは住 む人の感性、ライフスタイルを表現できます。
どのような家を作るかは、どのような生活を送るかに直結します。住宅という商品を売るのではなく、どのような生活を送りたいのか、希望のライフスタイルを提案し、叶えることが 私たちの使命であると感じています。
そして『性能向上リノベーション』は、いまある住宅=資源を有効活用し、また性能やデザインも一切妥協しない、「全て」を求める人のための未来型の家づくりです。
わたしたちは人生を豊かにする家づくりをサポートします。

グレードとは

性能向上リノベでは、断熱と耐震のそれぞれの現行基準を3段階に分類し、基準を策定。性能向上リノベーションがされた証として、必要なエビデンス情報を登録し、安心・快適な家であるお墨付きの証として「性能向上登録証」を発行しています。これからの時代に選ばれる、安心・快適な家を可視化します。

断熱

ランク UA値 断熱等級
0.46 6
0.60 5
0.87 4
耐熱の説明

耐震

ランク 上部構造評点 耐震等級
1.5以上 3
1.25~1.5
未満
2
1.0~1.25
未満
1
耐震の説明
  • 建物は、自立循環型モデル住宅(在来工法)を対象に、地域区分は、6・7地域(都心部を中心)に策定しています。
  • UA値(外皮平均熱貫流率)とは住宅の内部から床、外壁、屋根(天井)や開口部などを通過して外部へ逃げる熱量を外皮全体で平均した値。値が小さいほど熱が逃げにくく、省エネルギー性能が高いことを示します。
  • 上部構造とは壁や柱など家の構造物のこと。上部構造評点とは、震度6強の地震で建物が倒壊しないために必要な力を数値で表した必要耐力(Qr)に対する現状の耐力の割合を表します。
  • 既存木造住宅の上部構造評点1.0、1.25、1.5は、品確法においての耐震等級1、2、3レベルに相当します。