2023年 エントリー作品

特別賞

K様邸フルリノベ工事

持ち家リノベーション・リフォーム

断熱

1,827万円

2021年07月

投票数

23 24

投票受付終了

リノベーション後 After

K様邸フルリノベ工事

耐震補強と断熱気密性能も備えたスケルトンリフォームをお届けできました。

K様邸フルリノベ工事

横一列に全て収まるキッチンで素敵なお料理を。

リノベーション前 Before

  • K様邸フルリノベ工事

    リノベーション施工前全景です、モルタル壁セメント瓦です。

  • K様邸フルリノベ工事

    古いキッチンです。

リノベーション施工中 Process

  • K様邸フルリノベ工事

    1階スケルトン解体後の状態です。

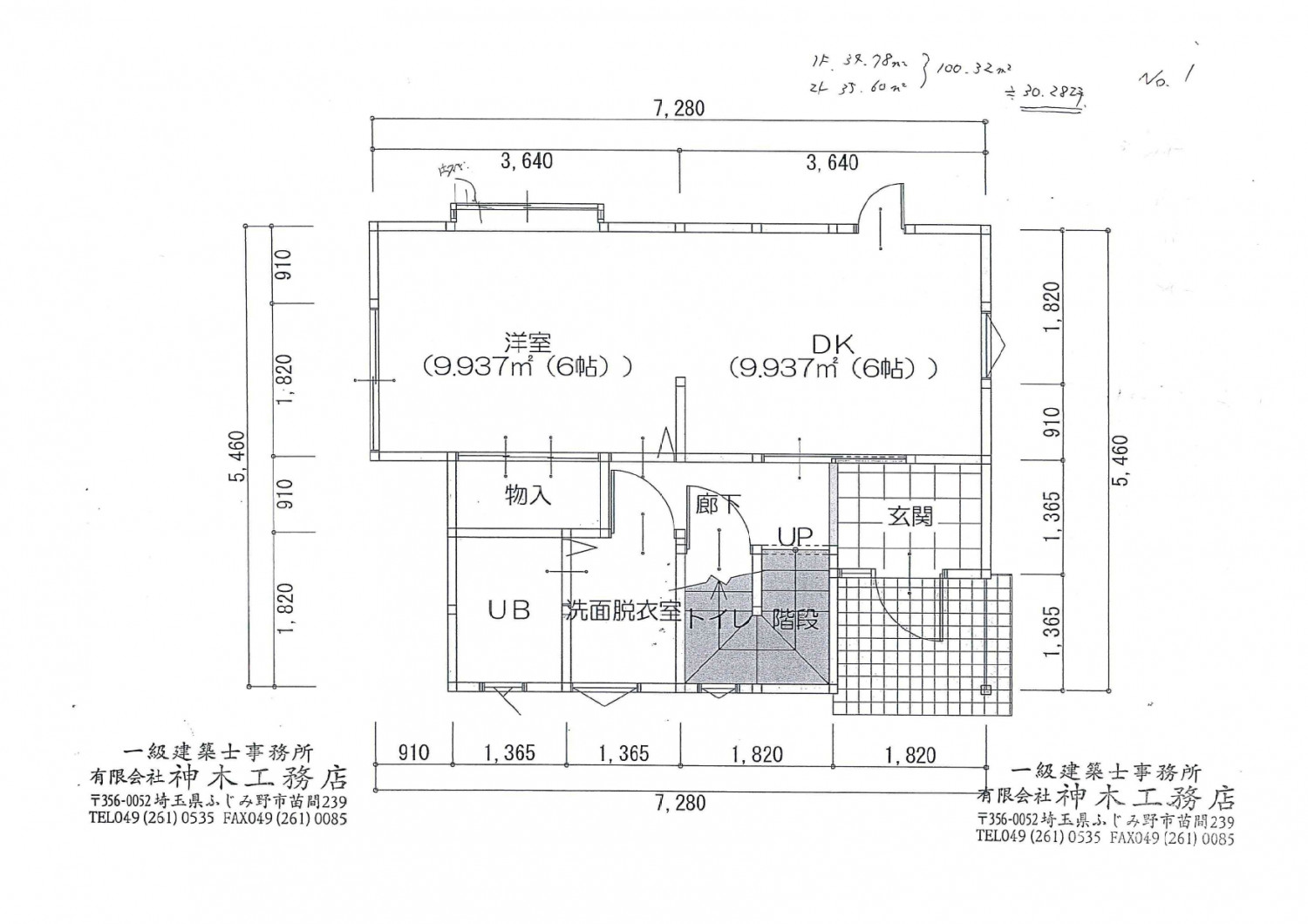
間取り Plan

リノベーション前

  • K様邸フルリノベ工事

    旧平面図

リノベーション後

  • K様邸フルリノベ工事

    1・2階ともに旧間取りに似せています。

  • K様邸フルリノベ工事

    1・2階ともに旧間取りに似せています。

物件概要

所在地
埼玉県ふじみ野市
敷地面積
170㎡(51坪)
延床面積
100㎡(30坪)
構造
木造在来2階建
既存建築年
1990年(築36年)
改修竣工年月
2021年07月
断熱性能
UA値 改修後0.48w/㎡・K

企業紹介

企業名
一級建築士(有)神木工務店
Webサイト
https://www.kamikikoumuten.com/
コメント

想いのこもった住まいで家族が幸せに暮らすために、冬は暖かく、夏は涼しく、生きている限り一生払い続ける光熱費を抑えられるそんな性能改善に居心地の良さをプラスして、エイジング・イン・プレイス(自宅にてできるだけ長く自立して安心、安全、快適に暮らす事)を実践提供して参ります。

グレードとは

性能向上リノベでは、断熱と耐震のそれぞれの現行基準を3段階に分類し、基準を策定。性能向上リノベーションがされた証として、必要なエビデンス情報を登録し、安心・快適な家であるお墨付きの証として「性能向上登録証」を発行しています。これからの時代に選ばれる、安心・快適な家を可視化します。

断熱

ランク UA値 断熱等級
0.46 6
0.60 5
0.87 4
耐熱の説明

耐震

ランク 上部構造評点 耐震等級
1.5以上 3
1.25~1.5
未満
2
1.0~1.25
未満
1
耐震の説明
  • 建物は、自立循環型モデル住宅(在来工法)を対象に、地域区分は、6・7地域(都心部を中心)に策定しています。
  • UA値(外皮平均熱貫流率)とは住宅の内部から床、外壁、屋根(天井)や開口部などを通過して外部へ逃げる熱量を外皮全体で平均した値。値が小さいほど熱が逃げにくく、省エネルギー性能が高いことを示します。
  • 上部構造とは壁や柱など家の構造物のこと。上部構造評点とは、震度6強の地震で建物が倒壊しないために必要な力を数値で表した必要耐力(Qr)に対する現状の耐力の割合を表します。
  • 既存木造住宅の上部構造評点1.0、1.25、1.5は、品確法においての耐震等級1、2、3レベルに相当します。