2023年 エントリー作品

特別賞

⤴spec⤴asset ミッケタ!

持ち家リノベーション・リフォーム

耐震+断熱

1,500〜2,000万円

2022年08月

投票数

411 412

投票受付終了

リノベーション後 After

⤴spec⤴asset  ミッケタ!

耐久性と性能向上に繋がる部位を探り改善した外観。春には窓から桜の花々が愛でることができます。外観色は公園から桜の花を観た時に、桜や木々により添える外装色としました。

⤴spec⤴asset  ミッケタ!

温熱環境上、弱点だった大きな吹抜けに包まれた階段室と玄関は外部サッシの交換と断熱・気密強化で快適空間にリノベーションされ、弱点だった他の部屋への冷気流入を改善。

⤴spec⤴asset  ミッケタ!

住宅性能の向上で新たな機能性が得られ、ピアノ室として再生しています。子ども達の部屋でしたが、可変性の可能性を見つけ出しプランを再編。将来的にはセカンドリビングとして使用できます。

⤴spec⤴asset  ミッケタ!

北側の配置なので居心地が悪くなってしまいがちな水まわり空間。明るく湿度の低い快適空間へと改善することで、住み手の使い方も「短時間滞在」から「ゆったり滞在」となり、「温度差」から解放された使い方となりました。

⤴spec⤴asset  ミッケタ!

心地よい朝陽が入り込む部屋だったので、1階東南に寝室を再編。
2面採光の開口を更に生かすべくオープンな収納にすることで空気の流れも改善。水廻りの近接し就寝起床後も準備がスムーズに♪

⤴spec⤴asset  ミッケタ!

オープン化したことで二人のコミュニケーションがよりスムーズとなりました。通風、会話が心地よく流れ、窓からは光と景色が入り込む既存住宅の潜在能力を最大限に引き出すことが出来ました。

リノベーション前 Before

  • ⤴spec⤴asset  ミッケタ!

    道路面の一部壁や窓枠、雨どい破風等の色使いがアクセントとなっていた既存外観。気密・断熱性能の面から出窓を無くした上で、外観デザインを整えます。

  • ⤴spec⤴asset  ミッケタ!

    北側には玄関と階段室を取込んだ大きな吹抜けがあり、複数の窓が設置されています。開放感に溢れる一方、最大の冷気流入口となり各居室に流れ込んでいました。

  • ⤴spec⤴asset  ミッケタ!

    1階の東南側にピアノ室があり、使用頻度としては主に午後からが主であったため、太陽光の恩恵を活かせずにもどかしさを感じていました。

  • ⤴spec⤴asset  ミッケタ!

    北側の窓からは一定の光は入るものの、窓と外壁からの冷気流入で入浴や家事の際の健康リスクの恐れもある状態。さらに廊下を伝い吹抜けからの冷気も入ってきていました。

  • ⤴spec⤴asset  ミッケタ!

    2階東南、太陽光が沢山入る窓の配列と直線的なリビングダイニング。収納家具のレイアウト上、キッチンとの繋がりに少し隔たりを感じていたようです。

  • ⤴spec⤴asset  ミッケタ!

    2階リビング北側の寝室は襖1枚分の間口で繋がっていましたが、空調使用時は性能上、常に閉じての使用だったので閉鎖的に感じていました。

リノベーション施工中 Process

  • ⤴spec⤴asset  ミッケタ!

    【住宅性能の見える化】
    既存住宅性能を「見える化」することが性能向上の近道であることをお伝えし、既存性能を診断してから性能向上計画をプランニングしています。

  • ⤴spec⤴asset  ミッケタ!

    【我々の誓い】
    実測値や計算値を基に、断熱性能の「見える化」を行っています。温熱環境や光熱費のBefore⇒Afterの変化を視覚的に画像でご提示。
    曖昧な性能向上にはしない「誓い」でもあります。

  • ⤴spec⤴asset  ミッケタ!

    【第三種換気から第一種換気へ】
    臭いでお困りだった原因を解決。同時吸排型の24時間集中換気システムを新設し、70%以上の熱交換でエアコンの消費電力を抑え、常に調湿された住環境をつくり出します。性能向上と快適生活の必須アイテムです。

  • ⤴spec⤴asset  ミッケタ!

    【小屋裏収納の閉鎖】
    2Fリビングダイニングは、窓から太陽光の恩恵を受けて極力損失は抑えていましたが、天井が大きな熱損失部位となっていました。隣接する2階小屋裏収納は使い勝手の面からも閉鎖し、天井断熱を強化することで大きく断熱性能を高めました。

  • ⤴spec⤴asset  ミッケタ!

    【住みながらの工事】
    今回の工事の驚くべきポイントは、外壁側からの吹付工法を採用したことで「住みながら」施工できたことです。お施主様にとっては、全ての施工の「見える化」ということになります。

  • ⤴spec⤴asset  ミッケタ!

    【徹底&見逃さない】
    外壁側からの断熱改修だったため、外周部の耐震補強が容易でした。既存状況は通気不足と結露から資産価値が著しく低下していました。耐震性能を向上させ、外壁と小屋裏の通気を確保しました。

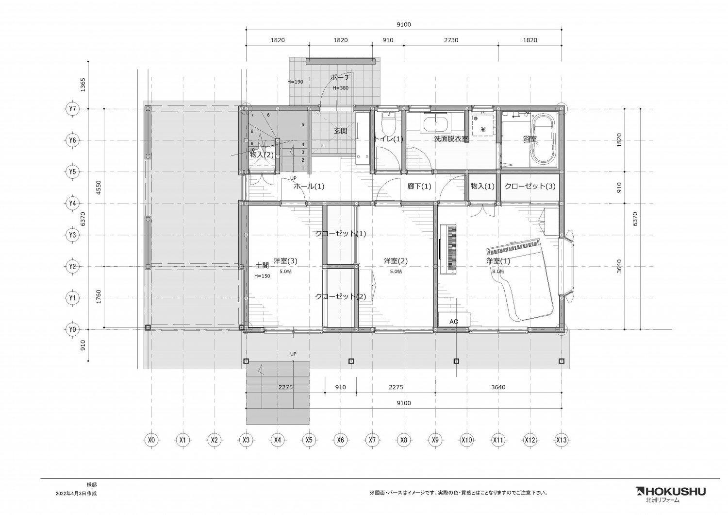
間取り Plan

リノベーション前

  • ⤴spec⤴asset  ミッケタ!

    西側ガレージは過去に増築したゾーンです。1F居室は子供室だった部屋をご主人の趣味室として使用していました。

  • ⤴spec⤴asset  ミッケタ!

    過去に増築したガレージ上部は客間の和室。階段室と吹抜けは1F玄関と繋がっています。北東の和室が寝室。
    どの部屋も十分な窓が配置されていて、通風、換気、採光が十分な状況ではありますが…。

リノベーション後

  • ⤴spec⤴asset  ミッケタ!

    子供室を一部屋にし、窓性能を強化することでピアノ室として再出発。将来はセカンドリビングに可変できるように工夫。寝室は環境の良い1階東南に移動。性能向上した水廻りは長居も可能な居心地。

  • ⤴spec⤴asset  ミッケタ!

    性能向上された直線的なリビングダイニングと隣接するご主人の趣味室。個室化することなく繋げることでコミュニケーションがより一層深まるレイアウトへ。

物件概要

所在地
宮城県仙台市泉区
敷地面積
216.52㎡(65.49坪)
延床面積
113.44㎡(34.31坪)
構造
木造在来2階建
既存建築年
1986年(築40年)
改修竣工年月
2022年08月
断熱性能
UA値 改修前2.06w/㎡・K⇒改修後0.6w/㎡・K(改修前の3倍に向上)
耐震性能
上部構造評点 改修前0.51 ⇒ 改修後1.25

企業紹介

企業名
株式会社 北洲
Webサイト
https://www.hokushu.net/reform/
コメント

創業67年。
北洲リノベーションは、建材・新築事業で培った技術と経験をもとに、住む人の健康を第一に考えた暖かな住まいづくりを、既存住宅の性能向上リノベーションで実現いたします。

私たちは実測診断で現状の建物性能を正確に把握し、断熱性能や耐震性能を向上させることはもちろん、ご家族がもつ暮らしのお悩みや理想に寄り添うプラン提案を経験豊富な有資格プランナーが行なっております。

【お約束①】「命と健康を守る」リフォーム
家族の健康を守るため、北洲リフォームは暖かさを徹底追及した断熱リフォームを1番に考えています。

【お約束②】「あなただけの」暮らしリフォーム
あなたのこだわり、悩みを、一緒に話し合い、暮らしを愉しむあなただけの快適空間を実現します。

【お約束③】「数値で示す」真正直なリフォーム
耐震診断と断熱診断で、「我が家の性能」を正確に知り、人にもおサイフにも優しい省エネ空間を提供します。

ご家族がもっと豊かに、幸せな暮らしを愉しめるよう、戸建て・マンションともに快適な住まいづくりのお手伝いをさせて頂きます。ぜひお気軽にご相談ください。

グレードとは

性能向上リノベでは、断熱と耐震のそれぞれの現行基準を3段階に分類し、基準を策定。性能向上リノベーションがされた証として、必要なエビデンス情報を登録し、安心・快適な家であるお墨付きの証として「性能向上登録証」を発行しています。これからの時代に選ばれる、安心・快適な家を可視化します。

断熱

ランク UA値 断熱等級
0.46 6
0.60 5
0.87 4
耐熱の説明

耐震

ランク 上部構造評点 耐震等級
1.5以上 3
1.25~1.5
未満
2
1.0~1.25
未満
1
耐震の説明
  • 建物は、自立循環型モデル住宅(在来工法)を対象に、地域区分は、6・7地域(都心部を中心)に策定しています。
  • UA値(外皮平均熱貫流率)とは住宅の内部から床、外壁、屋根(天井)や開口部などを通過して外部へ逃げる熱量を外皮全体で平均した値。値が小さいほど熱が逃げにくく、省エネルギー性能が高いことを示します。
  • 上部構造とは壁や柱など家の構造物のこと。上部構造評点とは、震度6強の地震で建物が倒壊しないために必要な力を数値で表した必要耐力(Qr)に対する現状の耐力の割合を表します。
  • 既存木造住宅の上部構造評点1.0、1.25、1.5は、品確法においての耐震等級1、2、3レベルに相当します。