2023年 エントリー作品

特別賞

松本町の家 ~家族の時間も、ひとりの時間も~

持ち家リノベーション・リフォーム

耐震+断熱

2,000〜2,500万円

2023年08月

投票数

46 47

投票受付終了

リノベーション後 After

松本町の家 ~家族の時間も、ひとりの時間も~

【外観】
元々のサイディングは、経年劣化により撥水性の低下やひび入っており、窓位置の変更の為ガルバリウム鋼板を施工した。

松本町の家 ~家族の時間も、ひとりの時間も~

【玄関】
元々収納がほとんどなく物が散らかっていた玄関は、シューズクロークを計画する事で使いやすく、収納も十分に出来るようになった。

松本町の家 ~家族の時間も、ひとりの時間も~

【LDK】
新しくなったLDKは写真左側のホビースペースを計画する事で、お子様がリビングで過ごすようになり、家族と会話が生まれる空間を提案した。

松本町の家 ~家族の時間も、ひとりの時間も~

【インナーバルコニー】
元々、二階が干場だったが家事動線を短くする為に、水廻りをコンパクトにし、日ごろの時短が行える家事楽な動線計画とした。

松本町の家 ~家族の時間も、ひとりの時間も~

【2F シェアスペース】
階段上がりのスペースに、多目的スペースを計画。
家族が自分の好きな時々に居場所を選んで楽しむことが出来るお家の計画とした。

松本町の家 ~家族の時間も、ひとりの時間も~

【2F ファミリークローゼット】
2階の親御様とお子様の寝室の間に10畳ほどのファミリークロークを計画。
棚やハンガーパイプなど様々な種類の収納がある為、使い勝手が良い収納スペースとなっている。

リノベーション前 Before

  • 松本町の家 ~家族の時間も、ひとりの時間も~

    【和室】
    二間続きとなっており、日常使いの出来ていない空間だった。

  • 松本町の家 ~家族の時間も、ひとりの時間も~

    【洗面脱衣室】
    お客様にとっては手狭な空間で、キッチンから遠くなっていた。

  • 松本町の家 ~家族の時間も、ひとりの時間も~

    【リビング】
    開口が多くあり明るい空間となっているが、単板ガラスだった為冬場はとても寒く、夏はとても暑くなっていた。

  • 松本町の家 ~家族の時間も、ひとりの時間も~

    【2階寝室】
    二方向に単板の窓があり日当たりは良かったが、断熱性能が低かった。

リノベーション施工中 Process

  • 松本町の家 ~家族の時間も、ひとりの時間も~

    【大工工事】
    構造躯体への金物施工や、筋違、添え梁を行う事で耐震性能の向上を図った。

  • 松本町の家 ~家族の時間も、ひとりの時間も~

    【断熱工事】
    壁にはアクアフォーム 85mm、天井には170mmの吹付け。
    床にはフェノバボード63mmを施工。
    窓は複層ガラス(アルゴンガス)とすることで断熱性能を向上させた。

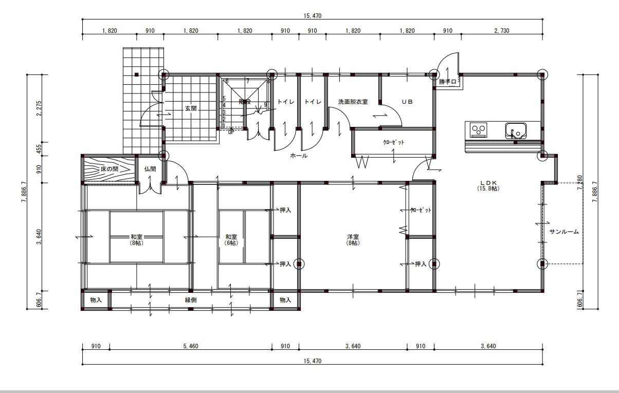
間取り Plan

リノベーション前

  • 松本町の家 ~家族の時間も、ひとりの時間も~

    1階既存平面図

  • 松本町の家 ~家族の時間も、ひとりの時間も~

    2階既存平面図

リノベーション後

  • 松本町の家 ~家族の時間も、ひとりの時間も~

    1階平面図

  • 松本町の家 ~家族の時間も、ひとりの時間も~

    2階平面図

物件概要

所在地
高山市松本町
敷地面積
198㎡(60坪)
延床面積
142㎡(43坪)
構造
木造在来2階建
既存建築年
1998年(築28年)
改修竣工年月
2023年08月
断熱性能
UA値 改修前1.44w/㎡・K⇒改修後0.65w/㎡・K(改修前の2.21倍に向上)
耐震性能
上部構造評点 改修前0.73 ⇒ 改修後1.05

企業紹介

企業名
株式会社つ・な・ぐ(古川製材株式会社)
Webサイト
https://re-rakusu.jp/

グレードとは

性能向上リノベでは、断熱と耐震のそれぞれの現行基準を3段階に分類し、基準を策定。性能向上リノベーションがされた証として、必要なエビデンス情報を登録し、安心・快適な家であるお墨付きの証として「性能向上登録証」を発行しています。これからの時代に選ばれる、安心・快適な家を可視化します。

断熱

ランク UA値 断熱等級
0.46 6
0.60 5
0.87 4
耐熱の説明

耐震

ランク 上部構造評点 耐震等級
1.5以上 3
1.25~1.5
未満
2
1.0~1.25
未満
1
耐震の説明
  • 建物は、自立循環型モデル住宅(在来工法)を対象に、地域区分は、6・7地域(都心部を中心)に策定しています。
  • UA値(外皮平均熱貫流率)とは住宅の内部から床、外壁、屋根(天井)や開口部などを通過して外部へ逃げる熱量を外皮全体で平均した値。値が小さいほど熱が逃げにくく、省エネルギー性能が高いことを示します。
  • 上部構造とは壁や柱など家の構造物のこと。上部構造評点とは、震度6強の地震で建物が倒壊しないために必要な力を数値で表した必要耐力(Qr)に対する現状の耐力の割合を表します。
  • 既存木造住宅の上部構造評点1.0、1.25、1.5は、品確法においての耐震等級1、2、3レベルに相当します。