2023年 エントリー作品

縁-ENISHI-

モデルハウス・体感施設

耐震+断熱

3,000万円

2023年04月

投票数

104 105

投票受付終了

リノベーション後 After

縁-ENISHI-

静岡県の天竜杉を使用し、大和張りの外壁に。
会社の歴史と共に、経年変化を楽しめる外壁としました。

縁-ENISHI-

社員はウッドデッキを通り、裏口にあるスタッフ用玄関に。
サッシからはたっぷりの日差しと目の前に障害物がないため、気持ちのいい空間の中で業務に取りかかれます。

縁-ENISHI-

3つある、打ち合わせ室。
大開口サッシで明るく開放的な部屋に。代々続く窓外の植栽がさらに癒しの空間にしてくれています。

縁-ENISHI-

プレイススイングで仕切りをなくすことも可能にしました。
ブラックでスリムなフレーム。
スタイリッシュな落ち着きのある打ち合わせ室になりました。

縁-ENISHI-

約40帖あるオフィス。
真ん中と窓際に造作の大型デスクを配置し、固定席を設けないフリーアドレスデスクとしました。
そのため、スタッフ同士のコミュニケーションパフォーマンス向上と環境美化を維持しています。
窓際席には、シェードを取り付け夏の日差し対策も行うことで快適なオフィスに。

縁-ENISHI-

エントランスには、木材を切り抜いて作られた会社のロゴ。
照明により、カッコよさに温かみもプラスされました。

リノベーション前 Before

  • 縁-ENISHI-

    以前はマッサージ屋さんだった建物。古き建物の良さを活かしつつ、残せるものは残していくを意識しました。
    耐震・断熱しっかりと計画をし、この先また長く受け継いでいけるような改修作業を行っていきます。

  • 縁-ENISHI-

    マッサージ屋さんの前は、蕎麦屋さんだったこともあり緑との相性も良い鎖樋のある昔ながらの日本家屋でした。

  • 縁-ENISHI-

    マッサージ屋さん時の内観写真。

  • 縁-ENISHI-

    店舗だったこともあり、タイルの可愛らしいトイレですが、少し寒々しい雰囲気も伝わります。

リノベーション施工中 Process

  • 縁-ENISHI-

    足りない所に柱や梁を新たに入れ、構造の補強作業をしました。

  • 縁-ENISHI-

    外壁の断熱材には旭ファイバーグラスのアクリアウール。
    1階の土間・床断熱材には、旭化成建材のスタイロエースを採用しました。
    冬の寒さだけでなく、夏の暑さにも有効的で一定の温度を保つことで光熱費も抑えられることが特徴なため、健康だけでなく環境にも配慮された新オフィスが期待できます。

  • 縁-ENISHI-

    気密シートを貼り、さらにグレードアップを目指します。

  • 縁-ENISHI-

    耐震補強作業。
    既存の物は残しつつ、新たな金具と梁が入っていきます。

  • 縁-ENISHI-

    断熱性を高めるため、窓も新しい物に交換。
    窓は、YKK APのLow-E複層ガラスで高断熱と遮熱を両立させ夏は涼しく、冬は暖房熱を外へ逃がさず快適な空間になりました。

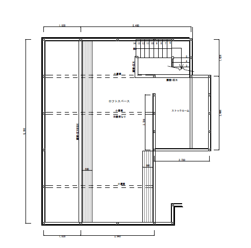
間取り Plan

リノベーション後

  • 縁-ENISHI-

    エントランスを入り、右方向は打ち合わせ室。左方向はオフィス。
    エントランスが中心にあることで、お客様のお出迎え・お見送りを社内で居るスタッフで行うことが可能となりました。
    時には、お打ち合わせをされているお客様がモデルハウスの代わりに、オフィス空間をご覧になられることもあります。
    そのため、情報管理する部分については目隠しとなる壁を設置し、見せたい部分・見えない部分の空間分けにも工夫をしました。

  • 縁-ENISHI-

    ロフトスペースは高さが低めの造作デスクが壁沿いに配置され、1階オフィスとは異なる独立した書斎の様な空間となりました。

物件概要

所在地
横浜市金沢区
延床面積
135.84㎡(41.09坪)
構造
木造在来軸組工法
既存建築年
1980年(築46年)
改修竣工年月
2023年04月
断熱性能
UA値 改修前0.87w/㎡・K⇒改修後0.40w/㎡・K(改修前の2.18倍に向上)
耐震性能
上部構造評点 改修前0.3 ⇒ 改修後1.15

企業紹介

企業名
アートテラスホーム株式会社

グレードとは

性能向上リノベでは、断熱と耐震のそれぞれの現行基準を3段階に分類し、基準を策定。性能向上リノベーションがされた証として、必要なエビデンス情報を登録し、安心・快適な家であるお墨付きの証として「性能向上登録証」を発行しています。これからの時代に選ばれる、安心・快適な家を可視化します。

断熱

ランク UA値 断熱等級
0.46 6
0.60 5
0.87 4
耐熱の説明

耐震

ランク 上部構造評点 耐震等級
1.5以上 3
1.25~1.5
未満
2
1.0~1.25
未満
1
耐震の説明
  • 建物は、自立循環型モデル住宅(在来工法)を対象に、地域区分は、6・7地域(都心部を中心)に策定しています。
  • UA値(外皮平均熱貫流率)とは住宅の内部から床、外壁、屋根(天井)や開口部などを通過して外部へ逃げる熱量を外皮全体で平均した値。値が小さいほど熱が逃げにくく、省エネルギー性能が高いことを示します。
  • 上部構造とは壁や柱など家の構造物のこと。上部構造評点とは、震度6強の地震で建物が倒壊しないために必要な力を数値で表した必要耐力(Qr)に対する現状の耐力の割合を表します。
  • 既存木造住宅の上部構造評点1.0、1.25、1.5は、品確法においての耐震等級1、2、3レベルに相当します。