2023年 エントリー作品

特別賞

あおもりのべ

中古物件購入+リノベーション

耐震+断熱

2,900万円

2023年03月

投票数

88 89

投票受付終了

リノベーション後 After

あおもりのべ

落ち着いた空間と間接照明が上品で雰囲気のあるリビングに。

あおもりのべ

開放感のある吹き抜けの天井には青森ヒバを使用しました。

あおもりのべ

既存の柱を活用した壁面。

あおもりのべ

ダイニングスペース。

あおもりのべ

バルコニーでプチBBQもでき遊び心満載。

あおもりのべ

メンテナンスコスト削減の外壁を使用。

リノベーション前 Before

  • あおもりのべ

    昔ながらの独立キッチンで暗く、壁付の収納も高い位置にあり洋室のドアの上に設置されているためとても危険でした。

  • あおもりのべ

    タイルの浴室で冬場は特に冷え込み、浴槽も足をのばして入ることができませんでした。

  • あおもりのべ

    水廻りの他にも天井下地部分も腐食していました。

  • あおもりのべ

    2階和室

  • あおもりのべ

    隣家との距離がとても近くせっぴがくっついてしまうことがあり、雪下ろしもとても大変でした。また、雪を捨てる場所も遠く不便な点がありました。

  • あおもりのべ

    敷地いっぱいの住宅で除雪が大変です。

リノベーション施工中 Process

  • あおもりのべ

    解体

  • あおもりのべ

    既存部分

  • あおもりのべ

    家全体を断熱材で覆い、気密も改善しました。

  • あおもりのべ

    冬も快適に過ごせるようスノーポケットを設置しました。
    また、せっぴのできる東面にはせっぴ安心フェンスを設置し隣家への対策もしています。

  • あおもりのべ

    既存基礎とあと施工アンカーで鉄筋と接続しました。

  • あおもりのべ

    屋根断熱工事

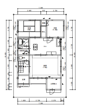
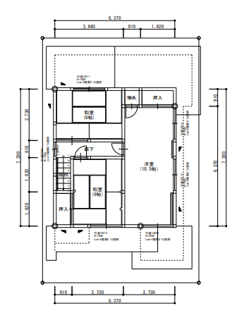
間取り Plan

リノベーション前

  • あおもりのべ

    1階平面図

  • あおもりのべ

    2階平面図

リノベーション後

  • あおもりのべ

    1階平面図

  • あおもりのべ

    2階平面図

物件概要

所在地
青森県青森市
敷地面積
107.90㎡(32.64坪)
延床面積
86.13㎡(26.05坪)
構造
木造在来工法
既存建築年
1976年(築50年)
改修竣工年月
2023年03月
断熱性能
UA値 改修後0.28w/㎡・K
耐震性能
上部構造評点 改修前0.33 ⇒ 改修後1.26
設計

ASIA HOMES(株式会社亜細亜建設)

施工

ASIA HOMES(株式会社亜細亜建設)

企業紹介

企業名
株式会社 亜細亜建設
Webサイト
https://www.asia1995.co.jp

グレードとは

性能向上リノベでは、断熱と耐震のそれぞれの現行基準を3段階に分類し、基準を策定。性能向上リノベーションがされた証として、必要なエビデンス情報を登録し、安心・快適な家であるお墨付きの証として「性能向上登録証」を発行しています。これからの時代に選ばれる、安心・快適な家を可視化します。

断熱

ランク UA値 断熱等級
0.46 6
0.60 5
0.87 4
耐熱の説明

耐震

ランク 上部構造評点 耐震等級
1.5以上 3
1.25~1.5
未満
2
1.0~1.25
未満
1
耐震の説明
  • 建物は、自立循環型モデル住宅(在来工法)を対象に、地域区分は、6・7地域(都心部を中心)に策定しています。
  • UA値(外皮平均熱貫流率)とは住宅の内部から床、外壁、屋根(天井)や開口部などを通過して外部へ逃げる熱量を外皮全体で平均した値。値が小さいほど熱が逃げにくく、省エネルギー性能が高いことを示します。
  • 上部構造とは壁や柱など家の構造物のこと。上部構造評点とは、震度6強の地震で建物が倒壊しないために必要な力を数値で表した必要耐力(Qr)に対する現状の耐力の割合を表します。
  • 既存木造住宅の上部構造評点1.0、1.25、1.5は、品確法においての耐震等級1、2、3レベルに相当します。