2023年 エントリー作品

特別賞

大内中央の家

中古物件購入+リノベーション

耐震+断熱

2,500〜3,500万円

2023年05月

投票数

37 38

投票受付終了

リノベーション後 After

大内中央の家

<外構>
セットバックした境界ブロックには風を通すことができる目隠しフェンスを設置。しっかり敷地内のプライバシーは確保できます。

大内中央の家

<玄関前>
玄関には電気錠の顔認証キーを採用。カギを取り出すことなく玄関前に立つだけで施錠、解錠ができストレスがありません。

大内中央の家

<寝室>
屋久島の杉には鎮静効果があるとされており、自律神経に作用し、呼吸数や心拍数をゆっくりさせることから、心身をリラックスさせるため、寝室の床材に採用しました。

大内中央の家

<玄関>
LDKとつながる玄関では、土間にペレットストーブを設置し、土間の蓄熱性を上げます。
また外出先から戻ってきても家に上がる前に手を洗えるように手洗いも完備。

大内中央の家

<縁側>
和室からつながる軒の深いデッキ空間は、目隠しフェンスにより視線を遮り、軒でしっかり日差しを遮りながらくつろぐことができます。デッキ空間の向こうにはベンチデッキもあり、近所の人が遊びに来ても気軽に座れ、週末にはアウトドアも楽しめる空間としています。

大内中央の家

<リビング>
リビングの床には県産木材を採用し、調湿性能に優れた北海道産の珪藻土を使用しています。
またリビングにつながる和室は小上がりにしており、和室に腰かけてくつろぐこともできます。

リノベーション前 Before

  • 大内中央の家

    <外構>
    広いお庭には大きな樹木と大きな庭石などがあり、日本庭園を思わせる空間でした。

  • 大内中央の家

    <玄関前>
    玄関は両袖FIXの大きな玄関が取り付いていました。
    アプローチの関係上、リノベーション後も玄関の位置はそのまま。

  • 大内中央の家

    <和室>
    南面にある和室は、立地も良く心地よい日差しが入る空間だったので、この空間を上手く活かせるプランを検討。

  • 大内中央の家

    <玄関>
    少し幅広の廊下の右側には洋室、左側にはリビング。

  • 大内中央の家

    <寝室>
    障子を開けると二間続きの和室。

  • 大内中央の家

    <リビング>
    リビングとダイニングは壁で仕切られた空間でした。

リノベーション施工中 Process

  • 大内中央の家

    <外構工事>
    道路との境界にあった既存ブロックを全部撤去し、手前を駐車場スペースにしました。

  • 大内中央の家

    <屋根断熱工事>
    屋根は外張り断熱をしました。

  • 大内中央の家

    <フレームⅡ施工>
    このリノベーションのポイントとなる空間です。大きい開口が必要だったため、耐震性能を担保するため、耐震フレームを採用し、開口部を耐力壁にすることができました。

  • 大内中央の家

    <気密測定>
    弊社のこだわりの1つである気密性能。自社大工の技術により新築並みの値となりました。

  • 大内中央の家

    <内部造作>
    小上がりの和室は大工による造作の床下収納です。

  • 大内中央の家

    <解体工事>
    使える木はできるだけ残す形で解体。

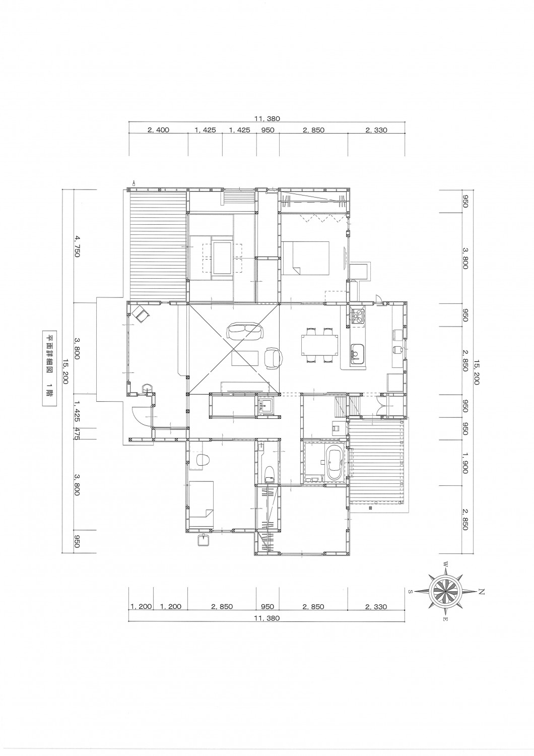
間取り Plan

リノベーション前

  • 大内中央の家

    リビング、ダイニング、和室と区切られた
    昔ながらの田の字の間取りでした。

リノベーション後

  • 大内中央の家

    今回のプランは玄関ホールを設けず、LDKと
    玄関をつなげ、土間にペレットストーブを設置。
    土間の蓄熱性と暖房効率に期待。

物件概要

所在地
山口県山口市大内中央
敷地面積
360㎡(110坪)
延床面積
122.83㎡(37.22坪)
構造
木造軸組工法平屋建て
既存建築年
1973年(築53年)
改修竣工年月
2023年05月
断熱性能
UA値 改修前3.5w/㎡・K⇒改修後0.4w/㎡・K(改修前の8倍に向上)
耐震性能
上部構造評点 改修後1.5

企業紹介

企業名
㈱スタジオセンス
Webサイト
https://studio-sense.jp/

グレードとは

性能向上リノベでは、断熱と耐震のそれぞれの現行基準を3段階に分類し、基準を策定。性能向上リノベーションがされた証として、必要なエビデンス情報を登録し、安心・快適な家であるお墨付きの証として「性能向上登録証」を発行しています。これからの時代に選ばれる、安心・快適な家を可視化します。

断熱

ランク UA値 断熱等級
0.46 6
0.60 5
0.87 4
耐熱の説明

耐震

ランク 上部構造評点 耐震等級
1.5以上 3
1.25~1.5
未満
2
1.0~1.25
未満
1
耐震の説明
  • 建物は、自立循環型モデル住宅(在来工法)を対象に、地域区分は、6・7地域(都心部を中心)に策定しています。
  • UA値(外皮平均熱貫流率)とは住宅の内部から床、外壁、屋根(天井)や開口部などを通過して外部へ逃げる熱量を外皮全体で平均した値。値が小さいほど熱が逃げにくく、省エネルギー性能が高いことを示します。
  • 上部構造とは壁や柱など家の構造物のこと。上部構造評点とは、震度6強の地震で建物が倒壊しないために必要な力を数値で表した必要耐力(Qr)に対する現状の耐力の割合を表します。
  • 既存木造住宅の上部構造評点1.0、1.25、1.5は、品確法においての耐震等級1、2、3レベルに相当します。