2022年 エントリー作品

特別賞

秋田・横森 らせん階段の家

持ち家リノベーション・リフォーム

耐震+断熱

2,000万円

2022年12月

投票数

4853 4854

投票受付終了

リノベーション後 After

秋田・横森 らせん階段の家

中央らせん階段の廻りには、
造作ソファー、ペレットストーブ、キッチン・カウンター収納、引き戸物入、などが分散しつつも1つのまとまった空間にも感じられます。
床はクリ無垢、壁は漆喰仕上。

秋田・横森 らせん階段の家

解放感のある階段が、インテリアの要素も兼ねます。
既存柱は白く塗りつぶして現しで見せています。

秋田・横森 らせん階段の家

階段裏にある洗面台はカーテンで仕切れ、家事もしやすくなりました

秋田・横森 らせん階段の家

寝室とクローゼットの仕切は本棚で、天井の既存梁と補強梁は白く塗りつぶして見せます。ネイビー色壁は施主様のご意向でアクセントに。

秋田・横森 らせん階段の家

階段踊り場から横森の緑が見えます。南面の光が差し込みます。

秋田・横森 らせん階段の家

秋田杉無地の板を下見張り(ダイライト下地の上)、グレーで薄く塗りました。
経年変化も楽しみつつ、メンテナンスもしないで済むように配慮しました。
玄関戸は米松で、秋田地元の建具工によるものです。

リノベーション前 Before

  • 秋田・横森 らせん階段の家
  • 秋田・横森 らせん階段の家
  • 秋田・横森 らせん階段の家
  • 秋田・横森 らせん階段の家

リノベーション施工中 Process

  • 秋田・横森 らせん階段の家

    壁は16K HGW、天井は勾配なりにロックウール吹き込み。
    壁・天井ともに防湿シートB種張り。
    樹脂サッシはAPW430および330を箇所によって併用。

  • 秋田・横森 らせん階段の家

    床下ウレタン吹付90mm。
    大引も巻き込むように(ただし通気土台は塞がない)
    屋根裏ロックウール300mmブローイング。

  • 秋田・横森 らせん階段の家

    外周部は筋交いを取り払い断熱化を優先、
    代わりに耐力面材張、ダイライト+杉板張り

  • 秋田・横森 らせん階段の家

    熱交換機ユニット/一種換気を採用

  • 秋田・横森 らせん階段の家

    タイベックシルバーおよび赤松通気胴縁のうえ、秋田杉下見板張り

  • 秋田・横森 らせん階段の家

    らせん階段と各部屋造作中

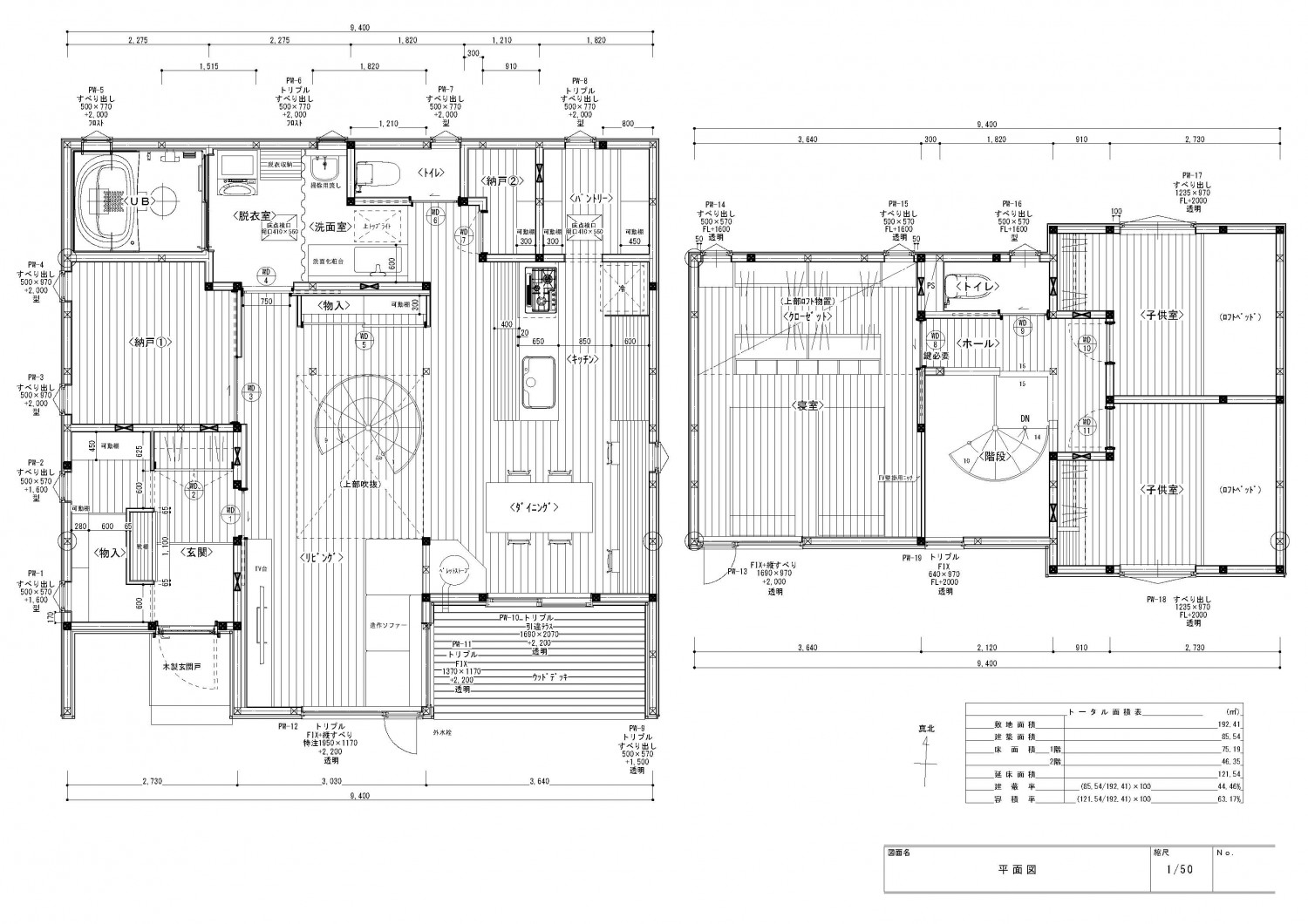
間取り Plan

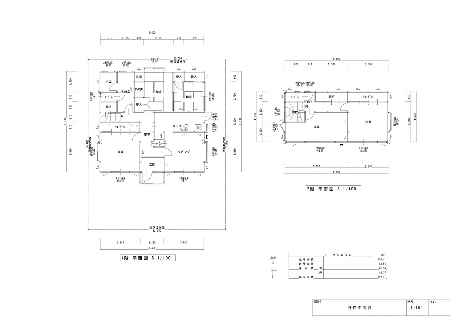
リノベーション前

  • 秋田・横森 らせん階段の家

リノベーション後

  • 秋田・横森 らせん階段の家

物件概要

所在地
秋田県秋田市
敷地面積
192.41㎡(58.20坪)
延床面積
121.54㎡(36.76坪)
構造
木造在来2階建
既存建築年
1990年(築36年)
改修竣工年月
2022年12月
断熱性能
UA値 改修前1.01w/㎡・K⇒改修後0.35w/㎡・K(改修前の2.8倍に向上)
耐震性能
上部構造評点 改修前0.53 ⇒ 改修後1.79

企業紹介

企業名
Tree一級建築士事務所
Webサイト
https://www.tree-archi.com/
コメント

・家の状態を調べる
・住み継ぐ人たちのこれからの物語を考える
・素材を大事にして人の手による作業を積み重ねる
改修工事では幾つもの山を越えなければなりません。予期せぬ壁も立ちはだかります。知恵と技術と経験とが要求されます。1つ1つ登りきることで新築にはない景色が見られることが何よりの喜びです。

グレードとは

性能向上リノベでは、断熱と耐震のそれぞれの現行基準を3段階に分類し、基準を策定。性能向上リノベーションがされた証として、必要なエビデンス情報を登録し、安心・快適な家であるお墨付きの証として「性能向上登録証」を発行しています。これからの時代に選ばれる、安心・快適な家を可視化します。

断熱

ランク UA値 断熱等級
0.46 6
0.60 5
0.87 4
耐熱の説明

耐震

ランク 上部構造評点 耐震等級
1.5以上 3
1.25~1.5
未満
2
1.0~1.25
未満
1
耐震の説明
  • 建物は、自立循環型モデル住宅(在来工法)を対象に、地域区分は、6・7地域(都心部を中心)に策定しています。
  • UA値(外皮平均熱貫流率)とは住宅の内部から床、外壁、屋根(天井)や開口部などを通過して外部へ逃げる熱量を外皮全体で平均した値。値が小さいほど熱が逃げにくく、省エネルギー性能が高いことを示します。
  • 上部構造とは壁や柱など家の構造物のこと。上部構造評点とは、震度6強の地震で建物が倒壊しないために必要な力を数値で表した必要耐力(Qr)に対する現状の耐力の割合を表します。
  • 既存木造住宅の上部構造評点1.0、1.25、1.5は、品確法においての耐震等級1、2、3レベルに相当します。