2022年 エントリー作品

マンションこそ、こだわりたいならリノベーション【仙台】

持ち家リノベーション・リフォーム

断熱

1,000〜1,500万円

2020年08月

投票数

802 803

投票受付終了

リノベーション後 After

マンションこそ、こだわりたいならリノベーション【仙台】

大空間LDKでありながら、その場ごとのおもしろみを感じられるデザインに。壁掛けTVの壁面はお気に入りのデニム柄のクロスを取り入れています。
夫婦で大好きな日本酒やプロジェクタシアターを思う存分愉しめる空間へ生まれ変わりました。

マンションこそ、こだわりたいならリノベーション【仙台】

和室は多目的に使える洋室にしました。扉の開閉により、リビングやキッチンにいる家族の気配を感じながらも、集中できるワーキングコーナーとなっています。来客時の部屋としても重宝します。

マンションこそ、こだわりたいならリノベーション【仙台】

キッチンの位置を少し前に移動し広く使えるようにしました。上部の収納もなくしたことで開放感のあるリビングとひとつながりの空間になり、キッチンに居る時もひとりにならないような空間づくりをしています。キッチンの壁には「ちぎり絵」を模したモザイクタイルを採用。

マンションこそ、こだわりたいならリノベーション【仙台】

サーモウッドの腰壁とアーチをあしらった塗り壁や調質タイルで仕上げたことで、デザイン性と機能性を兼ね備えた上質空間にしました。家に帰るのが楽しみになる温かみある玄関です。

マンションこそ、こだわりたいならリノベーション【仙台】

トイレは工事中、排水管の位置確認のために、熟練職人がトイレの模型を段ボールで作りお客様に設置位置のイメージ確認を行ないました。仕上げのデザイン性と日々の使い勝手を重視するための取り組みです。

マンションこそ、こだわりたいならリノベーション【仙台】

ネイビーオークの洗面台とステンドグラス調のブラケット。
収納できる棚を造作し収納量が大幅にアップ。好きなデザイン性を取り入れた洗面脱衣空間にコーディーネートしました。

リノベーション前 Before

  • マンションこそ、こだわりたいならリノベーション【仙台】

    工事前)ダイニング

  • マンションこそ、こだわりたいならリノベーション【仙台】

    工事前)和室まわり

  • マンションこそ、こだわりたいならリノベーション【仙台】

    工事前)キッチン

  • マンションこそ、こだわりたいならリノベーション【仙台】

    工事前)玄関

  • マンションこそ、こだわりたいならリノベーション【仙台】

    工事前)トイレ

  • マンションこそ、こだわりたいならリノベーション【仙台】

    工事前)洗面

リノベーション施工中 Process

  • マンションこそ、こだわりたいならリノベーション【仙台】

    こちらは、浴室、洗面、洗濯機の床下にあたる部分の配管工事です。配管に遮音シートを巻くことで流水音を軽減し、無駄な生活音をなくしています。

  • マンションこそ、こだわりたいならリノベーション【仙台】

    床・壁・天井がコンクリート直貼仕上でした。音が下の階に伝わるのを軽減させるため、床には新たに遮音材を施工します。

  • マンションこそ、こだわりたいならリノベーション【仙台】

    内装は下地や造作工事が終わり、ここから仕上の工事に入ります。外周面の壁には省エネ基準5地域にて等級4をクリアする断熱ボードを施工し、省エネルギー化を図りました。

  • マンションこそ、こだわりたいならリノベーション【仙台】

    リノベ記念に塗り壁に手形を付けたところをパチリ!いい思い出になりますね。

  • マンションこそ、こだわりたいならリノベーション【仙台】

    こちらの下がり壁には曲線のデザインを取り入れ、空間のアクセントにすることで我が家への愛着が深まるようにしました。

  • マンションこそ、こだわりたいならリノベーション【仙台】

    性能向上で光熱費を下げること。それ以上に、次世代に向けて、CO2排出の削減効果と年間の植樹本数に例えることで、リノベーション事体がSDGsに貢献していることをお伝えしています。

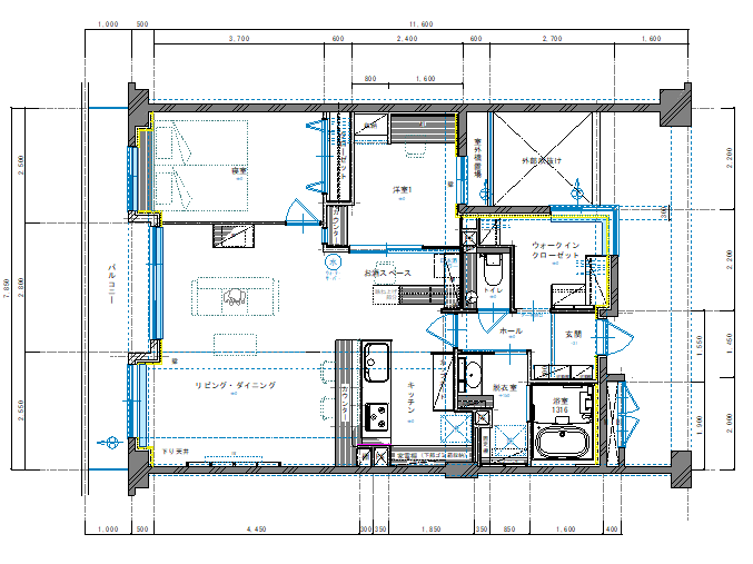
間取り Plan

リノベーション前

  • マンションこそ、こだわりたいならリノベーション【仙台】

    機能していない和室の改善とともに、箱詰め構成だった間取りを一つの空間となるようにバーサタイルなプランにしました。

リノベーション後

  • マンションこそ、こだわりたいならリノベーション【仙台】

    南面にLDKを広く配置し、日本酒の趣味を愉しめるバーコーナーも取り入れました。和室は洋室化したことで、書斎や多目的なスペースとして活用できる空間としました。

物件概要

所在地
宮城県仙台市青葉区
延床面積
72㎡(21.78坪)
構造
RC造
既存建築年
1997年(築29年)
改修竣工年月
2020年08月

企業紹介

企業名
株式会社 北洲
Webサイト
https://www.hokushu.net/reform/
コメント

創業67年。
北洲リノベーションは、建材・新築事業で培った技術と経験をもとに、住む人の健康を第一に考えた暖かな住まいづくりを、既存住宅の性能向上リノベーションで実現いたします。

私たちは実測診断で現状の建物性能を正確に把握し、断熱性能や耐震性能を向上させることはもちろん、ご家族がもつ暮らしのお悩みや理想に寄り添うプラン提案を経験豊富な有資格プランナーが行なっております。

【お約束①】「命と健康を守る」リフォーム
家族の健康を守るため、北洲リフォームは暖かさを徹底追及した断熱リフォームを1番に考えています。

【お約束②】「あなただけの」暮らしリフォーム
あなたのこだわり、悩みを、一緒に話し合い、暮らしを愉しむあなただけの快適空間を実現します。

【お約束③】「数値で示す」真正直なリフォーム
耐震診断と断熱診断で、「我が家の性能」を正確に知り、人にもおサイフにも優しい省エネ空間を提供します。

ご家族がもっと豊かに、幸せな暮らしを愉しめるよう、戸建て・マンションともに快適な住まいづくりのお手伝いをさせて頂きます。ぜひお気軽にご相談ください。

グレードとは

性能向上リノベでは、断熱と耐震のそれぞれの現行基準を3段階に分類し、基準を策定。性能向上リノベーションがされた証として、必要なエビデンス情報を登録し、安心・快適な家であるお墨付きの証として「性能向上登録証」を発行しています。これからの時代に選ばれる、安心・快適な家を可視化します。

断熱

ランク UA値 断熱等級
0.46 6
0.60 5
0.87 4
耐熱の説明

耐震

ランク 上部構造評点 耐震等級
1.5以上 3
1.25~1.5
未満
2
1.0~1.25
未満
1
耐震の説明
  • 建物は、自立循環型モデル住宅(在来工法)を対象に、地域区分は、6・7地域(都心部を中心)に策定しています。
  • UA値(外皮平均熱貫流率)とは住宅の内部から床、外壁、屋根(天井)や開口部などを通過して外部へ逃げる熱量を外皮全体で平均した値。値が小さいほど熱が逃げにくく、省エネルギー性能が高いことを示します。
  • 上部構造とは壁や柱など家の構造物のこと。上部構造評点とは、震度6強の地震で建物が倒壊しないために必要な力を数値で表した必要耐力(Qr)に対する現状の耐力の割合を表します。
  • 既存木造住宅の上部構造評点1.0、1.25、1.5は、品確法においての耐震等級1、2、3レベルに相当します。