2022年 エントリー作品

みんなで食事を楽しむ家族団らんの家

持ち家リノベーション・リフォーム

ゾーン断熱

3,000〜3,500万円

2022年07月

投票数

52 53

投票受付終了

リノベーション後 After

みんなで食事を楽しむ家族団らんの家

既存の柱も埋木をして化粧柱として残し、以前の時間を思い出すくつろぎ空間となっています。

みんなで食事を楽しむ家族団らんの家

大家族の大きなテーブルも置けるだけ、広く設けたダイニングの空間を中心とした家族空間です。

みんなで食事を楽しむ家族団らんの家

瓦屋根を板金屋根にし、耐震性の向上をしました。

みんなで食事を楽しむ家族団らんの家

家族団らんの隣で、自然の日を浴びながら勉強や読書ができるワークスペース気持ちのいい空間です。

みんなで食事を楽しむ家族団らんの家

家事動線の真ん中であり、家族空間の隣でもあるため、家事が楽になる間取りになりました。

みんなで食事を楽しむ家族団らんの家

家族みんなで食事の準備ができるだけの造作カップボードと調理道具の十分な収納をキッチン背面に設けました。

リノベーション前 Before

  • みんなで食事を楽しむ家族団らんの家

    外観

  • みんなで食事を楽しむ家族団らんの家

    西側の座敷続きの空間

  • みんなで食事を楽しむ家族団らんの家

    タイル仕上の手洗い

  • みんなで食事を楽しむ家族団らんの家

    お風呂

  • みんなで食事を楽しむ家族団らんの家

    2階のお部屋

  • みんなで食事を楽しむ家族団らんの家

    北東のダイニングキッチン

リノベーション施工中 Process

  • みんなで食事を楽しむ家族団らんの家

    既存利用する建具屋2階土壁を残しながらの部分解体をしていきます。

  • みんなで食事を楽しむ家族団らんの家

    ひびがあった基礎を数回に分けて配筋、打設し、基礎補強していきます。

  • みんなで食事を楽しむ家族団らんの家

    鉄筋で既存基礎としっかりつなぎ、増し打ちして、間取りに合わせた基礎を作っていきます。

  • みんなで食事を楽しむ家族団らんの家

    耐力面材と筋交い、火打ち金物でしっかりと耐震性向上をしていきます。

  • みんなで食事を楽しむ家族団らんの家

    断熱材はセルロースファイバーを隙間なく敷き詰めていきます。

間取り Plan

リノベーション前

  • みんなで食事を楽しむ家族団らんの家

    既存1階平面図

  • みんなで食事を楽しむ家族団らんの家

    既存2階平面図

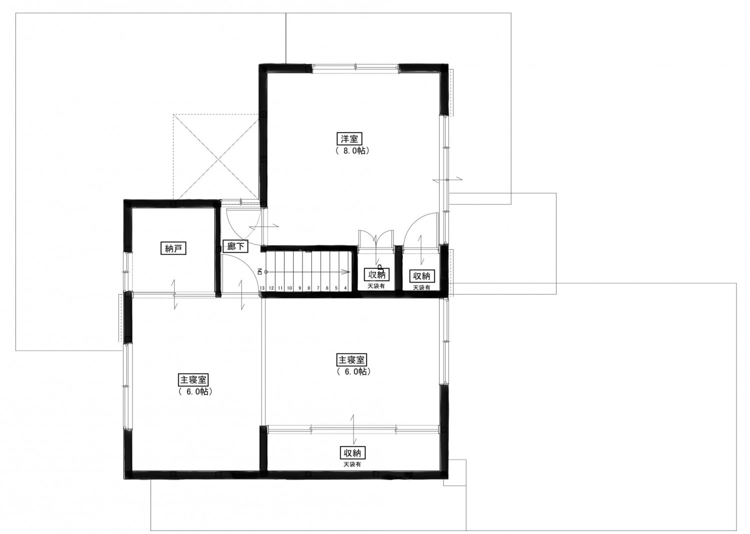
リノベーション後

  • みんなで食事を楽しむ家族団らんの家

    1階平面図
    和室続きで縁側のあった南側の明るい場所に、リビングやダイニング、キッチンの家族の集まる空間を持ってきました。
    東側には、収納などの共有スペースを作り、収納を確保しています。

  • みんなで食事を楽しむ家族団らんの家

    2階平面図
    2階部分は間取り変更を行わず、床材やクロスの張り替えなどを行っています。

物件概要

所在地
岐阜県各務原市
敷地面積
339㎡(102.54坪)
延床面積
146.56㎡(44.34坪)
構造
木造在来2階建
既存建築年
1981年(築45年)
改修竣工年月
2022年07月
断熱性能
UA値 改修前3.31w/㎡・K⇒改修後0.44w/㎡・K(改修前の2.4倍に向上)
耐震性能
上部構造評点 改修前0.37 ⇒ 改修後1.51
設計

山崎明

施工

(株)WOODYYLIFE

企業紹介

企業名
株式会社 WOODYYLIFE
Webサイト
https://woodylife.jp/

グレードとは

性能向上リノベでは、断熱と耐震のそれぞれの現行基準を3段階に分類し、基準を策定。性能向上リノベーションがされた証として、必要なエビデンス情報を登録し、安心・快適な家であるお墨付きの証として「性能向上登録証」を発行しています。これからの時代に選ばれる、安心・快適な家を可視化します。

断熱

ランク UA値 断熱等級
0.46 6
0.60 5
0.87 4
耐熱の説明

耐震

ランク 上部構造評点 耐震等級
1.5以上 3
1.25~1.5
未満
2
1.0~1.25
未満
1
耐震の説明
  • 建物は、自立循環型モデル住宅(在来工法)を対象に、地域区分は、6・7地域(都心部を中心)に策定しています。
  • UA値(外皮平均熱貫流率)とは住宅の内部から床、外壁、屋根(天井)や開口部などを通過して外部へ逃げる熱量を外皮全体で平均した値。値が小さいほど熱が逃げにくく、省エネルギー性能が高いことを示します。
  • 上部構造とは壁や柱など家の構造物のこと。上部構造評点とは、震度6強の地震で建物が倒壊しないために必要な力を数値で表した必要耐力(Qr)に対する現状の耐力の割合を表します。
  • 既存木造住宅の上部構造評点1.0、1.25、1.5は、品確法においての耐震等級1、2、3レベルに相当します。