2022年 エントリー作品

特別賞

昭和の建物と令和の技術を融合させた「性能向上リノベ」

中古物件購入+リノベーション

断熱

2,000〜3,000万円

2022年05月

投票数

169 170

投票受付終了

リノベーション後 After

昭和の建物と令和の技術を融合させた「性能向上リノベ」
昭和の建物と令和の技術を融合させた「性能向上リノベ」
昭和の建物と令和の技術を融合させた「性能向上リノベ」
昭和の建物と令和の技術を融合させた「性能向上リノベ」
昭和の建物と令和の技術を融合させた「性能向上リノベ」
昭和の建物と令和の技術を融合させた「性能向上リノベ」
昭和の建物と令和の技術を融合させた「性能向上リノベ」
昭和の建物と令和の技術を融合させた「性能向上リノベ」
昭和の建物と令和の技術を融合させた「性能向上リノベ」
昭和の建物と令和の技術を融合させた「性能向上リノベ」
昭和の建物と令和の技術を融合させた「性能向上リノベ」

リノベーション前 Before

  • 昭和の建物と令和の技術を融合させた「性能向上リノベ」
  • 昭和の建物と令和の技術を融合させた「性能向上リノベ」
  • 昭和の建物と令和の技術を融合させた「性能向上リノベ」
  • 昭和の建物と令和の技術を融合させた「性能向上リノベ」

リノベーション施工中 Process

  • 昭和の建物と令和の技術を融合させた「性能向上リノベ」
  • 昭和の建物と令和の技術を融合させた「性能向上リノベ」

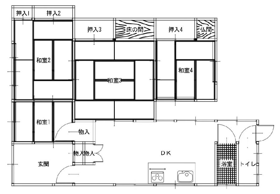
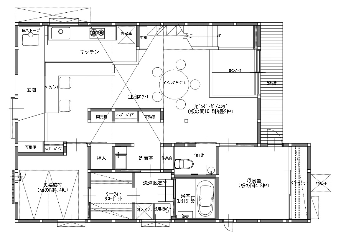
間取り Plan

リノベーション前

  • 昭和の建物と令和の技術を融合させた「性能向上リノベ」

リノベーション後

  • 昭和の建物と令和の技術を融合させた「性能向上リノベ」
  • 昭和の建物と令和の技術を融合させた「性能向上リノベ」

物件概要

所在地
出雲市
敷地面積
127.69㎡(38.62坪)
延床面積
96.98㎡(29.33坪)
構造
木造軸組工法
既存建築年
1957年(築69年)
改修竣工年月
2022年05月
断熱性能
UA値 改修後0.41w/㎡・K
耐震性能
上部構造評点 改修前0.5 ⇒ 改修後1.0

企業紹介

企業名
有限会社 夢工房
Webサイト
https://www.yumekobo-izumo.com/
コメント

私たち夢工房は、子どもたちの成長を見守ってきた“思い出の詰まった住み慣れた家”を、ただ壊して建て替えるのではなく、もう一度息を吹き込み、これからも大切に住み継いでいただきたい、その思いを形にする「リノベーション専門店」として活動しています。

耐震・断熱といった住宅性能の向上はもちろん、間取り・設備・配管まで、これから暮らす方の生活に合わせてトータルで整えていきます。
夢工房では、リノベーションの必要性をご理解いただき、心から納得・満足していただけるよう、お客様へ丁寧にご説明し、「リノベーションをして良かった」と感じていただける家づくりを、社員一同常に考え、実践してまいります。

グレードとは

性能向上リノベでは、断熱と耐震のそれぞれの現行基準を3段階に分類し、基準を策定。性能向上リノベーションがされた証として、必要なエビデンス情報を登録し、安心・快適な家であるお墨付きの証として「性能向上登録証」を発行しています。これからの時代に選ばれる、安心・快適な家を可視化します。

断熱

ランク UA値 断熱等級
0.46 6
0.60 5
0.87 4
耐熱の説明

耐震

ランク 上部構造評点 耐震等級
1.5以上 3
1.25~1.5
未満
2
1.0~1.25
未満
1
耐震の説明
  • 建物は、自立循環型モデル住宅(在来工法)を対象に、地域区分は、6・7地域(都心部を中心)に策定しています。
  • UA値(外皮平均熱貫流率)とは住宅の内部から床、外壁、屋根(天井)や開口部などを通過して外部へ逃げる熱量を外皮全体で平均した値。値が小さいほど熱が逃げにくく、省エネルギー性能が高いことを示します。
  • 上部構造とは壁や柱など家の構造物のこと。上部構造評点とは、震度6強の地震で建物が倒壊しないために必要な力を数値で表した必要耐力(Qr)に対する現状の耐力の割合を表します。
  • 既存木造住宅の上部構造評点1.0、1.25、1.5は、品確法においての耐震等級1、2、3レベルに相当します。