2022年 エントリー作品

特別賞

家族のコミュニケーションが弾む四世代・二世帯住宅

持ち家リノベーション・リフォーム

耐震+断熱

4,000〜4,500万円

2022年02月

投票数

14 15

投票受付終了

リノベーション後 After

家族のコミュニケーションが弾む四世代・二世帯住宅

ご夫婦世帯のリビングルーム

家族のコミュニケーションが弾む四世代・二世帯住宅
家族のコミュニケーションが弾む四世代・二世帯住宅

おばあ様とお義父様のリビングルーム

家族のコミュニケーションが弾む四世代・二世帯住宅

おばあ様の要望通りこえ絵を残し性能向上リノベが竣工
おばあ様、お義父様、ご夫婦、お子様の4世代が住み継ぐ持ち家リノベーションが実現しました。

家族のコミュニケーションが弾む四世代・二世帯住宅

リビング吹き抜け部の高窓より明かりを取り込む窓の使い方

リノベーション前 Before

  • 家族のコミュニケーションが弾む四世代・二世帯住宅

    同居のおばあ様が入母屋のこて絵を残してほしいとの要望を受け契約を行う

  • 家族のコミュニケーションが弾む四世代・二世帯住宅
  • 家族のコミュニケーションが弾む四世代・二世帯住宅

    店舗と倉庫の間仕切りにフレームⅡを耐震補強計画に織り込む。
    施工前の施工部分の写真

リノベーション施工中 Process

  • 家族のコミュニケーションが弾む四世代・二世帯住宅
  • 家族のコミュニケーションが弾む四世代・二世帯住宅

    フレームⅡの新設基礎工事

  • 家族のコミュニケーションが弾む四世代・二世帯住宅

    フレームⅡ施工後

  • 家族のコミュニケーションが弾む四世代・二世帯住宅

    フレームⅡの新設基礎部

  • 家族のコミュニケーションが弾む四世代・二世帯住宅
  • 家族のコミュニケーションが弾む四世代・二世帯住宅

    吹き抜け部の天井断熱施工

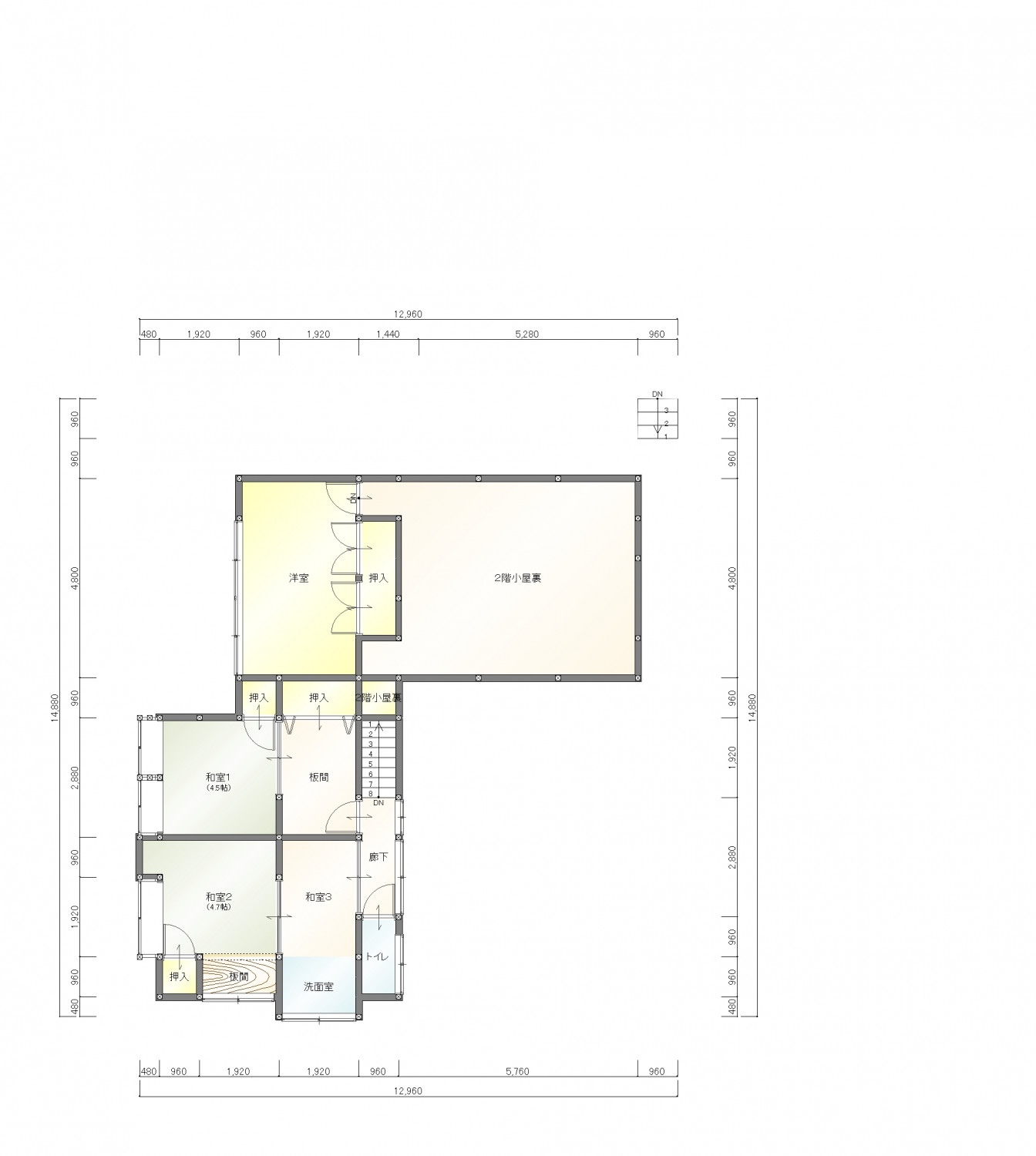
間取り Plan

リノベーション前

  • 家族のコミュニケーションが弾む四世代・二世帯住宅

    1F

  • 家族のコミュニケーションが弾む四世代・二世帯住宅

    2F

リノベーション後

  • 家族のコミュニケーションが弾む四世代・二世帯住宅

    1F

  • 家族のコミュニケーションが弾む四世代・二世帯住宅

    2F

物件概要

所在地
大分県別府市
敷地面積
813.88㎡(246.2 坪)
延床面積
298.83㎡(90.4坪)
構造
木造在来軸組構法
既存建築年
1927年(築98年)
改修竣工年月
2022年02月
断熱性能
UA値 改修前3.26w/㎡・K⇒改修後0.85w/㎡・K(改修前の4.5倍に向上)
耐震性能
上部構造評点 改修前0.17 ⇒ 改修後1.11
設計

(株)カワノ

施工

(株)カワノ

企業紹介

企業名
株式会社 カワノ
Webサイト
http://www.i-kawano.co.jp

グレードとは

性能向上リノベでは、断熱と耐震のそれぞれの現行基準を3段階に分類し、基準を策定。性能向上リノベーションがされた証として、必要なエビデンス情報を登録し、安心・快適な家であるお墨付きの証として「性能向上登録証」を発行しています。これからの時代に選ばれる、安心・快適な家を可視化します。

断熱

ランク UA値 断熱等級
0.46 6
0.60 5
0.87 4
耐熱の説明

耐震

ランク 上部構造評点 耐震等級
1.5以上 3
1.25~1.5
未満
2
1.0~1.25
未満
1
耐震の説明
  • 建物は、自立循環型モデル住宅(在来工法)を対象に、地域区分は、6・7地域(都心部を中心)に策定しています。
  • UA値(外皮平均熱貫流率)とは住宅の内部から床、外壁、屋根(天井)や開口部などを通過して外部へ逃げる熱量を外皮全体で平均した値。値が小さいほど熱が逃げにくく、省エネルギー性能が高いことを示します。
  • 上部構造とは壁や柱など家の構造物のこと。上部構造評点とは、震度6強の地震で建物が倒壊しないために必要な力を数値で表した必要耐力(Qr)に対する現状の耐力の割合を表します。
  • 既存木造住宅の上部構造評点1.0、1.25、1.5は、品確法においての耐震等級1、2、3レベルに相当します。