2022年 エントリー作品

文京区千石の家(耐震改修)

持ち家リノベーション・リフォーム

耐震

500万円

2022年10月

投票数

3 4

投票受付終了

リノベーション後 After

文京区千石の家(耐震改修)

耐力壁施工後、押入れを復旧

文京区千石の家(耐震改修)

片引き戸を撤去して耐力壁を施工。
仕上げは化粧合板とした。

文京区千石の家(耐震改修)

キッチンも併せて更新した。
キッチン右面は耐力壁を施工。

文京区千石の家(耐震改修)

リビングの完成写真。
これまでの生活感と相違が無いように、原状回復を意識して施工した。

リノベーション前 Before

  • 文京区千石の家(耐震改修)

    キッチン

  • 文京区千石の家(耐震改修)

    リビング①

  • 文京区千石の家(耐震改修)

    リビング②

  • 文京区千石の家(耐震改修)

    リビング③

  • 文京区千石の家(耐震改修)

    2階洋室

リノベーション施工中 Process

  • 文京区千石の家(耐震改修)

    既存無筋基礎に対して鉄筋コンクリート基礎を抱き合わせて補強
    「鉄筋施工状況」

  • 文京区千石の家(耐震改修)

    既存無筋基礎に対して鉄筋コンクリート基礎を抱き合わせて補強
    「コンクリート打設後の状況」

  • 文京区千石の家(耐震改修)

    防湿防蟻シート施工

  • 文京区千石の家(耐震改修)

    「かべつよし」による耐力壁施工

  • 文京区千石の家(耐震改修)

    構造用合板による耐力壁施工

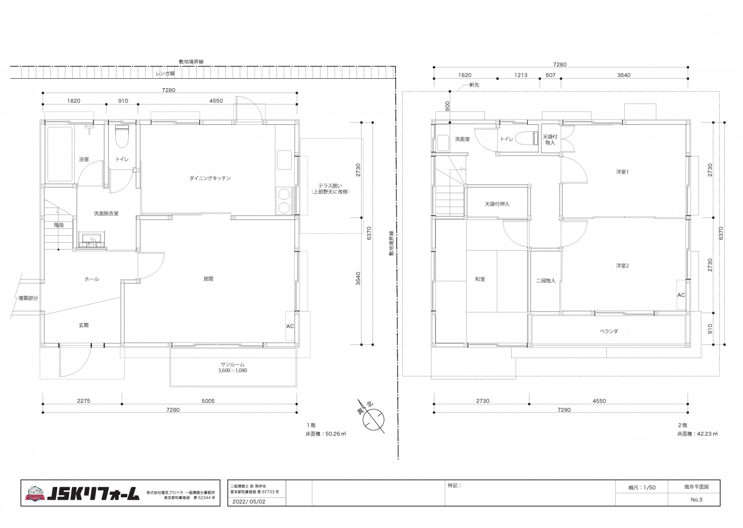
間取り Plan

リノベーション前

  • 文京区千石の家(耐震改修)

リノベーション後

  • 文京区千石の家(耐震改修)
  • 文京区千石の家(耐震改修)
  • 文京区千石の家(耐震改修)

物件概要

所在地
東京都文京区
敷地面積
578.63㎡(175.34坪)
延床面積
92.49㎡(28.02坪)
構造
木造在来軸組工法 2階建
既存建築年
1980年(築46年)
改修竣工年月
2022年10月
耐震性能
上部構造評点 改修前0.36 ⇒ 改修後1.5

企業紹介

企業名
株式会社 電気プロペラ

グレードとは

性能向上リノベでは、断熱と耐震のそれぞれの現行基準を3段階に分類し、基準を策定。性能向上リノベーションがされた証として、必要なエビデンス情報を登録し、安心・快適な家であるお墨付きの証として「性能向上登録証」を発行しています。これからの時代に選ばれる、安心・快適な家を可視化します。

断熱

ランク UA値 断熱等級
0.46 6
0.60 5
0.87 4
耐熱の説明

耐震

ランク 上部構造評点 耐震等級
1.5以上 3
1.25~1.5
未満
2
1.0~1.25
未満
1
耐震の説明
  • 建物は、自立循環型モデル住宅(在来工法)を対象に、地域区分は、6・7地域(都心部を中心)に策定しています。
  • UA値(外皮平均熱貫流率)とは住宅の内部から床、外壁、屋根(天井)や開口部などを通過して外部へ逃げる熱量を外皮全体で平均した値。値が小さいほど熱が逃げにくく、省エネルギー性能が高いことを示します。
  • 上部構造とは壁や柱など家の構造物のこと。上部構造評点とは、震度6強の地震で建物が倒壊しないために必要な力を数値で表した必要耐力(Qr)に対する現状の耐力の割合を表します。
  • 既存木造住宅の上部構造評点1.0、1.25、1.5は、品確法においての耐震等級1、2、3レベルに相当します。