2022年 エントリー作品

実家を引き継ぎー北欧ブルーの家へ

持ち家リノベーション・リフォーム

耐震+断熱

2,090万円

2020年01月

投票数

11 12

投票受付終了

リノベーション後 After

実家を引き継ぎー北欧ブルーの家へ

高断熱の玄関ドアへ交換

実家を引き継ぎー北欧ブルーの家へ

リビングの建具は、好みのデザインで造作しました。

実家を引き継ぎー北欧ブルーの家へ

幅広で使いやすい洗面は造作オリジナル

実家を引き継ぎー北欧ブルーの家へ

トイレの壁にはアクセントでターコイズブルーの壁紙をセレクト

実家を引き継ぎー北欧ブルーの家へ

リビング・ダイニングの壁面にはブルーグレー系の壁紙をアクセントに

リノベーション前 Before

  • 実家を引き継ぎー北欧ブルーの家へ

    ご主人の実家だった家は、戸建て賃貸として使っていました。

  • 実家を引き継ぎー北欧ブルーの家へ

    時代を感じるアルミ製の玄関ドア

  • 実家を引き継ぎー北欧ブルーの家へ

    実家を引き継ぎ自分たちの好みの家へ大改造!

  • 実家を引き継ぎー北欧ブルーの家へ

    設備はすべて交換

  • 実家を引き継ぎー北欧ブルーの家へ

    設備はすべて交換

  • 実家を引き継ぎー北欧ブルーの家へ

    実家をリノベーションして住まう!

リノベーション施工中 Process

  • 実家を引き継ぎー北欧ブルーの家へ

    構造からすべて見直しました

  • 実家を引き継ぎー北欧ブルーの家へ

    耐震性能は大幅に改善

  • 実家を引き継ぎー北欧ブルーの家へ

    屋根形状を変えて太陽光を設置

  • 実家を引き継ぎー北欧ブルーの家へ

    軸間には高性能グラスウール105mmを充填

  • 実家を引き継ぎー北欧ブルーの家へ

    PPA方式、いわゆる屋根貸しの太陽光パネル25枚7.75kWを無料で設置

  • 実家を引き継ぎー北欧ブルーの家へ

    床の断熱はFG板100mm GW105mm

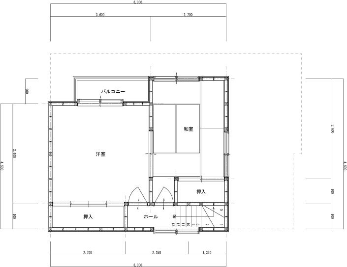
間取り Plan

リノベーション前

  • 実家を引き継ぎー北欧ブルーの家へ

    1階平面図:細かく間仕切りされた昭和の家

  • 実家を引き継ぎー北欧ブルーの家へ

    2階平面図:断熱性能も悪く、寒くて燃費の悪い家でした

リノベーション後

  • 実家を引き継ぎー北欧ブルーの家へ

    1階平面図:リビングと一体で使える予備室は子供の遊び場として使っています。

  • 実家を引き継ぎー北欧ブルーの家へ

    2階平面図:間仕切りを追加して2部屋にできる可変性のある間取り

物件概要

所在地
札幌市北区
敷地面積
162.82㎡(49.25坪)
延床面積
101.25㎡(31.25坪)
構造
木造在来2階建て地下RC造
既存建築年
1983年(築43年)
改修竣工年月
2020年01月
断熱性能
UA値 改修後0.27w/㎡・K
耐震性能
上部構造評点 改修後1.51

企業紹介

企業名
株式会社アルティザン建築工房
Webサイト
https://a-san.jp/
コメント

札幌でリノベーション専門店として創業以来、はじめて家を持つ、子育て世代のお客様を中心に無理のないお支払いで資産価値のある高性能な住まいづくりをしています。平成26年度からスタートした国の補助事業「長期優良住宅化リフォーム推進事業」にも積極的にエントリーをして認定された実績は、現在では130棟を超えています。

グレードとは

性能向上リノベでは、断熱と耐震のそれぞれの現行基準を3段階に分類し、基準を策定。性能向上リノベーションがされた証として、必要なエビデンス情報を登録し、安心・快適な家であるお墨付きの証として「性能向上登録証」を発行しています。これからの時代に選ばれる、安心・快適な家を可視化します。

断熱

ランク UA値 断熱等級
0.46 6
0.60 5
0.87 4
耐熱の説明

耐震

ランク 上部構造評点 耐震等級
1.5以上 3
1.25~1.5
未満
2
1.0~1.25
未満
1
耐震の説明
  • 建物は、自立循環型モデル住宅(在来工法)を対象に、地域区分は、6・7地域(都心部を中心)に策定しています。
  • UA値(外皮平均熱貫流率)とは住宅の内部から床、外壁、屋根(天井)や開口部などを通過して外部へ逃げる熱量を外皮全体で平均した値。値が小さいほど熱が逃げにくく、省エネルギー性能が高いことを示します。
  • 上部構造とは壁や柱など家の構造物のこと。上部構造評点とは、震度6強の地震で建物が倒壊しないために必要な力を数値で表した必要耐力(Qr)に対する現状の耐力の割合を表します。
  • 既存木造住宅の上部構造評点1.0、1.25、1.5は、品確法においての耐震等級1、2、3レベルに相当します。