2022年 エントリー作品

mid.

中古物件購入+リノベーション

耐震+断熱

2,000〜2,500万円

2022年06月

投票数

29 30

投票受付終了

リノベーション後 After

mid.

エントランス
エントランスは広々と確保した。
ホールはモルタル仕上げの飛び石を計画。
土間と廊下の境界線にグラデーションをつけることで、
空間を広く感じさせるように工夫した。
階段の横には埋め込みの壁面収納を設置した。
これは、クライアントの趣味である音楽のCD収納スペースになっている。
階段をただ上がるという行為の中にも収納という要素を加えた。
動線の中も工夫した。

mid.

造作洗面台
ホール空間に洗面を配置した。
エントランス上部には吹き抜けを設けることで、
暗くなりがちな玄関に自然光を取り込んだ。
空間にも陰影が生まれ、静けさの宿る空間となった。

mid.

ファミリーウォークインクローゼット
クライアントは、洋服が大好き。
ただ収納するウォークインクローゼットを計画するのではなく、
陳列して毎日の洋服選びが楽しくなるように設計した。
まるでアパレルショップのテナントのような佇まいになるように意識した。
建具の奥はランドリーになっており、水回り動線も簡略化を図った。

mid.

LDK
ダイニングテーブルは幅2700あり、支度の作業台としても活用できる。

mid.

スタディコーナー
シンメトリーなデザイン。

mid.

外観
外壁はモノトーンにして、木製玄関ドアがアクセントとした。

リノベーション前 Before

  • mid.

    外観

  • mid.

    居間

リノベーション施工中 Process

  • mid.

    断熱工事の様子。

  • mid.

    解体工事後における、耐震補強計画の検討の様子。

  • mid.

    解体工事の様子。

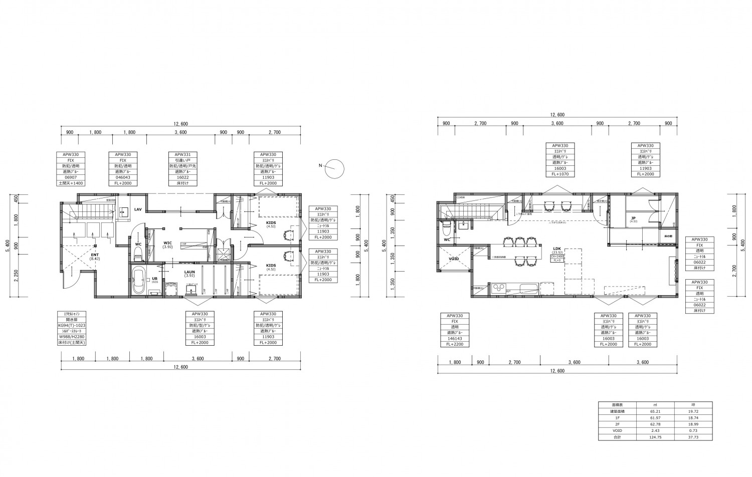
間取り Plan

リノベーション前

  • mid.

    1階、2階平面図

リノベーション後

  • mid.

    1階、2階平面図

物件概要

所在地
大阪府吹田市
敷地面積
0㎡(0坪)
延床面積
124㎡(37坪)
構造
木造2階建て
既存建築年
1992年(築34年)
改修竣工年月
2022年06月
耐震性能
上部構造評点 改修前0.18 ⇒ 改修後1.07

企業紹介

企業名
株式会社ひかり工務店
Webサイト
https://www.hikarikoumuten.com/
コメント

私たちは、「家族の明るい未来をつくる」を理念に、家づくりの先にある将来設計を見据え、 お客さまの豊 かな暮らしと幸せを追求。さらに業界の固定概念にとらわれず、 常に新しい技術や工法、建材、デザインなどを取り入れた独創的な家づくりを目指しています。 お家づくりは、一生に一度のことであり、大切なことです。

グレードとは

性能向上リノベでは、断熱と耐震のそれぞれの現行基準を3段階に分類し、基準を策定。性能向上リノベーションがされた証として、必要なエビデンス情報を登録し、安心・快適な家であるお墨付きの証として「性能向上登録証」を発行しています。これからの時代に選ばれる、安心・快適な家を可視化します。

断熱

ランク UA値 断熱等級
0.46 6
0.60 5
0.87 4
耐熱の説明

耐震

ランク 上部構造評点 耐震等級
1.5以上 3
1.25~1.5
未満
2
1.0~1.25
未満
1
耐震の説明
  • 建物は、自立循環型モデル住宅(在来工法)を対象に、地域区分は、6・7地域(都心部を中心)に策定しています。
  • UA値(外皮平均熱貫流率)とは住宅の内部から床、外壁、屋根(天井)や開口部などを通過して外部へ逃げる熱量を外皮全体で平均した値。値が小さいほど熱が逃げにくく、省エネルギー性能が高いことを示します。
  • 上部構造とは壁や柱など家の構造物のこと。上部構造評点とは、震度6強の地震で建物が倒壊しないために必要な力を数値で表した必要耐力(Qr)に対する現状の耐力の割合を表します。
  • 既存木造住宅の上部構造評点1.0、1.25、1.5は、品確法においての耐震等級1、2、3レベルに相当します。