2022年 エントリー作品

特別賞

お家時間を楽しく、コンパクトで快適にリノベーション

持ち家リノベーション・リフォーム

ゾーン断熱

900万円

2021年07月

投票数

33 34

投票受付終了

リノベーション後 After

お家時間を楽しく、コンパクトで快適にリノベーション
お家時間を楽しく、コンパクトで快適にリノベーション
お家時間を楽しく、コンパクトで快適にリノベーション
お家時間を楽しく、コンパクトで快適にリノベーション
お家時間を楽しく、コンパクトで快適にリノベーション

リノベーション前 Before

  • お家時間を楽しく、コンパクトで快適にリノベーション
  • お家時間を楽しく、コンパクトで快適にリノベーション
  • お家時間を楽しく、コンパクトで快適にリノベーション
  • お家時間を楽しく、コンパクトで快適にリノベーション
  • お家時間を楽しく、コンパクトで快適にリノベーション

リノベーション施工中 Process

  • お家時間を楽しく、コンパクトで快適にリノベーション
  • お家時間を楽しく、コンパクトで快適にリノベーション
  • お家時間を楽しく、コンパクトで快適にリノベーション
  • お家時間を楽しく、コンパクトで快適にリノベーション
  • お家時間を楽しく、コンパクトで快適にリノベーション

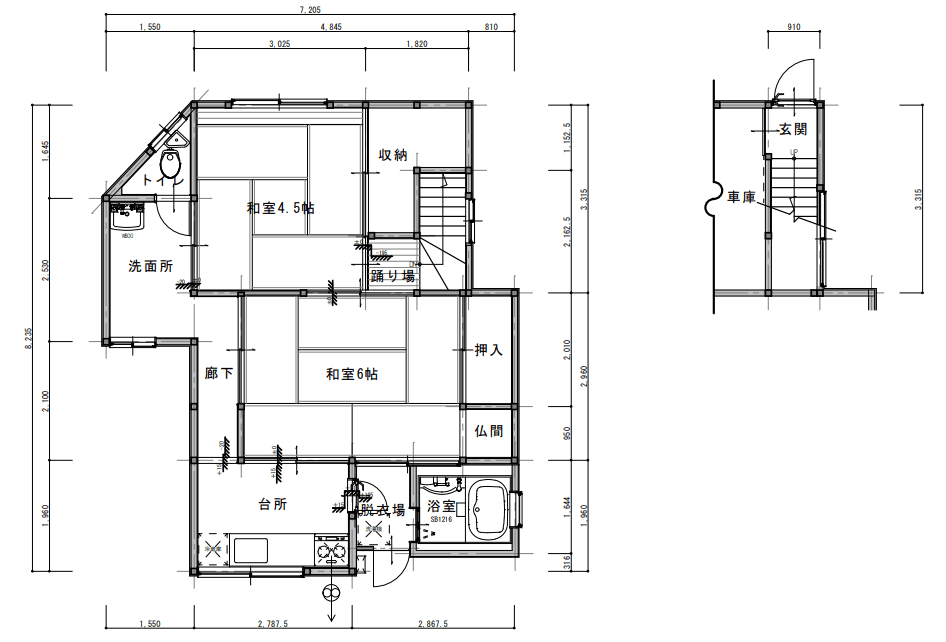
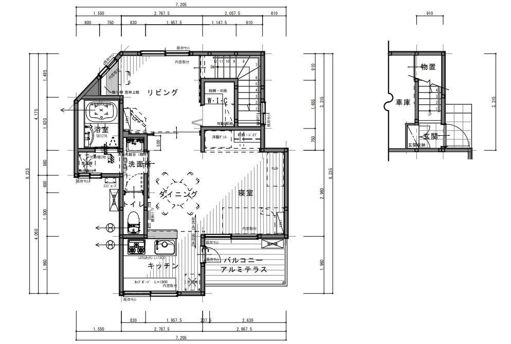
間取り Plan

リノベーション前

  • お家時間を楽しく、コンパクトで快適にリノベーション

リノベーション後

  • お家時間を楽しく、コンパクトで快適にリノベーション

    2階居室部分のゾーン断熱

物件概要

所在地
岡山県岡山市
敷地面積
0㎡
延床面積
40.08 ㎡(12.12坪)
構造
1階鉄骨造・2階木造
既存建築年
1960年(築65年)
改修竣工年月
2021年07月
断熱性能
UA値 改修前1.6 w/㎡・K⇒改修後0.84w/㎡・K(改修前の2倍に向上)

企業紹介

企業名
株式会社 ベースワーク
Webサイト
https://basework.jp

グレードとは

性能向上リノベでは、断熱と耐震のそれぞれの現行基準を3段階に分類し、基準を策定。性能向上リノベーションがされた証として、必要なエビデンス情報を登録し、安心・快適な家であるお墨付きの証として「性能向上登録証」を発行しています。これからの時代に選ばれる、安心・快適な家を可視化します。

断熱

ランク UA値 断熱等級
0.46 6
0.60 5
0.87 4
耐熱の説明

耐震

ランク 上部構造評点 耐震等級
1.5以上 3
1.25~1.5
未満
2
1.0~1.25
未満
1
耐震の説明
  • 建物は、自立循環型モデル住宅(在来工法)を対象に、地域区分は、6・7地域(都心部を中心)に策定しています。
  • UA値(外皮平均熱貫流率)とは住宅の内部から床、外壁、屋根(天井)や開口部などを通過して外部へ逃げる熱量を外皮全体で平均した値。値が小さいほど熱が逃げにくく、省エネルギー性能が高いことを示します。
  • 上部構造とは壁や柱など家の構造物のこと。上部構造評点とは、震度6強の地震で建物が倒壊しないために必要な力を数値で表した必要耐力(Qr)に対する現状の耐力の割合を表します。
  • 既存木造住宅の上部構造評点1.0、1.25、1.5は、品確法においての耐震等級1、2、3レベルに相当します。