2022年 エントリー作品

光と風が回遊するホテルライクな暮らし

リノベーション済み物件

耐震+断熱

1,000〜1,200万円

2022年12月

投票数

54 55

投票受付終了

リノベーション後 After

光と風が回遊するホテルライクな暮らし

「FIX窓・ツーアクション窓・引違いテラス戸」の3タイプの窓を組み合わせることで、風の通り道や採光を確保しつつ気密性を高めました。

光と風が回遊するホテルライクな暮らし

リビング正面のテレビボードの壁には、特徴的な質感とサスティナブルな素材として知られるソリドを使用。調光のできるライトをサイドに設置し、天井にはスピーカー内蔵のダウンライトを埋め込むことで、ホームシアターとしても愉しむことができます。

光と風が回遊するホテルライクな暮らし

家族が寛ぐリビングを通って自然光が差し込むキッチン。隣接するパントリーは、洗面脱衣所や洗濯スペースにつながる生活動線を考えた設計。

光と風が回遊するホテルライクな暮らし

キッチンをL字型に囲むように設置された1枚板の造作テーブル。
散らかりやすい手元を隠しながら、テーブル席とカウンター席の使い分けができる使い勝手の良い造りとなっています。

光と風が回遊するホテルライクな暮らし

LDKの内装ドアには、2400mmのハイドアを採用。薄見付フレームのスタイリッシュなドアは、上下にはフレームがないのが特徴。LDKに繋がる天井と床には、幻想的な光の帯が広がります。

また、リビングと1階の居室には内窓を設置し、光と風の通り道をつくりました。

光と風が回遊するホテルライクな暮らし

ホテルのバスルームをイメージし、全体をシックなカラーで統一。ひときわ目を引くスケルトンのバスルームと、洗面脱衣所の色味を統一することで空間をより広く感じられます。

また、撥水性の高い素材や天井一体化型のフラットライン照明で掃除もしやすく、その日の気分で電色が変えられるデザイン性の高いリラックス空間となりました。

リノベーション前 Before

  • 光と風が回遊するホテルライクな暮らし

    中古住宅では、よく見かけるラミネート天井に襖や障子戸で仕切られた二間続きの和室。

  • 光と風が回遊するホテルライクな暮らし

    二部屋を仕切る襖戸のために設けられた垂れ壁が、現代の暮らしには少し圧迫感を感じさせます。

  • 光と風が回遊するホテルライクな暮らし

    綺麗に使用されていたキッチンですが、生活スペースから独立しているせいか少し寂しさを感じてしまいます。

  • 光と風が回遊するホテルライクな暮らし

    全面掃き出し窓の縁側は、この家で一番の日当たりの良さと風通しの良いスペース。この好条件を他の部屋にも活かしたい心地よさです。

  • 光と風が回遊するホテルライクな暮らし

    広い玄関ですが、それぞれの部屋の壁で仕切られている為か少し薄暗い印象。

  • 光と風が回遊するホテルライクな暮らし

    冬の寒さをイメージさせるタイル貼りの浴室。洗い場は十分にありますが、足を伸ばして入るには狭さを感じてしまう浴槽です。

リノベーション施工中 Process

  • 光と風が回遊するホテルライクな暮らし
  • 光と風が回遊するホテルライクな暮らし
  • 光と風が回遊するホテルライクな暮らし
  • 光と風が回遊するホテルライクな暮らし

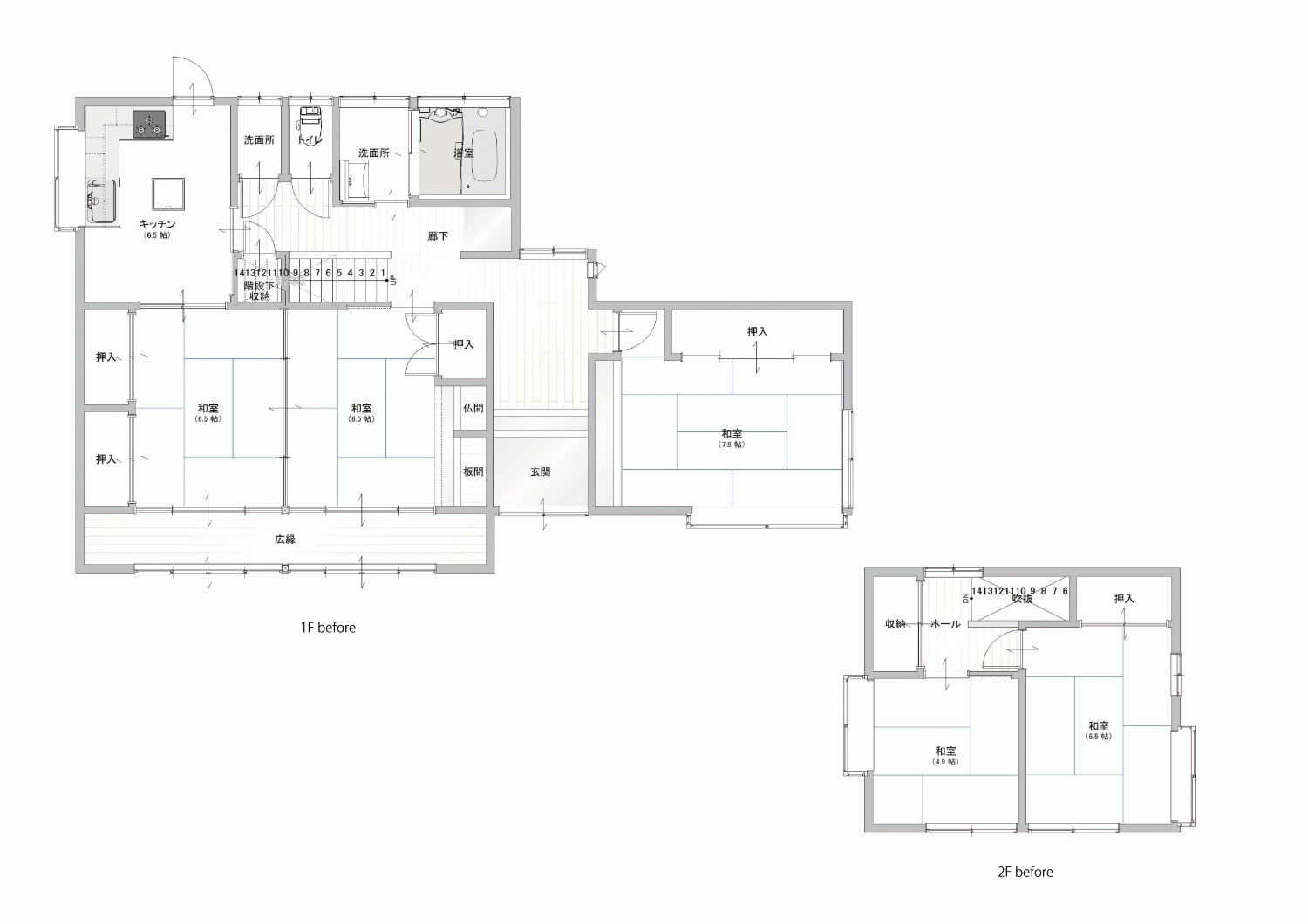
間取り Plan

リノベーション前

  • 光と風が回遊するホテルライクな暮らし

    利便性がよく人気のある立地で、「5K 縁側」に庭や駐車スペースを確保できる十分な広さの住宅。タイル貼りのお風呂や独立型のキッチン、畳や襖で間仕切りされた昔ながらの造りでした。

リノベーション後

  • 光と風が回遊するホテルライクな暮らし

    アルミ製の窓は全て樹脂窓に取り換え、日常的に長い時間を過ごす場所や身体への健康リスクの高い水回りや廊下なども含めた生活空間の断熱改修(ゾーン断熱)を行いました。

物件概要

所在地
熊本県菊池郡菊陽町
敷地面積
276.93㎡(83.9坪)
延床面積
120㎡(57坪)
構造
木造2階建て
既存建築年
1987年(築39年)
改修竣工年月
2022年12月
断熱性能
UA値 改修前1.84w/㎡・K⇒改修後0.80w/㎡・K(改修前の2.3倍に向上)
耐震性能
上部構造評点 改修前0.48 ⇒ 改修後1.02

企業紹介

企業名
銀杏開発株式会社
Webサイト
https://use-reno.jp/
コメント

“ 家づくりに、もっと自由を 家づくりで、もっとしあわせに” 家族の暮らし方・家族構成・好みに応じたオーダーメイドの家づくり。不動産と建築のプロが「中古住宅を買ってリノベーション」をワンストップでお手伝い致します。

グレードとは

性能向上リノベでは、断熱と耐震のそれぞれの現行基準を3段階に分類し、基準を策定。性能向上リノベーションがされた証として、必要なエビデンス情報を登録し、安心・快適な家であるお墨付きの証として「性能向上登録証」を発行しています。これからの時代に選ばれる、安心・快適な家を可視化します。

断熱

ランク UA値 断熱等級
0.46 6
0.60 5
0.87 4
耐熱の説明

耐震

ランク 上部構造評点 耐震等級
1.5以上 3
1.25~1.5
未満
2
1.0~1.25
未満
1
耐震の説明
  • 建物は、自立循環型モデル住宅(在来工法)を対象に、地域区分は、6・7地域(都心部を中心)に策定しています。
  • UA値(外皮平均熱貫流率)とは住宅の内部から床、外壁、屋根(天井)や開口部などを通過して外部へ逃げる熱量を外皮全体で平均した値。値が小さいほど熱が逃げにくく、省エネルギー性能が高いことを示します。
  • 上部構造とは壁や柱など家の構造物のこと。上部構造評点とは、震度6強の地震で建物が倒壊しないために必要な力を数値で表した必要耐力(Qr)に対する現状の耐力の割合を表します。
  • 既存木造住宅の上部構造評点1.0、1.25、1.5は、品確法においての耐震等級1、2、3レベルに相当します。