2022年 エントリー作品

特別賞

RC造テラスハウス(低層集合)を断熱等級6へ体感モデルハウス

持ち家リノベーション・リフォーム

断熱

1,500万円

2021年06月

投票数

77 78

投票受付終了

リノベーション後 After

RC造テラスハウス(低層集合)を断熱等級6へ体感モデルハウス

向かって左側のお家とつながっているため単独での再建築が難しいRC造テラスハウス(低層集合住宅)も性能向上リノベーションでここまで外観も変わりました。

RC造テラスハウス(低層集合)を断熱等級6へ体感モデルハウス

閉鎖的で暗かった和室は明るいリビングに生まれ変わりました。
このリビングを中心に動線が広がっているので、ゆるやかに家族があつまる場として活用されます。
オイル仕上げのオーク材フローリングと漆喰の壁によってより豊かな空間に仕上がりました。

RC造テラスハウス(低層集合)を断熱等級6へ体感モデルハウス

玄関は言ってすぐ左の仕事スペースは少し緊張感の仕上がりに。
床の高さを一段下げることで、スイッチが入れ替わる場所。

RC造テラスハウス(低層集合)を断熱等級6へ体感モデルハウス

暗く、狭かった階段スペースは新築でもよく使うアイアン階段に(如月建設オリジナル)
ウォールナットヘリンボーンと縦に埋め込んだ照明を設置。玄関からつながる空間だからこそ、限られたスペースの中でもこだわりました。

RC造テラスハウス(低層集合)を断熱等級6へ体感モデルハウス

脱衣スペースのなかった洗面台前は場所を大きく変え、ウォークインクローゼットを携えた広いスペースに変わりました。
造作による洗面台を作成しました。

RC造テラスハウス(低層集合)を断熱等級6へ体感モデルハウス

パイン材フローリングで優しい空間に変わった2階セカンドリビング。
当該物件は部屋間サーキュレータを設置したリノベーション物件のため、夏用エアコンとして活用されます。

リノベーション前 Before

  • RC造テラスハウス(低層集合)を断熱等級6へ体感モデルハウス

    暗さを感じる室内
    (1階和室からダイニング、洗面台方向に撮影)

  • RC造テラスハウス(低層集合)を断熱等級6へ体感モデルハウス

    脱衣スペースのない浴室前洗面台
    (向かって右が浴室への入り口)

  • RC造テラスハウス(低層集合)を断熱等級6へ体感モデルハウス

    暗く、狭く急な階段。
    玄関はいったところに位置しているため、来訪者からも見える。

  • RC造テラスハウス(低層集合)を断熱等級6へ体感モデルハウス

    狭い浴室
    浴室から出てすぐダイニング

  • RC造テラスハウス(低層集合)を断熱等級6へ体感モデルハウス

    冬、最も寒くなるキッチン横の勝手口

リノベーション施工中 Process

  • RC造テラスハウス(低層集合)を断熱等級6へ体感モデルハウス

    解体すると想定してよりも劣化部分が発見され、工事個所は増えてしまった。

  • RC造テラスハウス(低層集合)を断熱等級6へ体感モデルハウス

    鉄筋コンクリート・鉄骨・木造の複雑な構造になっていて、剥がしては最適な施工方法を考え直す必要があった。

  • RC造テラスハウス(低層集合)を断熱等級6へ体感モデルハウス

    新築なら0.1を切る気密性を確保する大工とともに家をつくれば売れた時代の粗さの残る躯体に四苦八苦しながら一般的な新築よりは気密を確保しようとの目標を決めて抜本的な気密層の確保を行いました。

  • RC造テラスハウス(低層集合)を断熱等級6へ体感モデルハウス

    あらゆる季節を通して壁内に湿気が透湿しきるのかをシミュレーションするために、WUFI(非定常熱湿気同時移動解析プログラム)を使用し、RCながらセルロースファイバーでの施工を行いました。
    室内での吸音性を期待できるため、音環境にも優れています。

  • RC造テラスハウス(低層集合)を断熱等級6へ体感モデルハウス

    アルミ・単板ガラスのサッシを外し、断熱性と気密性を向上のために樹脂・トリプルガラスに入れ替えを行いました。

  • RC造テラスハウス(低層集合)を断熱等級6へ体感モデルハウス

    間取りが大きく変わった元和室と広縁

  • RC造テラスハウス(低層集合)を断熱等級6へ体感モデルハウス

    リビングは西洋漆喰で仕上げてました。

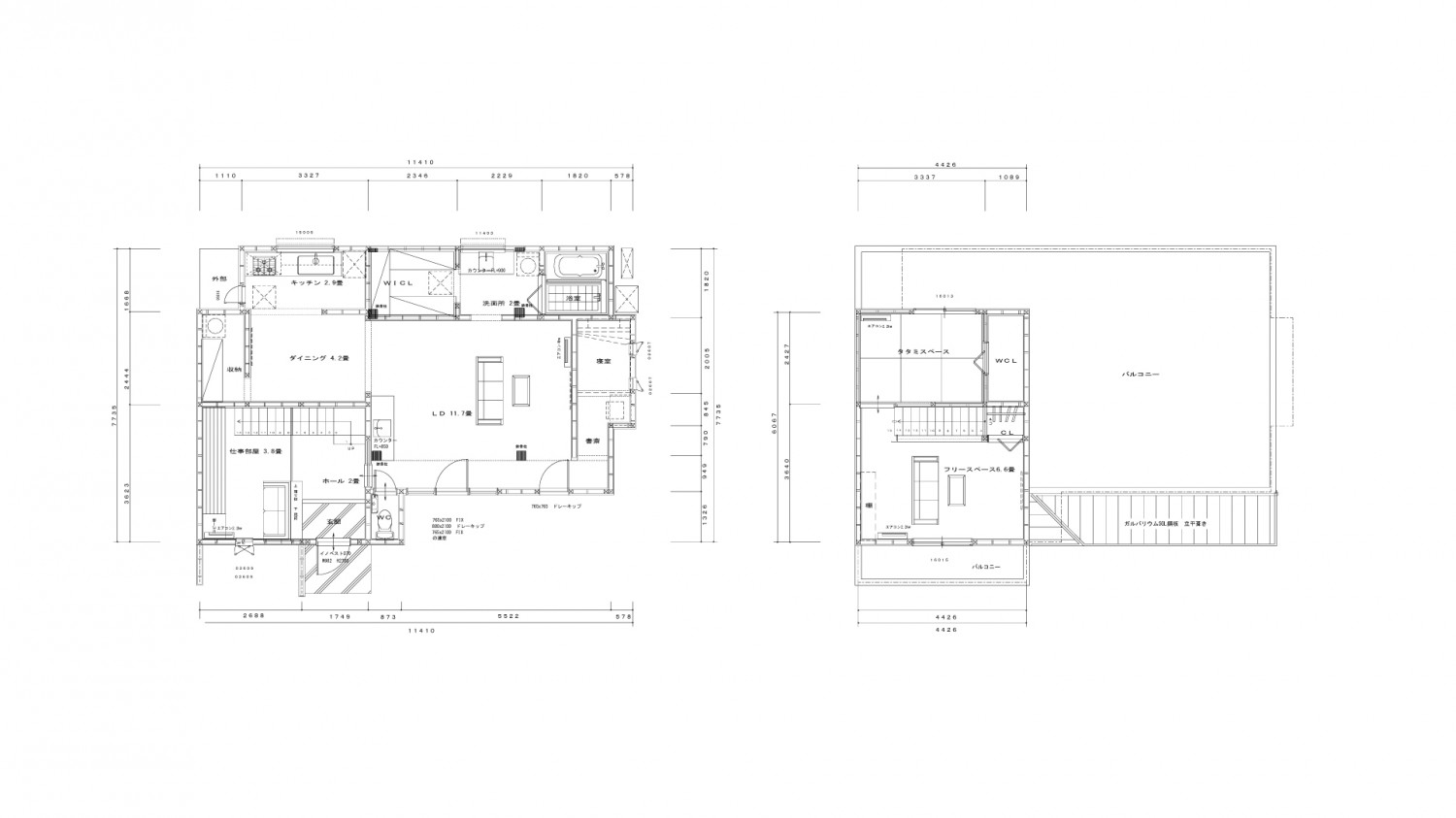
間取り Plan

リノベーション前

  • RC造テラスハウス(低層集合)を断熱等級6へ体感モデルハウス

    田の字型間取りの面影が残る昭和50年の建物は廊下がほとんどなく、昭和53年に東側へ増築がなされ、あまり大きくない間取りながら、いびつな印象がある間取りとなってしまっていた。
    また脱衣室もなく、今の住まいとはかけ離れた間取りになっており、最低限の使い勝手すら確保できていない。
    また2階の大きなバルコニーからは劣化による雨漏りが確認でき、補修工事も必要になっていた。

リノベーション後

  • RC造テラスハウス(低層集合)を断熱等級6へ体感モデルハウス

    猫と一緒に快適に暮らす家をイメージにした間取りになりました。
    リビングを中心に自然と広がる動線が効率的で居心地の良い。南向きで敷地にゆとりある特性を生かしたリビングからつながるウッドデッキはアウトサイドリビングとして室内とのつながりを持たせています。住む人をリビングを中心に暮らすことにゆるやかに誘うことで生活の質を引き上げるでしょう。

  • RC造テラスハウス(低層集合)を断熱等級6へ体感モデルハウス

    南向き向きの大きな窓で気になる目線は高い塀をつくることで解決した。
    なお、塀を設置する位置は季節を通して日射が入る位置につくるために、ウッドデッキの広さを調整している。

物件概要

所在地
和歌山県岩出市
敷地面積
164.03㎡(49.61坪)
延床面積
102.23㎡(30.92坪)
構造
鉄筋コンクリート・鉄骨・木造陸屋根2階建
既存建築年
1975年(築51年)
改修竣工年月
2021年06月
断熱性能
UA値 改修後0.42w/㎡・K

企業紹介

企業名
エコロジーレーベル|如月建設
Webサイト
https://kisaragi-kensetsu.jp/
コメント

私たちの建築コンセプトは『人と地球に優しいサスティナブルな家づくり』
サスティナブル住宅とは、いつまでも暮らしやすく次世代の子どもたちに受け継いでいくことを考えた、長寿命な住まいのこと。
地球温暖化の原因となる石油エネルギーを使用することなく、太陽熱や風力など自然のクリーンエネルギーを生かした住まいづくりを行います。 サスティナブル住宅では、構造や間取り・設備・使用する建材など、いたるところに人と地球に優しい家づくりが考えられています。

新築戸建て、リノベーションにおいても人と地球にやさしいすまいを提供しきます。

グレードとは

性能向上リノベでは、断熱と耐震のそれぞれの現行基準を3段階に分類し、基準を策定。性能向上リノベーションがされた証として、必要なエビデンス情報を登録し、安心・快適な家であるお墨付きの証として「性能向上登録証」を発行しています。これからの時代に選ばれる、安心・快適な家を可視化します。

断熱

ランク UA値 断熱等級
0.46 6
0.60 5
0.87 4
耐熱の説明

耐震

ランク 上部構造評点 耐震等級
1.5以上 3
1.25~1.5
未満
2
1.0~1.25
未満
1
耐震の説明
  • 建物は、自立循環型モデル住宅(在来工法)を対象に、地域区分は、6・7地域(都心部を中心)に策定しています。
  • UA値(外皮平均熱貫流率)とは住宅の内部から床、外壁、屋根(天井)や開口部などを通過して外部へ逃げる熱量を外皮全体で平均した値。値が小さいほど熱が逃げにくく、省エネルギー性能が高いことを示します。
  • 上部構造とは壁や柱など家の構造物のこと。上部構造評点とは、震度6強の地震で建物が倒壊しないために必要な力を数値で表した必要耐力(Qr)に対する現状の耐力の割合を表します。
  • 既存木造住宅の上部構造評点1.0、1.25、1.5は、品確法においての耐震等級1、2、3レベルに相当します。