2022年 エントリー作品

住みつぐ家

持ち家リノベーション・リフォーム

耐震+断熱

2,500〜3,000万円

2021年03月

投票数

17 18

投票受付終了

リノベーション後 After

住みつぐ家

ホールと一続きになるLDK

住みつぐ家

お庭が望めるリビング

住みつぐ家

位置を移動して明るくなったキッチン

住みつぐ家

外観

住みつぐ家

多趣味な奥様のためのキッチン奥に籠りスペース

住みつぐ家

2階の個室

リノベーション前 Before

  • 住みつぐ家

    モルタル、和瓦、ステンドグラスの窓など40年前にすると凝った造りのお家でした

  • 住みつぐ家

    家の中心へつづく和室。ここはダイニングに変更します。

  • 住みつぐ家

    キッチンは北東にあり窓が少ないのでここは浴室にします

  • 住みつぐ家
  • 住みつぐ家

    リビングになる予定の和室

  • 住みつぐ家

    2階個室

リノベーション施工中 Process

  • 住みつぐ家

    書いた中

  • 住みつぐ家

    壁天井はアクリア断熱

  • 住みつぐ家

    間取り変更多数のため梁補強

  • 住みつぐ家

    ハイベストウッドと筋交いで耐震改修

  • 住みつぐ家

    床は根太間断熱

  • 住みつぐ家

    外壁防水シート後

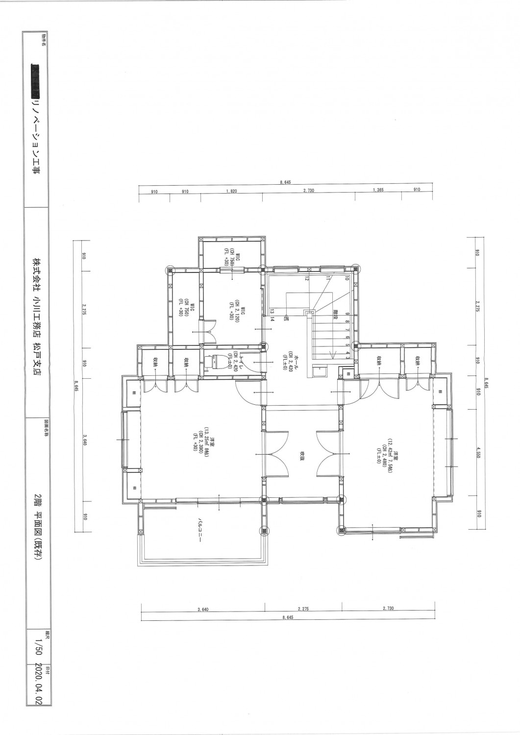
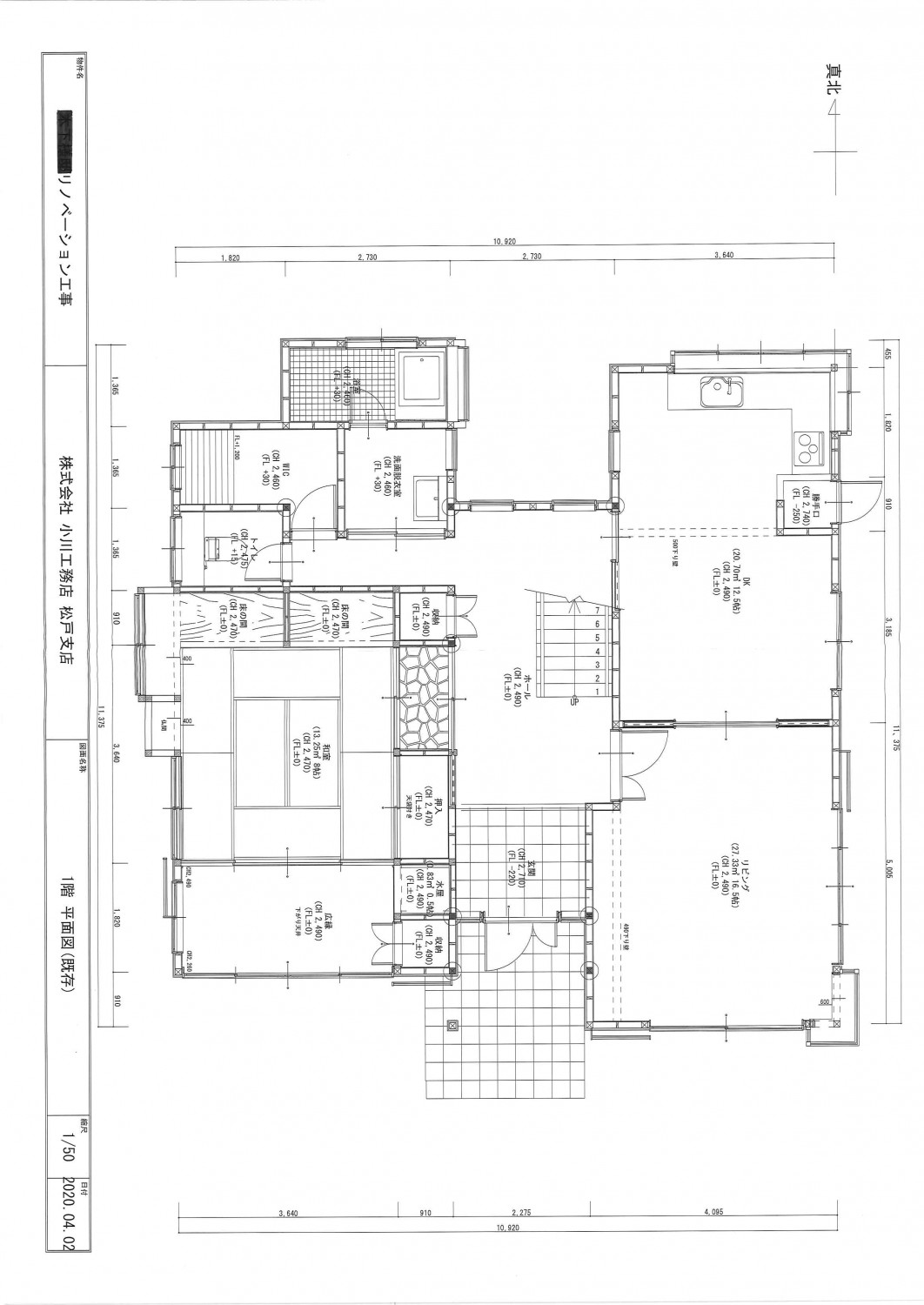
間取り Plan

リノベーション前

  • 住みつぐ家

    1階既存

  • 住みつぐ家

    2階既存

リノベーション後

  • 住みつぐ家

    1階改修後

  • 住みつぐ家

    2階改修後

物件概要

所在地
松戸市小金原
敷地面積
396㎡(120坪)
延床面積
160.23㎡(48.55坪)
構造
木造在来2階建
既存建築年
1980年(築46年)
改修竣工年月
2021年03月
断熱性能
UA値 改修後0.42w/㎡・K
耐震性能
上部構造評点 改修前0.193 ⇒ 改修後1.25

企業紹介

企業名
株式会社小川工務店
Webサイト
http://www.ogawa-bco.co.jp

グレードとは

性能向上リノベでは、断熱と耐震のそれぞれの現行基準を3段階に分類し、基準を策定。性能向上リノベーションがされた証として、必要なエビデンス情報を登録し、安心・快適な家であるお墨付きの証として「性能向上登録証」を発行しています。これからの時代に選ばれる、安心・快適な家を可視化します。

断熱

ランク UA値 断熱等級
0.46 6
0.60 5
0.87 4
耐熱の説明

耐震

ランク 上部構造評点 耐震等級
1.5以上 3
1.25~1.5
未満
2
1.0~1.25
未満
1
耐震の説明
  • 建物は、自立循環型モデル住宅(在来工法)を対象に、地域区分は、6・7地域(都心部を中心)に策定しています。
  • UA値(外皮平均熱貫流率)とは住宅の内部から床、外壁、屋根(天井)や開口部などを通過して外部へ逃げる熱量を外皮全体で平均した値。値が小さいほど熱が逃げにくく、省エネルギー性能が高いことを示します。
  • 上部構造とは壁や柱など家の構造物のこと。上部構造評点とは、震度6強の地震で建物が倒壊しないために必要な力を数値で表した必要耐力(Qr)に対する現状の耐力の割合を表します。
  • 既存木造住宅の上部構造評点1.0、1.25、1.5は、品確法においての耐震等級1、2、3レベルに相当します。