2022年 エントリー作品

ジッカリターン

持ち家リノベーション・リフォーム

断熱

1,800万円

2022年03月

投票数

81 82

投票受付終了

リノベーション後 After

ジッカリターン

軒を1200mmほど確保し、夏の日射を遮る形としている。また軒裏と西側の縦格子を木色とし、アクセントとなるように配慮した。

ジッカリターン

LDKは一体とした空間とし、以前畳の下に敷いていた座板を要所に張り付けて仕上げ材とした。柱等の以前の穴もそのまま残して建物の歴史が分かるようにしている。

ジッカリターン

玄関については土間玄関とした。引き込みの4枚建具を収納すればLDKと土間とが一体として利用できる空間とした。西日がきつい場所であったが外部の縦格子で遮ることができ、夏はとても風が通る。

ジッカリターン

天井を高くし、ファンを設けて全体の空気が流れるように設計。上部のロフトの窓もアクセントとなり、レトロな雰囲気のアクセントとなっている。上部の梁はもともと取り付けてあった梁を再加工して取り付けた。

ジッカリターン

対面式キッチンの横には改修前にとりけてあった建具を再利用して明かり窓とした。奥はパントリーとなっている。もともとあった太鼓梁についても化粧でそのまま見える形にして、梁に書いていた地墨もあえて残した

ジッカリターン

ロフト兼作業場。まどがレトロな雰囲気をだしている。

リノベーション前 Before

  • ジッカリターン

    一部ガレージとして利用していた元実家。

  • ジッカリターン

    外壁部分は改修しておらず、一部減築を実施していたよう。

  • ジッカリターン

    内部の元和室はほぼ物置状態だった。

  • ジッカリターン

    置いてあった食器棚も古かったがレトロな雰囲気でよかったので、建具等も使用できるものは再利用した。

  • ジッカリターン

    ガレージ兼物置だった西側1階部分。

  • ジッカリターン

    2階も物置状態でした。

リノベーション施工中 Process

  • ジッカリターン

    解体中に天井裏に隠れていた太鼓梁が出てきたため、この梁をアクセントとして利用するようにデザインした。建設当時の大工が記入した地墨もあったがあえて消さず、表面に出るようにした。

  • ジッカリターン

    床下も土間コンクリートを打設し、基礎の増設や耐震補強工事も行った。

  • ジッカリターン

    断熱材も家全体に取付を行い、サッシも全部取替て断熱性能を確保した。

  • ジッカリターン

    通気胴縁施工で外壁材も新しく張り直し、一部西側は塗り壁とした。
    また西日を避けるため縦格子の取付も行った。

  • ジッカリターン

    壁の一部には畳の下に敷かれていた座板をきれいにして、壁等に貼り付けて仕上げ材とした。

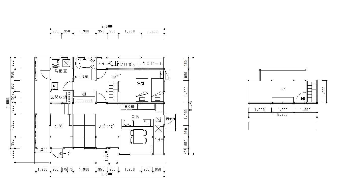
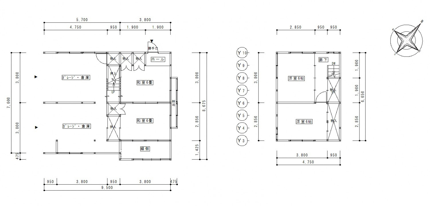
間取り Plan

リノベーション前

  • ジッカリターン

    もともとの実家で改修前は倉庫として、また一部車のガレージとしても利用していた。1階、2階についてはほぼ物置状態でした。

リノベーション後

  • ジッカリターン

    ガレージ部分も含め部屋とした。玄関については土間玄関とし、仕切りの4枚建具は引き込めば玄関とLDKとが一体に利用できる空間としている。
    立体的に空気の入れ替えができるようロフトにも開口部分を取り付け、デザインとしてもアクセントになっている。

物件概要

所在地
宮崎県延岡市舞野町
敷地面積
289.61㎡(87.60坪)
延床面積
103.78㎡(31.39坪)
構造
木造在来軸組2階建て
既存建築年
1971年(築55年)
改修竣工年月
2022年03月
断熱性能
UA値 改修前1.80w/㎡・K⇒改修後0.6w/㎡・K
耐震性能
上部構造評点 改修前0.2 ⇒ 改修後1.25

企業紹介

企業名
株式会社 中仙
Webサイト
https://www.nakasen-renovation.com

グレードとは

性能向上リノベでは、断熱と耐震のそれぞれの現行基準を3段階に分類し、基準を策定。性能向上リノベーションがされた証として、必要なエビデンス情報を登録し、安心・快適な家であるお墨付きの証として「性能向上登録証」を発行しています。これからの時代に選ばれる、安心・快適な家を可視化します。

断熱

ランク UA値 断熱等級
0.46 6
0.60 5
0.87 4
耐熱の説明

耐震

ランク 上部構造評点 耐震等級
1.5以上 3
1.25~1.5
未満
2
1.0~1.25
未満
1
耐震の説明
  • 建物は、自立循環型モデル住宅(在来工法)を対象に、地域区分は、6・7地域(都心部を中心)に策定しています。
  • UA値(外皮平均熱貫流率)とは住宅の内部から床、外壁、屋根(天井)や開口部などを通過して外部へ逃げる熱量を外皮全体で平均した値。値が小さいほど熱が逃げにくく、省エネルギー性能が高いことを示します。
  • 上部構造とは壁や柱など家の構造物のこと。上部構造評点とは、震度6強の地震で建物が倒壊しないために必要な力を数値で表した必要耐力(Qr)に対する現状の耐力の割合を表します。
  • 既存木造住宅の上部構造評点1.0、1.25、1.5は、品確法においての耐震等級1、2、3レベルに相当します。