2024年 エントリー作品

選考委員賞

森の中の古民家性能向上リノベーション

中古物件購入+リノベーション

耐震+断熱

2,600〜3,000万円

2017年10月

投票数

21 22

投票受付終了

リノベーション後 After

森の中の古民家性能向上リノベーション

現在は鶏も飼い始めたことで、新鮮な卵を恵んでくれている。

森の中の古民家性能向上リノベーション

土間に薪ストーブをおいています。

森の中の古民家性能向上リノベーション

床は杉材を使用しています。
新しい材料はあえて塗装せず、既存の柱・梁とのコントラストをはっきりさせました。

森の中の古民家性能向上リノベーション

2階はコスト削減のためプラスターボード現しにしています。

森の中の古民家性能向上リノベーション

開口部はYKKのワイドスライディングを使いました。外とのつながりを意識しました。

リノベーション前 Before

  • 森の中の古民家性能向上リノベーション

    築年数がだいぶ経っているため、劣化している部分を調査しました。

リノベーション施工中 Process

  • 森の中の古民家性能向上リノベーション

    既存の柱・梁を残し、下屋部分を撤去しました。

  • 森の中の古民家性能向上リノベーション

    ベタ基礎にて基礎補強をしています。

  • 森の中の古民家性能向上リノベーション

    面材耐力壁で耐震補強しています。

  • 森の中の古民家性能向上リノベーション

    断熱材を充填しています。

  • 森の中の古民家性能向上リノベーション

    屋根断熱はネオマフォーム95mmを使用しています。

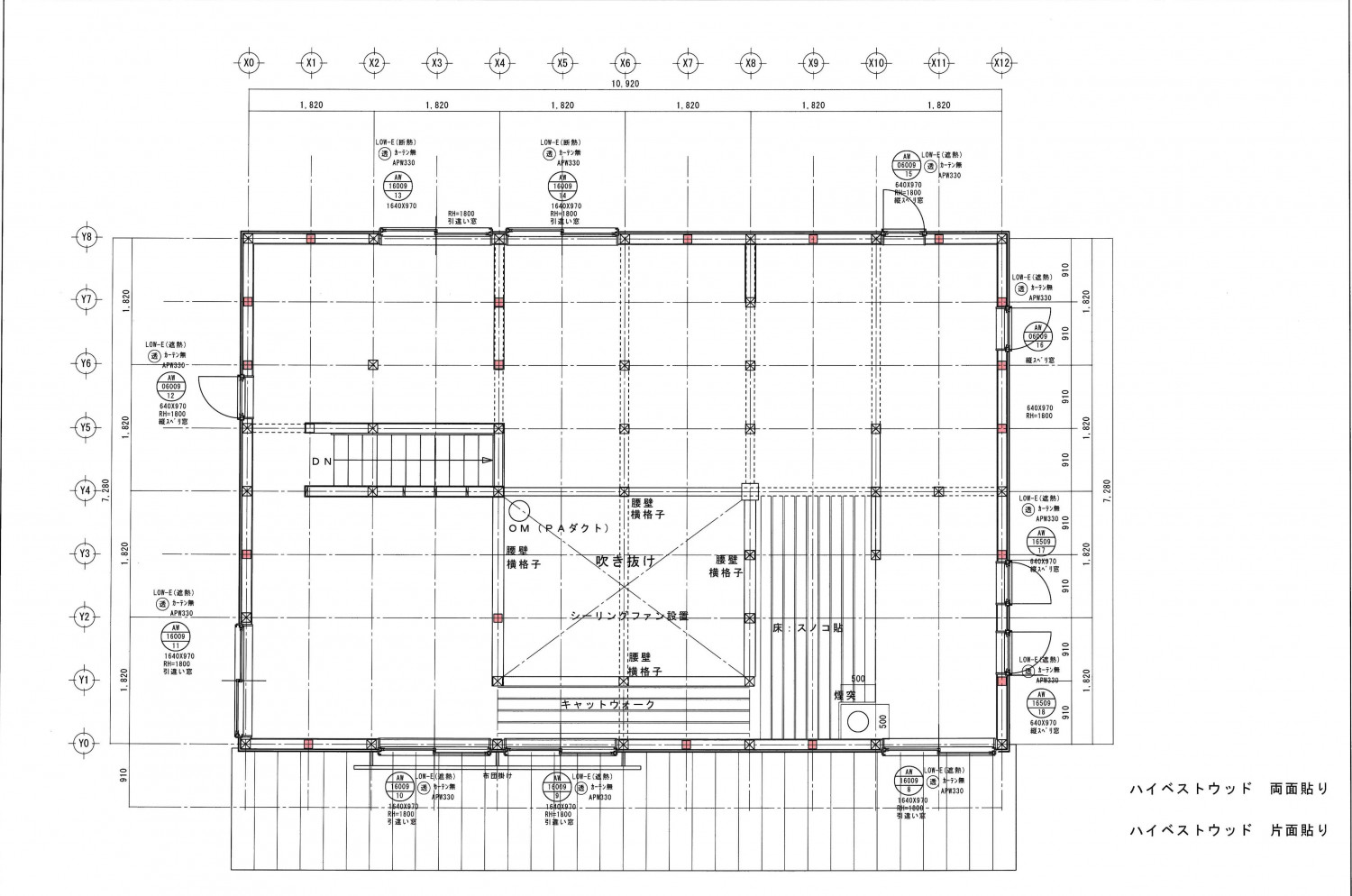
間取り Plan

リノベーション前

  • 森の中の古民家性能向上リノベーション

    築年数がだいぶ経っているため、劣化している部分を調査しました。

リノベーション後

  • 森の中の古民家性能向上リノベーション

    1階
    耐震的に弱点になりやすい下屋等を撤去し、減築して耐震補強を施しています。

  • 森の中の古民家性能向上リノベーション

    2階

物件概要

所在地
静岡県森町三倉
敷地面積
396㎡(119.79坪)
延床面積
149.06㎡(45.09坪)
構造
木造
既存建築年
1926年(築100年)
改修竣工年月
2017年10月
断熱性能
UA値 改修前3.08w/㎡・K⇒改修後0.49w/㎡・K(改修前の6倍に向上)
耐震性能
上部構造評点 改修前0.04 ⇒ 改修後1.22

企業紹介

企業名
有限会社エフ・ベース
Webサイト
https://fbase.jp/
コメント

多くの人が住まいを新築したり、リノベーションをしたりする理由は、「暮らしをより良いものにしたい」という気持ちからではないでしょうか。

耐震性や断熱性能は基本中の基本。災害や自然の脅威から守られる安心が第一です。

更にエフ・ベースでは、“住む”ことが“健康”につながるような暮らしを目指しています。
それを「DWELLNESS(ドゥエルネス)」と呼ぶことにしました。

暮らしの営みの中には様々な「作業」があります。

「掃除」「洗濯」を始めとして、ライフスタイルによって様々ですが、「庭のお手入れ」「畑仕事」「D I Y」「自転車の整備」など。
中には「薪割り」なんていう人もいるでしょう。

そんな日々の作業で楽しみながら身体を動かすことや、自然を感じたり、会話を愉しんだり、趣味に没頭したりといった、リラックスした時間を持つことによって、心身の健康に繋げていくような暮らし方をご提案しています。

グレードとは

性能向上リノベでは、断熱と耐震のそれぞれの現行基準を3段階に分類し、基準を策定。性能向上リノベーションがされた証として、必要なエビデンス情報を登録し、安心・快適な家であるお墨付きの証として「性能向上登録証」を発行しています。これからの時代に選ばれる、安心・快適な家を可視化します。

断熱

ランク UA値 断熱等級
0.46 6
0.60 5
0.87 4
耐熱の説明

耐震

ランク 上部構造評点 耐震等級
1.5以上 3
1.25~1.5
未満
2
1.0~1.25
未満
1
耐震の説明
  • 建物は、自立循環型モデル住宅(在来工法)を対象に、地域区分は、6・7地域(都心部を中心)に策定しています。
  • UA値(外皮平均熱貫流率)とは住宅の内部から床、外壁、屋根(天井)や開口部などを通過して外部へ逃げる熱量を外皮全体で平均した値。値が小さいほど熱が逃げにくく、省エネルギー性能が高いことを示します。
  • 上部構造とは壁や柱など家の構造物のこと。上部構造評点とは、震度6強の地震で建物が倒壊しないために必要な力を数値で表した必要耐力(Qr)に対する現状の耐力の割合を表します。
  • 既存木造住宅の上部構造評点1.0、1.25、1.5は、品確法においての耐震等級1、2、3レベルに相当します。